Продажа дачи, коттеджа, дома на Киевском, Калужском шоссе — цена, описание, фото, расположение на карте.

Дом, Согласие-2 КП

Снят с реализации

Кирпичный дом 483 кв.м в обжитом коттеджном поселке Согласие-2

Код: 124-936

Особенности объекта

Роскошный коттедж под ключ, выполненный в классическом стиле, в известном охраняемом коттеджном поселке Согласие-2. Высокое качество строительства дома. Функциональная планировка. На 1-ом этаже две спальни. Центральные коммуникации, телефон, интернет. На участке под ИЖС просторный гараж на два автомобиля. Недалеко от поселка развитая инфраструктура мкр Новые Ватутинки. Прописка Москва.  

Расположение

Ссылка на карту
Согласие-2 КП (Фоминское)
Калужское шоссе, от МКАД: 14 км, всего: 17 км
Тип застройки: обжитой к/п
Метро: Ольховая, Теплый стан, Крёкшино; от 20 мин на авто
Коттеджный поселок «Согласие-2»

Дом

Общая площадь строений: 483 м2
Год постройки дома: 2006 (внутренняя отделка 2019 г.)
Количество уровней: 2
Спален: 6. С/узлов: 4. Комнат всего: 8.
Опции: квартира для персонала; камин; машиномест крытых: 2, в т.ч. в теплом гараже: 2.
Материал стен: кирпич
Облицовка стен: дагестанский декоративный камень, цоколь - керамогранит
Кровля: мягкая (Тегола)
Окна: стеклопакеты ПВХ
Стадия готовности: под ключ
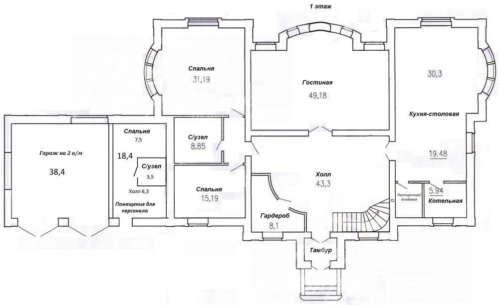
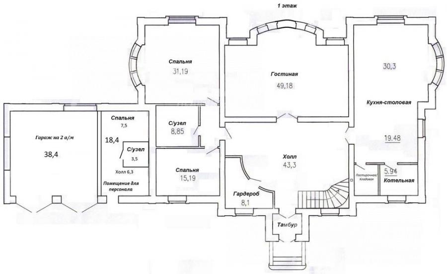
1-ый этаж: тамбур, холл 43 кв.м, гардеробная 8 кв.м, кухня-столовая 50 кв.м, гостиная 49 кв.м, гостевой санузел, котельная 6 кв.м, спальня 31 кв.м, санузел 9 кв.м, комната свободного назначения 15 кв.м, гараж на 2 авто 38 кв.м и квартира для персонала 20 кв.м;
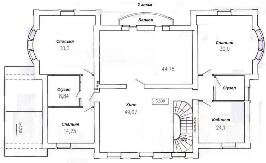
2-ой этаж: холл 49 кв.м, зона мастер-спальни 30 кв.м с санузлом 15 кв.м, и гардеробной 8 кв.м, спальня 30 кв.м, санузел 6 кв.м, кабинет 18 кв.м, просторное помещение 45 кв.м с балконом, где возможно организовать спальню с санузлом и гардеробной, кинотеатр, тренажерный зал, бильярд или 2-ую гостиную. Также площадь хола позволяет организовать дополнительный санузел или спальню с санузлом;
Описание внутренней отделки: отделка дома выполнена "под ключ". На стенах в жилых помещениях - бумажные обои "Sanderson" Англия, в санузлах- плитка. На полу керамогранит Atlas Concorde Russia с электрическим подогревом в прихожей, кухне, в санузлах и холле. Ламинат Kronotex (Кронотекс) Exquisit Дуб стирлинг медиум в жилых помещениях; широкая ж/б лестница (112 см), ступени отделаны мрамором, кованые перила (авторский рисунок); дом отапливается, электрика разведена, теплые полы, радиаторы Kermi, розетки LeGrand; двери из шпона Profit Doors;
Инженерное обеспечение: установлены котел Ferroli и бойлер 200 л. Произведена разводка электричества; вентиляция естественная приточно-вытяжная.
Мебель, оборудование: кухонный гарнитур - массив дерева, карнизы, портьеры.
Дополнительные строения: к дому пристроен гараж 60 кв.м на 2 а/м и помещение для охраны (20 кв.м).
Дополнительная информация о доме: классический особняк в русском стиле. Фундамент - монолитная плита, плиты перекрытия ж/б. Высота потолков от 3.25 м;

Участок

Площадь участка, соток: 15
Тип участка: без деревьев
Благоустройство участка: газон; дорожки, выложенные брусчаткой
Статус земли: земли поселений, ИЖС
Дополнительная информация об участке: ровный участок прямоугольной формы, по периметру – кирпичные столбы и горизонтальные раструбы; заполнение - дерево;

Коммуникации

Газ: есть
Э/э: есть
Водопровод: центральный
Канализация: централизованная
Телефон: есть
Интернет: возможно подключение
Охрана: есть

Описание инфраструктуры

Вблизи поселка два супермаркета, магазин хозтоваров, пункт выдачи Ozon и Wildberries, красивейшая деревянная церковь «Покров Божьей матери на Десне». В Жуковке частная школа 1-11 классы "Путь к успеху". В 2,5 км от поселка расположен оздоровительный комплекс УД Президента РФ "Ватутинки", в котором есть: бассейны (детский и взрослый), финская сауна, римская сауна, диско-бар, бар, спортклуб, услуги стилиста, массажиста, косметолога, парикмахера, лечение: диагностика заболеваний, оздоровительные и корректирующие процедуры, кабинеты физиотерапии/ На выходе из посёлка остановка автобуса до м. Ольховая. В пешей доступности от поселка находится микрорайон "Новые Ватутинки", обладающий полноценной городской инфраструктурой, включающей в себя магазины, банки, рестораны, предприятия бытового обслуживания, детские сады, школы, поликлинику, фитнес - клуб, ТРЦ "Лайнер" и многое другое. Также неподалеку вся инфраструктура наукограда Троицк.

Элементы положит. окружения

Тихое живописное место вблизи лесного массива. В поселке пруды и детская площадка. Рядом развитая инфраструктура.

Хочу посмотреть


Поделитесь с друзьями:

Собираетесь купить дом, дачу или коттедж на Калужском или Киевском направлении? Обязательно воспользуйтесь услугами компании «Белые Ветры», старейшего оператора загородной недвижимости на Юго-западе Подмосковья!
Рейтинг@Mail.ru