Продажа дачи, коттеджа, дома на Киевском, Калужском шоссе — цена, описание, фото, расположение на карте.

Дом, Спектр СНТ

Снят с реализации

Дом-дача в обжитом поселке в лесу в районе Пучково, Калужское или Киевское шоссе, 25 км

Код: 551-801

Особенности объекта

Почти идеальная дача, обладающая всеми необходимыми для дачи достоинствами. В давно обжитом, лесном дачном поселке. На примерно одинаковом удалении от двух шоссе, недалеко от Москвы, но при этом в глубоком лесу, в 3 км от ближайшего населенного пункта. Функциональная планировка: 4-5 спален, просторные гостиная с камином и кухня-столовая, есть мастерская, отдельностоящая баня, гараж с навесом. В отличном состоянии - сделан евроремонт.

Расположение

Ссылка на карту
Спектр СНТ (Пучково)
Калужское шоссе, от МКАД: 17 км, всего: 24 км
Киевское шоссе, от МКАД: 21 км, всего: 40 км
Тип застройки: дачный поселок
Метро: Ольховая, Теплый стан, Бунинская аллея; от 29 мин на авто

Дом

Общая площадь строений: 224 м2 (в т.ч.: дом 140 кв.м, баня 44 кв.м, гараж с хозблоком 40 кв.м)
Количество уровней: 2
Спален: 4. С/узлов: 2. Комнат всего: 6.
Опции: баня; купель; терраса; камин; машиномест крытых: 2, в т.ч. в теплом гараже: 1; печь-голландка.
Материал стен: круглое бревно 220 мм (сруб), утеплитель
Кровля: мягкая
Окна: стеклопакеты ПВХ (тонированные под дерево)
Стадия готовности: меблирован
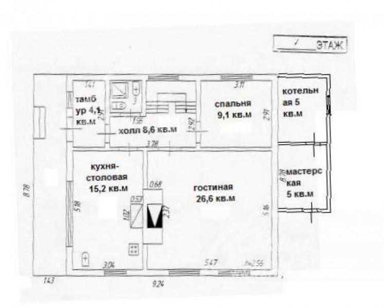
1-ый этаж: крыльцо-веранда 12 кв.м, прихожая 4 кв.м, холл 8.6 кв.м, кухня-столовая 15 кв.м с кирпичной печью (голландка), гостиная 26.6 кв.м с камином, спальня 9 кв.м, с/узел; отдельный вход в мастерскую 5 кв.м, котельная 5 кв.м
2-ой этаж: холл 6.6 кв.м, спальня 11 кв.м с балконом 10 кв.м, с/узел 10 кв.м, две спальни по 11 кв.м, жилая комната 7 кв.м
Описание внутренней отделки: Выполнена отделка со вкусом, с использованием современных материалов: стены - имитация бруса, вагонка, в санузлах - кафель; пол - качественный ламинат, кафель с водяным подогревом; потолки подвесные с подсветкой, лестничный марш деревянный (лиственница). Двери шпонированные, подоконники - массив дерева.
Инженерное обеспечение: в доме и в бане установлены электрические котел и бойлер, чугунные батареи; вентиляция естественная приточно-вытяжная, счетчик электричества. Отоплением в доме и бане возможно управлять через мобильный телефон.
Мебель, оборудование: Дом полностью меблирован (все входит в стоимость), в санузлах установлена импортная сантехника пр-ва Чехии.
Дополнительные строения: - Баня 44 кв.м из рубленного бревна (с отдельным электрокотлом): комната отдыха, предбанник с душем и купелью, с/узел, парная с дровяной печкой, крытая терраса-беседка.
- Гараж на 1 авто с навесом и хозблоком.
Дополнительная информация о доме: Дом выстроен в классическом русском стиле. Фундамент монолитный железобетонный, перекрытия - деревянные балки, высота потолков 2.56 - 2.62 м.

Участок

Площадь участка, соток: 8 (по документам - 6 соток)
Тип участка: лесной
Благоустройство участка: на участке более 7 взрослых плодовых деревьев, много разнообразных кустарников, организованы дорожки
Статус земли: земли населенных пунктов
Дополнительная информация об участке: участок прямоугольной формы в центре поселка, с фасада - деревянный забор на кирпичных столбах (автоматические ворота с козырьком и кровлей), с других сторон - деревянный на металлических столбах, с одной стороны кирпичный забор.

Коммуникации

Э/э: есть (15 кВт)
Водопровод: колодец
Канализация: автономная

Описание инфраструктуры

В поселке Ново-Троицкое частный детский сад "Яблоневый сад". Городская инфраструктура г.Троицка и д.Пучково (магазины, школа, Храм Казанской иконы Божией Матери).

Элементы положит. окружения

Поселок находится в окружении лесного массива. Тихое живописное место.

Хочу посмотреть


Поделитесь с друзьями:

Собираетесь купить дом, дачу или коттедж на Калужском или Киевском направлении? Обязательно воспользуйтесь услугами компании «Белые Ветры», старейшего оператора загородной недвижимости на Юго-западе Подмосковья!
Рейтинг@Mail.ru