Дом, Стародачное к/п
Код: 123-806
Особенности объекта
Практически безупречный дом для довольно большой и дружной семьи. Видеоролик Дизайнерская отделка и мебель в идеальном состоянии. Участок с качественным ландшафтом: множество деревьев, декоративных растений, освещение, детская площадка. В одном из лучших коттеджных поселков на Калужском шоссе - обжитом, камерном и в окружении леса. Невдалеке благоустроенная зона для купания, зимой каток, выход в лес, где организована прогулочная зона.
Расположение
Ссылка на карту
Стародачное к/п (Минзаг)
Калужское шоссе, от МКАД: 22 км, всего: 25 км
Тип застройки: обжитой к/п
Метро: Ольховая, Теплый стан, Прокшино; от 23 мин на авто
Коттеджный поселок «Стародачное»
Дом
Общая площадь строений: 400 м2 (в т.ч.: дом 343 кв.м, беседка-барбекю, баня, хоз.блок)
Количество уровней: 2
Спален: 5. С/узлов: 3. Комнат всего: 6.
Опции: баня; терраса; камин; машиномест крытых: 2, в т.ч. в теплом гараже: 2; парная.
Материал стен: кирпич многощелевой
Облицовка стен: окрашенная штукатурка с фрагментами из дикого камн
Кровля: мягкая (Tegola)
Окна: стеклопакеты деревянные (панорамные, двухкамерные, снаружи защищены металлом)
Стадия готовности: меблирован
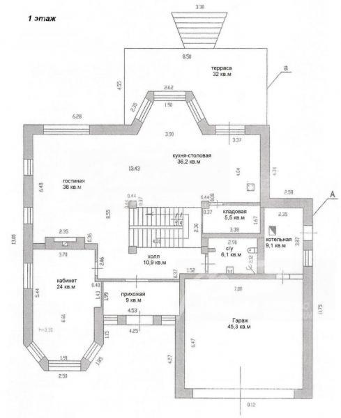
1-ый этаж: прихожая-тамбур 9 кв.м, холл 10 кв.м, кабинет со встроенными книжными шкафами 24 кв.м, гостиная с камином 38 кв.м, кухня-столовая 36 кв.м с выходом на террасу 32 кв.м и кладовой 5.5 кв.м, с/узел 6 кв.м; гараж на 2 авто 45 кв.м, котельная 9 кв.м.
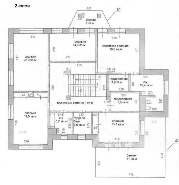
2-ой этаж: холл 30 кв.м, спальня хозяев 18.6 кв.м с гардеробной 4 кв.м, с/узлом 10 кв.м и выходом на балкон 7 кв.м, спальня 14.6 кв.м с выходом на балкон, спальня 23 кв.м, спальня 18.5 кв.м со встроенным шкафом, спальня 13.7 кв.м со встроенным шкафом и террасой 31 кв.м с подогреваемым полом, общая гардеробная 5.6 кв.м, гардеробная/кладовая 4.5 кв.м, с/узел 5.2 кв.м
Описание внутренней отделки: Отделка по индивид. дизайнерскому проекту из дорогих материалов: - В гостиной мраморный камин, мраморные колонны, гранитные столбы; - Потолки подвесные многоуровневые с кессонами и карнизами с рисунком (в главной спальне - с мягкой подсветкой и отделан лиственницей); На полу - плитка с подогревом; паркетная доска; - Стены - окраска, обои, шелкография; - Лестничный марш шириной 1.2 м монолитный, отделан дубом, с подсветкой ступеней; - подоконники: мрамор, массив дерева
Инженерное обеспечение: бойлер Reflex 200 л, котел 63 кВт Wolc, многоступенчатая система очистки воды с ионизацией; тепловые конвекторы встроены в пол перед оконными дверьми; установлены счетчики воды и электричества, оборудована сигнализация
Мебель, оборудование: Вся мебель в доме дизайнерская (Италия). Кухня Darina со встроенной техникой Bosch и Siemens. В кабинете коллекционные встроенные книжные полки, кожаный диван и стол из дерева с отделкой кожей. В одной из спален дизайнерская кровать. Французские шторы, картины на стенах. На террасе кованный уличный гарнитур.
Дополнительные строения: - Баня из оцилиндрованного бревна 25 кв.м (русская парная, комната отдыха, раздевалка, душ, туалет).
- Беседка с мангалом.
- Хоз. блок.
- Детский городок с горкой.
Дополнительная информация о доме: Классический архитектурный стиль. Фундамент и перекрытия монолитные железобетонные, высота потолков 3 метра
Участок
Площадь участка, соток: 31 (оформлено 28,55 сот)
Тип участка: парковый с ландшафтом и деревьями
Благоустройство участка: выполнен профессиональный ландшафтный дизайн: высажены более 50 взрослых деревьев (березы, сосны, ели, туи, липы, каштан, фруктовые), дорожки вымощены брусчаткой, освещение, декоративные кустарники, газон, цветники, альпийские горки.
Статус земли: ИЖС
Дополнительная информация об участке: Участок с небольшим уклоном, разноуровневый, огорожен, обвитым диким виноградом, деревянным забором на каменном цоколе, с задней стороны - металлический забор на цоколе высотой 3 м.
Коммуникации
Газ: есть (магистральный)
Э/э: есть (20 кВт)
Водопровод: центральный
Канализация: централизованная
Телефон: есть (МГТС)
Интернет: есть (оптоволокно)
Охрана: есть
Описание инфраструктуры
Общественный центр. Отдельно выделены прогулочная зона и детская площадка. В 1,5 км детский сад "Ника". Инфраструктура г.Троицка (школы, детские сады, больницы, банки, рестораны, элитный фитнес-центр "Резиденция" и т.д.).
Элементы положит. окружения
Поселок расположен на уникальном, естественном лесном ландшафте. В 500 м благоустроенная зона отдыха с пляжем на берегу реки Пахра, детская площадка.
Хочу посмотретьПоделитесь с друзьями:
Похожие предложения:
Дом, Новоглаголево, 410 м2, 29 сот
Филатов луг, Рассказовка - от 29 мин на автоДом, Новоглаголево
Киевское ш., 32 км + 5 км
пл. участка: 29 сот
пл. дома: 410 м2
меблирован
Спален: 7. С/узлов: 3.



