Дом, Староникольское к/п
Код: 254-613
Особенности объекта
Современный качественно построенный дом 300 кв.м на ухоженном участке 8 соток в одном из самых престижных охраняемых поселков на территории Новой Москвы - Староникольское. Коттедж с безупречной отделкой, полностью оборудованный всей необходимой техникой, обставленный стильной и функциональной мебелью премиальных брендов, некоторые элементы декора и интерьера выполнены на заказ. В доме панорамные окна, просторные помещения и высокие потолки. На участке гараж и парковочное место для авто. Городская инфраструктура в шаговой доступности, остановка общественного транспорта около КПП поселка. Удобный выезд на 3 шоссе: Киевское, Минское, в т.ч. платная трасса до Москва-Сити, Боровское шоссе.
Расположение
Ссылка на карту
Староникольское к/п (Первомайское)
Киевское шоссе, от МКАД: 21 км, всего: 23 км
Тип застройки: обжитой к/п
Метро: Филатов луг, Рассказовка, Теплый стан; от 18 мин на авто
Жилой комплекс «Староникольское»
Дом
Общая площадь строений: 300 м2
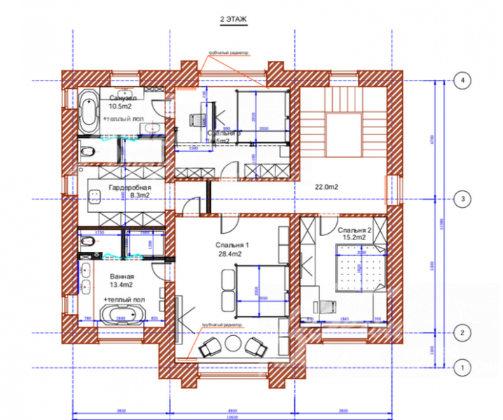
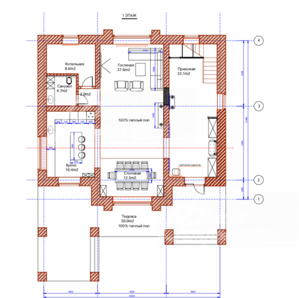
Количество уровней: 2
Спален: 3. С/узлов: 3. Комнат всего: 4.
Опции: терраса (крытая); машиномест крытых: 2, в т.ч. в теплом гараже: 2.
Материал стен: кирпич
Облицовка стен: облицовочный кирпич
Кровля: двойной фальц
Окна: стеклопакеты ПВХ (панорамные)
Стадия готовности: меблирован
1-ый этаж: просторная прихожая с встроенной системой хранения, светлая гостиная-столовая с панорамными окнами, переходящая на кухню с выходом на террасу, санузел, котельная-постирочная
2-ой этаж: мастер-спальня с собственным санузлом, детская спальня с санузлом, гостевая спальня, гардеробная
Описание внутренней отделки: Элегантные двери и стеновые панели выполнены на заказ
Инженерное обеспечение: современная электрика Werkel обеспечивает безопасность и надежность
Мебель, оборудование: премиальная мебель Garda Decor, Sonderry и Mr.Doors, Bellona. Стильная кухня от Mr.Doors с встроенной техникой мировых брендов ELICA и Liebherr, винным шкафом MAUNFELD. Сантехника Swedbe, TECEspring и Omoikiri. Постирочная оборудована стиральной и сушильной машинами VARD.
Дополнительная информация о доме: потолки в мастер-спальне высотой 4.5 метра
Участок
Площадь участка, соток: 8
Тип участка: с высаженными деревьями
Благоустройство участка: на участке выполнен ландшафтный дизайн, высажен газон, молодые плодовые деревья и декоративные кустарники, туи, проложены дорожки
Коммуникации
Газ: есть (магистральный)
Э/э: есть (25 кВт)
Водопровод: центральный
Канализация: централизованная
Охрана: есть (КПП, круглосуточная охрана, видеонаблюдение, патрулирование)
Поделитесь с друзьями:
Похожие предложения:
Дом, Чароит КП (Ватутинки), 257 м2, 7 сот
Ольховая, Теплый стан - от 14 мин на автоДом, Чароит КП
Калужское ш., 14 км + 1 км
пл. участка: 7 сот
пл. дома: 257 м2
под ключ
Спален: 4. С/узлов: 3.
Дом, Крекшино КП (д.Крекшино), 300 м2, 7 сот
Минское шоссе, от МКАД: 22+2 км
Крёкшино, Рассказовка - от 9 мин на автоДом, Крекшино КП
Киевское ш., 21 км + 4 км
пл. участка: 7 сот
пл. дома: 300 м2
под ключ
Спален: 5. С/узлов: 4.







