Дом, Светлая поляна к/п
Код: 149-813
Особенности объекта
Новый современный функциональный дом в клубном поселке в очень красивом месте в окружении леса с озером. Четырехуровневый коттедж с 4 спальнями, возможно организовать больше, каждая спальня со своим санузлом, 3 террасы.
Расположение
Ссылка на карту
Светлая поляна к/п (Ботаково)
Калужское шоссе, от МКАД: 17 км, всего: 20 км
Киевское шоссе, от МКАД: 21 км, всего: 32 км
Тип застройки: формирующийся к/п
Метро: Ольховая, Теплый стан, Саларьево; от 21 мин на авто
Коттеджный поселок «Светлая Поляна (д.Ботаково)»
Дом
Общая площадь строений: 475 м2
Год постройки дома: 2011
Количество уровней: 4
Спален: 4. С/узлов: 4. Комнат всего: 11.
Опции: сауна; терраса; вывод под камин.
Материал стен: кирпич, утеплитель
Облицовка стен: фасадная декоративная штукатурка, цоколь - дикий камень
Кровля: мягкая (Тегола)
Окна: стеклопакеты ПВХ (двухкамерные)
Стадия готовности: под чистовую отделку
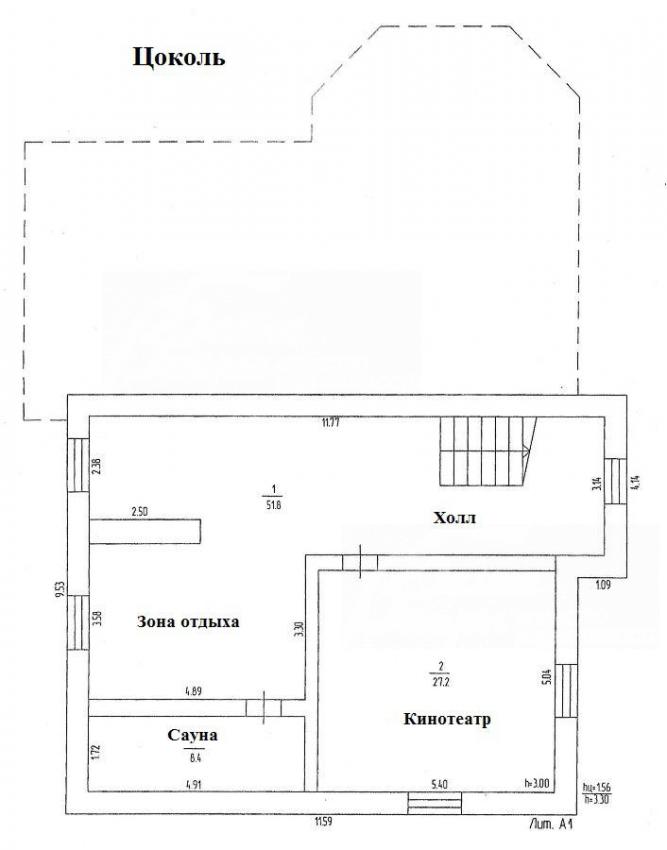
Цоколь: холл 34 кв.м, зона отдыха 17.5 кв.м, зона сауны 8.4 кв.м, кинотеатр 27 кв.м
1-ый этаж: крыльцо 11 кв.м, прихожая 8 кв.м, холл 17.5 кв.м, гостиная 33.6 кв.м с выходом на террасу, кухня-столовая 39 кв.м, спальня/кабинет 27 кв.м, с/узел 5.4 кв.м, котельная 8 кв.м
2-ой этаж: холл 26 кв.м с выходом на террасу 11 кв.м, спальня 27 кв.м, с/узел 7.6 кв.м, спальня 24.4 кв.м с с/узлом 5 кв.м, Главная спальня 39.5 кв.м с с/узлом 5 кв.м и гардеробной 3.5 кв.м
3-ий этаж: мансардный этаж 137 кв.м - помещение свободного назначения
Описание внутренней отделки: Стены и потолки выровнены и ошпатлеваны. Сделана чистовая стяжка пола. Лестничный марш бетонный шириной 1.3 м
Инженерное обеспечение: установлен газовый котел Sime, разведены электрика и отопление.
Дополнительная информация о доме: Дом выстроен в классическом стиле. Фундамент и перекрытия монолитные железобетонные. Высота потолков 3.2 м
Участок
Площадь участка, соток: 11.26
Тип участка: с деревьями
Благоустройство участка: на участке 7 взрослых берез, газон, дорожки, сделан дренаж вокруг дома
Статус земли: земли населенных пунктов для ИЖС
Дополнительная информация об участке: участок трапециевидной формы, крайний в поселке, по периметру огорожен деревянным забором высотой 2.3 м на цоколе
Коммуникации
Газ: есть (магистральный)
Э/э: есть (15 кВт)
Водопровод: индивид. скважина (60 м)
Канализация: автономная (Топас 5)
Телефон: возможно подключение (оптоволокно, за доп.оплату)
Интернет: возможно подключение (оптоволокно, за доп.оплату)
Охрана: есть (ворота на пульте)
Описание инфраструктуры
На территории коттеджного поселка детские и спортивные площадки, зона отдыха вокруг озера. В г.Троицке: рестораны, элитный фитнес-центр с теннисными кортами и бассейном "Резиденция", салоны красоты, школы, детские сады, развивающие центры для детей (Центр Буракова), больницы и многое другое.
Элементы положит. окружения
Поселок граничит с лесным массивом, в 100 метрах находится озеро, тихое красивое место
Хочу посмотретьПоделитесь с друзьями:
Похожие предложения:
Дом, Студенцы д. , 528 м2, 12.2 сот
Калужское шоссе, от МКАД: 19+13 км
Бунинская аллея, Остафьево - от 14 мин на автоДом, Студенцы д.
Варшавское ш., 15 км + 6 км
пл. участка: 12.2 сот
пл. дома: 528 м2
под чистовую отделку
Спален: 8. С/узлов: 4.


Дом, Лесное Озеро к/п (Кузенёво), 435 м2, 15 сот
Ольховая, Теплый стан - от 29 мин на автоДом, Лесное Озеро к/п
Калужское ш., 25 км + 4 км
пл. участка: 15 сот
пл. дома: 435 м2
под отделку
Спален: 4. С/узлов: 3.








