Дом, Синергия КП
Код: 535-835
Особенности объекта
Современный функциональный дом под ключ с мебелью в охраняемом коттеджном поселке. Второй дом от леса. Качественное строительство. Большие окна. Высокие потолки. В доме 5 спален. Участок с собственным выходом в лес. Поселок застроен и имеет все централизованные коммуникации. Близость к МКАД (7 км, почти одинаково с 2-х шоссе), до метро 5 минут на авто. На фото представлен 1й дом от леса за 75 000 0000 руб
Расположение
Ссылка на карту
Синергия КП (Зименки)
Калужское шоссе, от МКАД: 7 км, всего: 11 км
Киевское шоссе, от МКАД: 7 км, всего: 12 км
Тип застройки: сформированный к/п
Метро: Ольховая, Теплый стан, Бунинская аллея; от 10 мин на авто
Коттеджный поселок «Синергия»
Дом
Общая площадь строений: 220 м2
Год постройки дома: 2024
Количество уровней: 3
Спален: 5. С/узлов: 4. Комнат всего: 7.
Опции: терраса (крытая).
Материал стен: поризованный керамический кирпич (производство - ЛСР)
Облицовка стен: кирпич облицовочный керамический, условно эффективный, пластического формования (Вышневолоцкая керамика) (цоколь - искусственный камень)
Кровля: мягкая (водосточка ПВХ белая)
Окна: стеклопакеты ПВХ (2-х камерные белые с раскладкой REACHMONT, большого размера Н-2.5 м, на мансарде - мансардные Velux)
Стадия готовности: меблирован
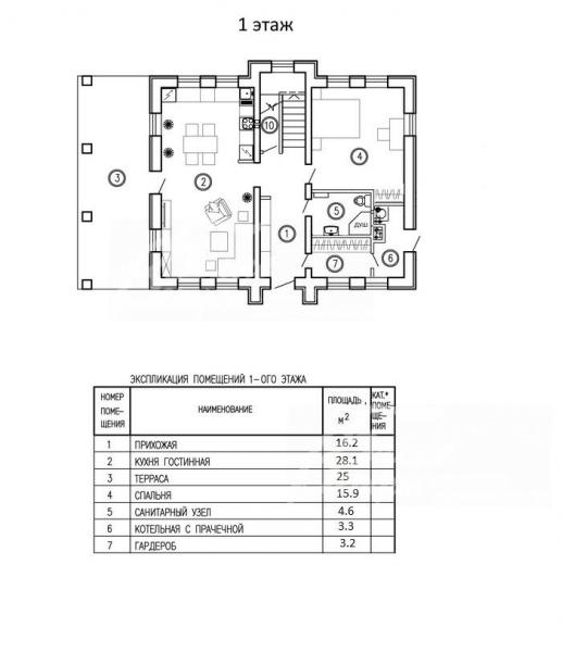
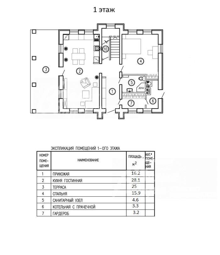
1-ый этаж: прихожая 16 кв.м с гардеробной 3.2 кв.м, кухня-гостиная 28 кв.м с выходом на террасу 25 кв.м, спальня 16 кв.м, санузел 4.6 кв.м (душевая), котельная 3.3 кв.м с отдельным входом
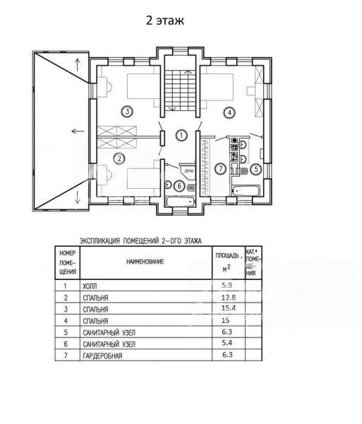
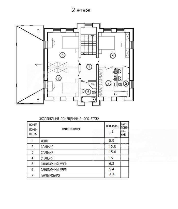
2-ой этаж: холл 6 кв.м, главная спальня 15 кв.м с санузлом 6.3 кв.м (ванная) и с гардеробной 6.3 кв.м, спальня 15.4 кв.м, спальня 13 кв.м, общий санузел 5.4 кв.м (душевая, ванная)
3-ий этаж: холл 7 кв.м, кабинет-библиотека 20 кв.м, спальня с гардеробной 17 кв.м, санузел 3 кв.м (душевая)
Описание внутренней отделки: отделка выполнена под ключ качественными материалами. Лестница ж/б монолитная шириной 0.95 м
Инженерное обеспечение: разведено отопление и теплые водяные полы, э/э разведена до точек, установлен газовый котел и бойлер косвенного нагрева. Вентиляция естественная приточно-вытяжная.
Мебель, оборудование: дом полностью меблирован и оборудован необходимой техникой
Дополнительная информация о доме: дом в стиле современной классики. Фундамент - утепленная ж/б монолитная плита, перекрытия ж/б монолитные. Высота потолков: 1 этаж - 3 м; 2 этаж - 2.9 м; 3 этаж - до 2.7 м (размеры в чистовом варианте)
Участок
Площадь участка, соток: 5
Тип участка: прилесной (со своим выходом в лес)
Благоустройство участка: высажен газон, сделаны дорожки вокруг дома, дренаж, организована стоянка на 2 авто
Статус земли: земли населенных пунктов для ИЖС
Дополнительная информация об участке: ровный участок прямоугольной формы крайний к лесу, огорожен прозрачным металлическим забором
Коммуникации
Газ: есть (магистральный)
Э/э: есть (10 кВт)
Водопровод: центральный (ВЗУ на поселок)
Канализация: централизованная (очистные на поселок)
Интернет: возможно подключение (оптоволокно)
Охрана: есть (КПП)
Описание инфраструктуры
Инфраструктура в поселке: въездная группа с парковкой, общий выход в лес, частный детский сад. Инфраструктура внешняя: лучшая школа в России в Летово, спортивный центр Теннис с кортами, бассейном и фитнес-клубом. В 1 км метро Филатов Луг. В 500 м остановка общественного транспорта до м Тёплый стан (автобус 878). Мега, Ашан, Икеа, магазины и рестораны в Дубровке, спорткомплексы и иные услуги в п.Газопровод, Воскресенское и г. Московский.
Хочу посмотретьПоделитесь с друзьями:
Похожие предложения:
Дом, Монплезир-Пушкино КП (Валуево), 222 м2, 5.52 сот
Калужское шоссе, от МКАД: 5+9 км
Филатов луг, Прокшино - от 9 мин на автоДом, Монплезир-Пушкино КП
Киевское ш., 5 км + 8 км
пл. участка: 5.52 сот
пл. дома: 222 м2
под ключ
Спален: 3. С/узлов: 3.
Дом, Монплезир-Пушкино КП (Валуево), 225 м2, 5.52 сот
Калужское шоссе, от МКАД: 5+9 км
Филатов луг, Прокшино - от 9 мин на автоДом, Монплезир-Пушкино КП
Киевское ш., 5 км + 8 км
пл. участка: 5.52 сот
пл. дома: 225 м2
под ключ
Спален: 5. С/узлов: 2.
Дом, Синергия КП (Зименки), 220 м2, 5 сот
Киевское шоссе, от МКАД: 7+5 км
Ольховая, Теплый стан - от 10 мин на автоДом, Синергия КП
Калужское ш., 7 км + 4 км
пл. участка: 5 сот
пл. дома: 220 м2
меблирован
Спален: 4. С/узлов: 3.
Дом, Синергия КП (Зименки), 224 м2, 6 сот
Киевское шоссе, от МКАД: 7+5 км
Ольховая, Теплый стан - от 10 мин на автоДом, Синергия КП
Калужское ш., 7 км + 4 км
пл. участка: 6 сот
пл. дома: 224 м2
меблирован
Спален: 4. С/узлов: 4.















