Продажа дачи, коттеджа, дома на Киевском, Калужском шоссе — цена, описание, фото, расположение на карте.

Дом, Уварово к/п

Снят с реализации

Код: 284-808

Особенности объекта

Большой и красивый коттедж с бассейном и СПА-зоной на уникальном участке с взрослыми лесными деревьями (березы, ели), граничащем с лесом. Качественные материалы строительства, отличная планировка, живописный вид из окон. Прекрасный вариант для проживания за городом!

Расположение

Ссылка на карту
Ирбис кп (Уварово)
Киевское шоссе, от МКАД: 21 км, всего: 28 км
Калужское шоссе, от МКАД: 17 км, всего: 25 км
Тип застройки: формирующийся к/п
Метро: Филатов луг, Рассказовка, Теплый стан; от 25 мин на авто

Дом

Общая площадь строений: 528 м2
Год постройки дома: 2011
Количество уровней: 3
Спален: 3. С/узлов: 3. Комнат всего: 5.
Опции: бассейн; терраса; машиномест крытых: 2, в т.ч. в теплом гараже: 2.
Материал стен: кирпич щелевой+утеплитель
Облицовка стен: фасадная штукатурка Crepi Decor
Кровля: металлочерепица
Окна: стеклопакеты ПВХ
Стадия готовности: под чистовую отделку (гараж и котельная "под ключ")
1-ый этаж: крыльцо, холл 32 кв.м, гостиная 31 кв.м с выходом на террасу 8 кв.м, кухня-столовая 31 кв.м, СПА-зона с бассейном 59 кв.м, с/узел; гараж 44 кв.м, котельная
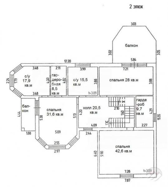
2-ой этаж: холл 20.5 кв.м, спальня 43 кв.м, спальня 31 кв.м с с/узлом 18 кв.м, гардеробной 8.5 кв.м и балконом 8 кв.м, спальня 28 кв.м с балконом 25 кв.м, гардеробная 10 кв.м, с/узел 15.5 кв.м
3-ий этаж: мансарда: помещение свободного назначения 145.5 кв.м
Описание внутренней отделки: стены отшпатлеваны и оштукатурены, выполнена чистовая стяжка пола, потолки выровнены, лестничный марш железобетонный
Инженерное обеспечение: установка котла входит в стоимость, разведен тепловой контур, установлены батареи Kermi, счетчик электричества, вентиляция естественная приточно-вытяжная
Дополнительные строения: Гараж "под ключ" на 2 а/м 43.6 кв.м с автоматическими воротами.
Дополнительная информация о доме: Европейский архитектурный стиль; фундамент и перекрытия монолитные ж/б, высота потолков 3.4 м

Участок

Площадь участка, соток: 12
Тип участка: с лесными деревьями (более 50 вековых берез и елей) и граничит с лесом
Статус земли: земли населенных пунктов, для ИЖС
Дополнительная информация об участке: участок прямоугольной формы, с фасада кованый забор на кирпичных столбах, по бокам металлопрофиль на фундаменте и металлических столбах

Коммуникации

Газ: есть (магистральная)
Э/э: есть (10 кВт)
Водопровод: индивид. скважина (60 м)
Канализация: автономная (+центральная ливневая канализация)
Охрана: есть

Описание инфраструктуры

Прогулочная зона в лесном массиве с живым уголком, детскими и спортивными площадками. В 2-х км школа, детский сад, супермаркет, п. Птичное. В 5 км в коттеджном поселке «Империал» расположена гимназия «Доверие» - начальная школа и детский сад; спа отель "Теплеево резорт", Русская теннисная академия, Ресторан "Весна", школа Уникум. В 8 км г.Троицк. За считанные минуты вы сможете добраться до аэропорта Внуково, бизнес-парка "Румянцево", городам Апрелевка и Троицк, где имеется множество разнообразных инфраструктурных объектов.

Элементы положит. окружения

Тихое место, поселок в окружении леса, 2 больших озера в 5 минутах езды.

Хочу посмотреть


Поделитесь с друзьями:

Собираетесь купить дом, дачу или коттедж на Калужском или Киевском направлении? Обязательно воспользуйтесь услугами компании «Белые Ветры», старейшего оператора загородной недвижимости на Юго-западе Подмосковья!
Рейтинг@Mail.ru