Продажа дачи, коттеджа, дома на Киевском, Калужском шоссе — цена, описание, фото, расположение на карте.

Дом, Уварово к/п

Снят с реализации

Меблированный коттедж 600 кв.м в к/п Уварово

Код: 284-823

Особенности объекта

Коттедж на лесном участке в новом сформированном охраняемом коттеджном поселке. Стильная дизайнерская отделка с использованием дорогих материалов, обставлен элитной мебелью. Кинозал со звукоизолирующими стенами и разводкой под современную звуковую и видео системы. Дубовый и бамбуковый паркет, лестница из массива дуба, дизайнерские мозаичные витражи. В доме большая бильярдная со столом 12 футов и теннисным столом, сауна обшитая кедром, итальянские люстры из муранского стекла. Видеоролик

Расположение

Ссылка на карту
Ирбис кп (Уварово)
Киевское шоссе, от МКАД: 21 км, всего: 28 км
Калужское шоссе, от МКАД: 17 км, всего: 25 км
Тип застройки: сформированный к/п
Метро: Филатов луг, Рассказовка, Теплый стан; от 25 мин на авто

Дом

Общая площадь строений: 600 м2
Год постройки дома: 2011
Количество уровней: 3
Спален: 4. С/узлов полных: 3. С/узлов неполных: 3. Комнат всего: 8.
Опции: сауна; терраса; камин; машиномест крытых: 2, в т.ч. в теплом гараже: 2.
Материал стен: кирпич
Облицовка стен: декор.штукатурка Короед, цоколь - дикий камень
Кровля: металлочерепица
Окна: стеклопакеты ПВХ (двухкамерные, в некоторых помещениях панорамное остекление от пола)
Стадия готовности: меблирован
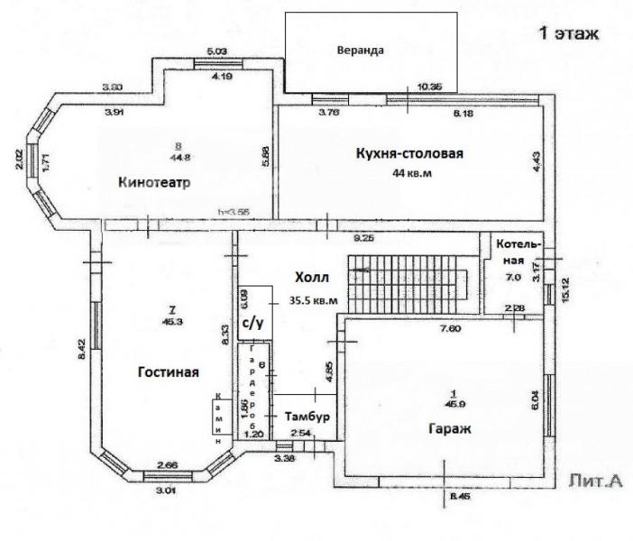
1-ый этаж: прихожая 4.5 кв.м, две гардеробных, холл 35.5 кв.м, с/узел, кухня столовая 44 кв.м с выходом на крытую веранду, гостиная с камином 45 кв.м, кинотеатр 45 кв.м; гараж 46 кв.м, котельная 7 кв.м
2-ой этаж: холл 15.6 кв.м, общий с/узел 12 кв.м, прачечная 4 кв.м, спальня 23 кв.м, гостевая спальня 19 кв.м с с/узлом 6 кв.м, спальня 29 кв.м, Главная спальня 46 кв.м с гардеробной 5 кв.м, балконом и ванной комнатой 21 кв.м с ванной-джакузи и душевой кабиной
3-ий этаж: мансарда - бильярдная 128 кв.м, кабинет 18 кв.м, с/узел 5 кв.м, гардеробная 13 кв.м, душевая 9 кв.м, сауна 12 кв.м
Описание внутренней отделки: Стильная дизайнерская отделка с использованием дорогих материалов. Венецианская штукатурка в гостиной, французская краска, обои в спальнях. Пол - кафель с водяным подогревом, паркетная доска в гостиной, бамбуковый паркет в главной спальне. Потолки подвесные фигурные многоуровневые с различным освещением, в холле 2го этажа подсвечивающийся витраж. Двери из массива ценных пород, подоконники - искусственный гранит. Стены в кинотеатре отделаны пробкой, на полу звукоизолирующий ковролин.
Инженерное обеспечение: установлены газовый котел и бойлер марки Buderus (пр-ва Германии), многоступенчатая система очистки воды. По дому установлены датчики движения для пультовой сигнализации. Вентиляция естественная приточно-вытяжная, установлены кондиционеры. В кинозале выполнена разводка под современную звуковую и видео системы.
Мебель, оборудование: Дом полностю меблирован: итальянский кухонный гарнитур со встроенной техникой (посудомойка, вар.панель, духовой шкаф, винный шкаф, холодильник - Miele (Германия). Камин со стеклянными стенками (пр-ва Германии). Люстры из муранского стекла (Италия). Бильярдный стол 12 футов. В сауне установлена 2-х режимная печь (парная и хамам), а стена выложена соляным кирпичем (Германия). Сантехника марок - Eurodesign (Италия), POOL SPA (Польша), Villeroy&Boch (Германия).
Дополнительная информация о доме: Дом в классическом архитектурном стиле. Фундамент и перекрытия железобетонные монолитные, высота потолков 3.2 м

Участок

Площадь участка, соток: 12
Тип участка: с лесными деревьями (12 взрослых елей, 4 березы)
Благоустройство участка: на участке выполнен ландшафтный дизайн: дорожки из дикого камня и брусчатки, газон, сделано освещение. Вокруг дома и по участку сделан дренаж и выведен в центральную ливневую систему.
Статус земли: земли населенных пунктов для ИЖС
Дополнительная информация об участке: ровный участок прямоугольной формы в центре поселка, огорожен металлическим забором на кирпичных столбах с цоколем, высота 2.5 м.

Коммуникации

Газ: есть (магистральный)
Э/э: есть (15 кВт)
Водопровод: индивид. скважина (65 м)
Канализация: автономная (Топас 8)
Телефон: есть (МГТС)
Интернет: возможно подключение (оптиковолокно, спутниковое ТВ)
Охрана: есть (КПП)

Описание инфраструктуры

Прогулочная зона в лесном массиве с живым уголком, детскими и спортивными площадками. В 2-х км школа, детский сад, супермаркет, п. Птичное. В 5 км в коттеджном поселке «Империал» расположена гимназия «Доверие» - начальная школа и детский сад; спа отель "Теплеево резорт", Русская теннисная академия, Ресторан "Весна", школа Уникум. В 8 км г.Троицк. За считанные минуты вы сможете добраться до аэропорта Внуково, бизнес-парка "Румянцево", городам Апрелевка и Троицк, где имеется множество разнообразных инфраструктурных объектов.

Элементы положит. окружения

Участок граничит с лесным массивом, тихое живописное место.

Хочу посмотреть


Поделитесь с друзьями:

Собираетесь купить дом, дачу или коттедж на Калужском или Киевском направлении? Обязательно воспользуйтесь услугами компании «Белые Ветры», старейшего оператора загородной недвижимости на Юго-западе Подмосковья!
Рейтинг@Mail.ru