Дом, Уварово к/п
Код: 284-825
Особенности объекта
Дом-самолет, построенный по авторскому проекту известного архитектора, в стиле "хай-тек". Конструкция дома такова, что создается впечатление, будто он начинает взлет. Внутри дома преобладают чистые, геометрические линии и цвета, все очень сдержанно и лаконично, и потому — элегантно. Большая площадь остекления, практически из каждого помещения есть выход на террасу или балкон. А для того, чтобы оставить частную жизнь хозяев дома-самолета в тайне, его оборудовали жалюзи. Такое жилище предназначено для проживания в нем целого семейства. В доме есть все необходимое для комфортного проживания: гостиная с камином, кухня-столовая, оборудованная по последнему слову техники, СПА-зона с сауной, 4 спальни с собсвенными балконами и санузлами, гардеробные, гараж, терраса. Система "Умный дом".
Расположение
Ссылка на карту
Ирбис кп (Уварово)
Киевское шоссе, от МКАД: 21 км, всего: 28 км
Калужское шоссе, от МКАД: 17 км, всего: 25 км
Тип застройки: сформированный к/п
Метро: Филатов луг, Рассказовка, Теплый стан; от 25 мин на авто
Дом
Общая площадь строений: 325 м2
Год постройки дома: 2013
Количество уровней: 2
Спален: 4. С/узлов: 4. Комнат всего: 7.
Опции: сауна; квартира для персонала; терраса; камин; машиномест крытых: 2, в т.ч. в теплом гараже: 1.
Материал стен: монолитный каркас, кирпич, утеплитель
Облицовка стен: лиственница, искусственный камень и элементы из нержавейки
Кровля: мягкая
Окна: стеклопакеты ПВХ (двухкамерные ламинированные с низкоэмиссионным стеклом, панорамное остекление)
Стадия готовности: под ключ
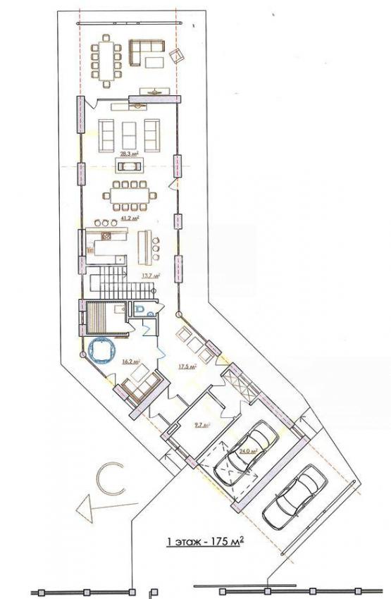
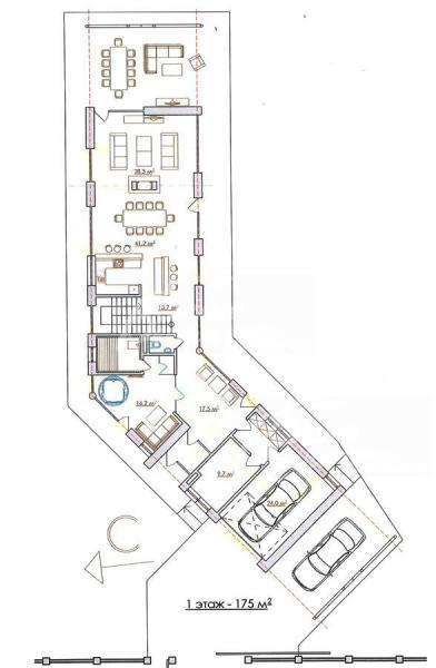
1-ый этаж: Тамбур 3.5 кв.м, холл 17.5 кв.м, с/узел, кухня-столовая 41 кв.м, лестничный холл 14 кв.м, гостиная 28 кв.м с камином, СПА-зона 16 кв.м с сауной 6 кв.м, котельная 10 кв.м, гараж 24 кв.м, навес на 1 авто 24 кв.м, открытая терраса около 60 кв.м, закрытая терраса около 30 кв.м
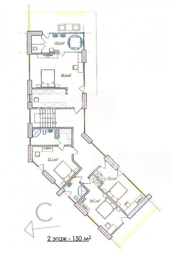
2-ой этаж: холл-коридор 18 кв.м, Главная спальня с гардеробной 40 кв.м, с/узлом 13.5 кв.м (душевая кабина, 2-х местная ванна) и балконом, спальня 27 кв.м с гардеробной, с/узлом 8 кв.м (душевая кабина) и балконом, спальня 19 кв.м с балконом, спальня 18 кв.м с балконом, с/узел 6 кв.м (душевая кабина)
Описание внутренней отделки: Современная отделка в стиле хай-тек с использованием абсолютно экологических материалов: дерева, камня и металла. Стены отделаны лиственницей, искусственным камнем, элементы нержавейки, в спальнях американские бумажные обои. Пол - керамогранит с водяным подогревом, в спальнях паркетная доска. Потолки отделаны лиственницей и подвесные. Лестничный марш - металлическая конструкция с деревянными ступенями. Двери из стекла и дерева.
Инженерное обеспечение: установлены котел и бойлер Protherm, многоступенчатая система очистки воды, кондиционеры установлены, вентиляция естественная с выводными каналами, оборудована пожарная сигнализация с датчиками температуры и дыма (во всех комнатах). По дому проведена разводка для системы "Умный дом".
Мебель, оборудование: Установлен кухонный гарнитур со встроенной бытовой техникой. В санузлах сантехника пр-ва Италии и Швеции.
Дополнительная информация о доме: Дом выстроен в виде Шале в стиле Хай-тек. Фундамент и перекрытия монолитные, высота потолков от 2.7 м до 4 м
Участок
Площадь участка, соток: 15
Тип участка: без деревьев
Благоустройство участка: на участке газон, дорожки, освещение, участок граничит с лесом. Вокруг дома сделан дренаж, ливневая система.
Статус земли: земли населенных пунктов для ИЖС
Дополнительная информация об участке: ровный участок прямоугольной формы крайний к лесу, огорожен металлическим забором 2 м на кирпичных столбах
Коммуникации
Газ: есть (магистральный)
Э/э: есть (12 кВт)
Водопровод: индивид. скважина (65 м)
Канализация: автономная (Топаз выведен в центральную ливневку)
Телефон: возможно подключение
Интернет: есть (оптиковолокно, эфирная ТВ антенна)
Охрана: есть (КПП)
Описание инфраструктуры
Прогулочная зона в лесном массиве с живым уголком, детскими и спортивными площадками. В 2-х км школа, детский сад, супермаркет, п. Птичное. В 5 км в коттеджном поселке «Империал» расположена гимназия «Доверие» - начальная школа и детский сад; спа отель "Теплеево резорт", Русская теннисная академия, Ресторан "Весна", школа Уникум. В 8 км г.Троицк. За считанные минуты вы сможете добраться до аэропорта Внуково, бизнес-парка "Румянцево", городам Апрелевка и Троицк, где имеется множество разнообразных инфраструктурных объектов.
Элементы положит. окружения
Поселок находится в лесном массиве, участок имеет собственный выход в лес.
Хочу посмотретьПоделитесь с друзьями:
Похожие предложения:
Дом, Александровы пруды КП, 260 м2, 12 сот
Варшавское шоссе, от МКАД: 24+6 км
Подольск, Ольховая - от 26 мин на автоДом, Александровы пруды КП
Калужское ш., 25 км + 13 км
пл. участка: 12 сот
пл. дома: 260 м2
меблирован
Спален: 4. С/узлов: 2.
Дом, Голицыно-3 КП, 405 м2, 15.2 сот
Киевское шоссе, от МКАД: 32+8 км
Апрелевка, Рассказовка - от 15 мин на автоДом, Голицыно-3 КП
Минское ш., 28 км + 6 км
пл. участка: 15.2 сот
пл. дома: 405 м2
меблирован
Спален: 4. С/узлов: 2.

Дом, Европейская долина к/п (Шаганино), 370 м2, 16.6 сот
Варшавское шоссе, от МКАД: 24+5 км
Прокшино, Коммунарка - от 29 мин на автоДом, Европейская долина к/п
Калужское ш., 25 км + 8 км
пл. участка: 16.6 сот
пл. дома: 370 м2
меблирован
Спален: 5. С/узлов: 2.











