Продажа дачи, коттеджа, дома на Киевском, Калужском шоссе — цена, описание, фото, расположение на карте.

Дом, Уварово к/п

Снят с реализации

Коттедж с бассейном в стиле хайтек 488 кв.м на лесном участке 32 сотки

Код: 284-828

Особенности объекта

Коттедж в современном стиле с бассейном, спортзалом, бильярдной и сауной, на большом лесном участке с уникальным естественным ландшафтом с оврагом и ручьем. Организована зона отдыха возле пруда

Расположение

Ссылка на карту
Ирбис кп (Уварово)
Киевское шоссе, от МКАД: 21 км, всего: 28 км
Калужское шоссе, от МКАД: 17 км, всего: 25 км
Тип застройки: обжитой к/п
Метро: Филатов луг, Рассказовка, Теплый стан; от 25 мин на авто

Дом

Общая площадь строений: 488 м2 (дом 406.5 кв.м+гараж с котельной 81.5 кв.м)
Год постройки дома: 2011
Количество уровней: 3
Спален: 5. С/узлов: 5. Комнат всего: 10.
Опции: бассейн; сауна; квартира для персонала; терраса; камин; холодный подвал; машиномест крытых: 2, в т.ч. в теплом гараже: 2; солярий.
Материал стен: кирпич+утеплитель пеноплекс
Облицовка стен: цоколь отделан диким камнем ракушечником, 1 и 2 этаж отделаны декоративной штукатуркой и деревом
Кровля: другое (эксплуатируемая по железобетону (гидроизоляция))
Окна: стеклопакеты ПВХ
Стадия готовности: меблирован
Цоколь: Лестничный холл 9 кв.м, спортзал с солярием 47 кв.м и с/узлами, бильярдная с баром 52 кв.м, тех.помещение для оборудования бассейна 20 кв.м.
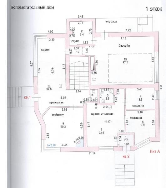
1-ый этаж: Прихожая-кухня 33 кв.м, кабинет 20 кв.м, с/узел, зона бассейна 42 кв.м с чашей переливного бассейна, парная 7 кв.м; Квартира № 1 с отдельным входом: тамбур, кухня-гостиная 23 кв.м, две спальни 10 кв.м и 9 кв.м, с/узел
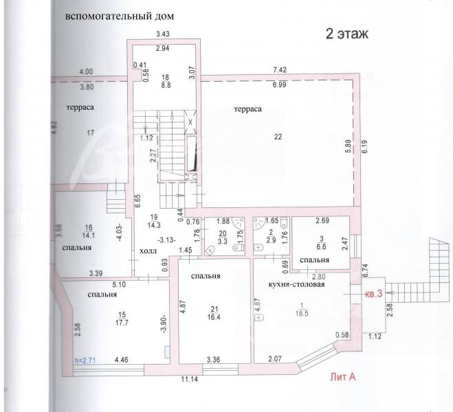
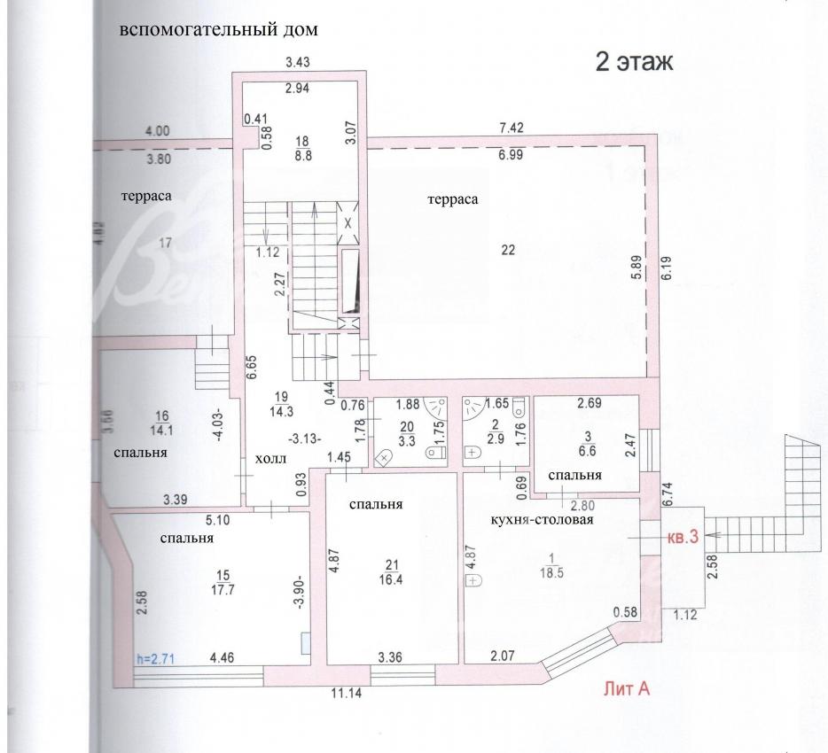
2-ой этаж: Холл 14 кв.м с выходом на террасу 41.5 кв.м, спальня 14 кв.м с выходом на террасу 18.5 кв.м, две спальн 18 кв.м и 16 кв.м, с/узел; Квартира № 2 с отдельным входом: кухня-столовая 18.5 кв.м, спальня 7 кв.м, с/узел
Описание внутренней отделки: Современная отделка в стиле хайтек. Внутренние стены окрашены, отделаны декоративной штукатуркой, деревом и кафелем. На полу кафель с водяным подогревом, паркетная доска. Лестница железобетонная, ступени отделаны кафелем. Потолки подвесные ГКЛ с точечными светильниками, в кабинете деревянные с резными кессонами. Все коммуникации разведены под ключ. Стальные батареи закрыты деревянными панелями. Двери деревянные шпонированные. Вся сантехника установлена.
Инженерное обеспечение: В доме установлены 2 газовых котла Buderus по 60 кВт и бойлер Buderus на 200 л. Система очистки воды многоступенчатая. Вентиляция естественно приточная, в зоне бассейна принудительная.
Дополнительные строения: Гараж с котельной и кирпичной мастерской: гараж 50 кв.м на 2 авто, котельная 15 кв.м, мастерская 16 кв.м. Две теплицы и зона барбекю.
Дополнительная информация о доме: Фундамент железобетонная монолитная плита на подушке, стены ФБС блоки с гидроизоляцией. Перекрытия железобетонные монолитные.

Участок

Площадь участка, соток: 32
Тип участка: лесной
Благоустройство участка: Участок с ландшафтным дизайном, растет более 50 взрослых хвойных деревьев и различных кустарников. Благоустроено место для рыбалки в искусственном пруду с рыбами. Возле выхода из бассейна организована зона барбекю.
Статус земли: земли населенных пунктов для ИЖС
Дополнительная информация об участке: Участок имеет форму трапеции. Огражден каменным забором высотой 3 м.

Коммуникации

Газ: есть (магистральный)
Э/э: есть (15 кВт)
Водопровод: индивид. скважина
Канализация: автономная
Телефон: есть (МГТС)
Интернет: есть
Охрана: есть (КПП)

Описание инфраструктуры

Прогулочная зона в лесном массиве с живым уголком, детскими и спортивными площадками. В 2-х км школа, детский сад, супермаркет, п. Птичное. В 5 км в коттеджном поселке «Империал» расположена гимназия «Доверие» - начальная школа и детский сад; спа отель "Теплеево резорт", Русская теннисная академия, Ресторан "Весна", школа Уникум. В 8 км г.Троицк. За считанные минуты вы сможете добраться до аэропорта Внуково, бизнес-парка "Румянцево", городам Апрелевка и Троицк, где имеется множество разнообразных инфраструктурных объектов.

Хочу посмотреть


Поделитесь с друзьями:

Собираетесь купить дом, дачу или коттедж на Калужском или Киевском направлении? Обязательно воспользуйтесь услугами компании «Белые Ветры», старейшего оператора загородной недвижимости на Юго-западе Подмосковья!
Рейтинг@Mail.ru