Продажа дачи, коттеджа, дома на Киевском, Калужском шоссе — цена, описание, фото, расположение на карте.

Дом, Уварово Парк к/п

Снят с реализации

Коттедж 200 кв.м под чистовую отделку в КП Уваров

Код: 441-804

Особенности объекта

Симпатичный новый дом под чистовую отделку по очень привлекательной цене. Четыре спальни, одна из которых на первом этаже, большая «хозяйская» спальня с санузлом и гардеробной, гараж.

Расположение

Ссылка на карту
Кленовая Аллея КП (Уварово)
Киевское шоссе, от МКАД: 21 км, всего: 28 км
Калужское шоссе, от МКАД: 17 км, всего: 25 км
Тип застройки: формирующийся к/п
Метро: Филатов луг, Рассказовка, Теплый стан; от 25 мин на авто
Коттеджный поселок «Кленовая аллея»

Дом

Общая площадь строений: 200 м2
Год постройки дома: 2014
Количество уровней: 2
Спален: 4. С/узлов: 3. Комнат всего: 5.
Опции: машиномест крытых: 1, в т.ч. в теплом гараже: 1.
Материал стен: кирпич
Облицовка стен: декоративная штукатурка "Короед"
Кровля: металлочерепица
Окна: стеклопакеты ПВХ (двухкамерные)
Стадия готовности: под чистовую отделку
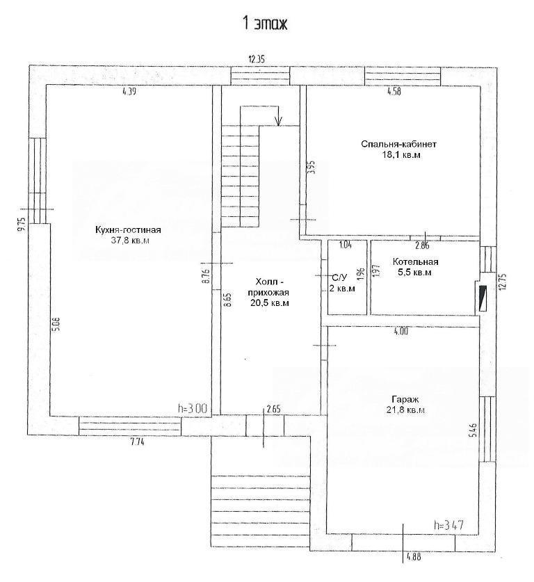
1-ый этаж: крыльцо, холл-прихожая 20.5 кв.м, кухня-столовая/гостиная 38 кв.м, спальня/кабинет 18 кв.м, с/узел 2 кв.м, котельная 5.5 кв.м, гараж 22 кв.м
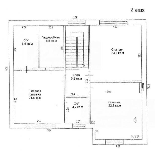
2-ой этаж: холл 5 кв.м, спальня 23 кв.м, с/узел 4.7 кв.м, спальня 23 кв.м, спальня хозяев 21.5 кв.м с с/узлом 8.5 кв.м и гардеробной 8.5 кв.м
Дополнительная информация о доме: Дом сдается с выполненной наружной отделкой "под ключ". Внутри "под чистовую отделку" с разведенными инженерными сетями отопления.

Участок

Площадь участка, соток: 8
Тип участка: без деревьев
Статус земли: земли населенных пунктов
Дополнительная информация об участке: все участки в поселке с уличного фасада огорожены забором, в едином архитектурном стиле

Коммуникации

Газ: есть
Э/э: есть
Водопровод: индивид. скважина
Канализация: автономная
Телефон: возможно подключение (по границе участка будет проходить кабель оптоволокна)
Интернет: возможно подключение (по границе участка будет проходить кабель оптоволокна)
Охрана: есть (КПП)

Описание инфраструктуры

Прогулочная зона в лесном массиве с живым уголком, детскими и спортивными площадками. В 2 км в поселке Птичное - школа, детский сад, фитнес-центр, супермаркет, рестораны. В 5 км в коттеджном поселке «Империал» расположена гимназия «Доверие» - начальная школа и детский сад; Империал Парк Отель & SPA, Русская теннисная академия, Ресторан "Весна", школа Уникум. В 8 км г.Троицк. За считанные минуты вы сможете добраться до аэропорта Внуково, бизнес-парка "Румянцево", городам Апрелевка и Троицк, где имеется множество разнообразных инфраструктурных объектов.

Элементы положит. окружения

Поселок находится рядом с лесным массивом.

Хочу посмотреть


Поделитесь с друзьями:

Собираетесь купить дом, дачу или коттедж на Калужском или Киевском направлении? Обязательно воспользуйтесь услугами компании «Белые Ветры», старейшего оператора загородной недвижимости на Юго-западе Подмосковья!
Рейтинг@Mail.ru