Продажа дачи, коттеджа, дома на Киевском, Калужском шоссе — цена, описание, фото, расположение на карте.

Дом, Уварово Парк к/п

Снят с реализации

Коттедж 351 кв.м под чистовую отделку в кп Уварово парк

Код: 441-809

Особенности объекта

Функциональный уютный коттедж с четырьмя спальнями, одна из которых на первом этаже, просторная гостиная с выходом на участок. Поселок в едином архитектурном стиле расположен недалеко от леса.

Расположение

Ссылка на карту
Кленовая Аллея КП (Уварово)
Киевское шоссе, от МКАД: 21 км, всего: 28 км
Калужское шоссе, от МКАД: 17 км, всего: 25 км
Тип застройки: формирующийся к/п
Метро: Филатов луг, Рассказовка, Теплый стан; от 25 мин на авто
Коттеджный поселок «Кленовая аллея»

Дом

Общая площадь строений: 351 м2
Год постройки дома: 2014
Количество уровней: 3
Спален: 4. С/узлов полных: 2. С/узлов неполных: 1. Комнат всего: 6.
Опции: машиномест крытых: 1, в т.ч. в теплом гараже: 1.
Материал стен: кирпич
Облицовка стен: декоративная штукатурка Короед
Кровля: металлочерепица
Окна: стеклопакеты ПВХ
Стадия готовности: под чистовую отделку
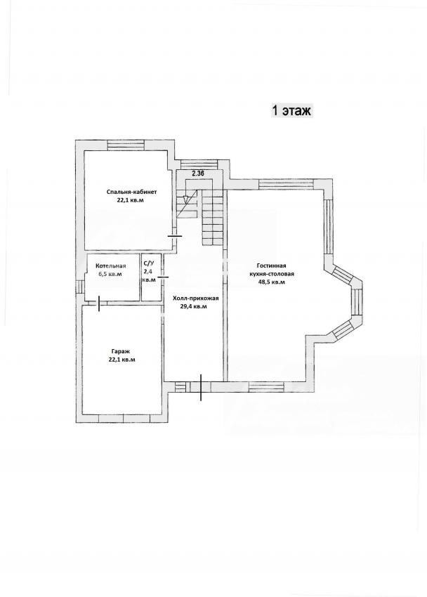
1-ый этаж: холл-прихожая 29.4 кв.м, гостиная-кухня-столовая 48.5 кв.м, спальня-кабинет 22 кв.м, с/узел 2.4 кв.м, гараж 22 кв.м, котельная 6.5 кв.м
2-ой этаж: холл 10 кв.м, спальня 20.7 кв.м , спальня 21.4 кв.м, с/узел 6 кв.м, хозяйский блок: коридор 5.4 кв.м, спальня 20 кв.м с балконом, санузел 13 кв.м, гардеробная 9.6 кв.м
3-ий этаж: мансарда - помещение свободной планировки 113 кв.м
Дополнительная информация о доме: Дом с выполненной наружной отделкой "под ключ". Внутри "под чистовую отделку".

Участок

Площадь участка, соток: 10
Тип участка: поле
Статус земли: земли населенных пунктов
Дополнительная информация об участке: ровный участок прямоугольной формы, по периметру огорожен забором из металлопрофиля

Коммуникации

Газ: есть
Э/э: есть
Водопровод: индивид. скважина
Канализация: автономная
Телефон: возможно подключение
Интернет: возможно подключение
Охрана: есть (КПП)

Описание инфраструктуры

Прогулочная зона в лесном массиве с живым уголком, детскими и спортивными площадками. В 2 км в поселке Птичное - школа, детский сад, фитнес-центр, супермаркет, рестораны. В 5 км в коттеджном поселке «Империал» расположена гимназия «Доверие» - начальная школа и детский сад; Империал Парк Отель & SPA, Русская теннисная академия, Ресторан "Весна", школа Уникум. В 8 км г.Троицк. За считанные минуты вы сможете добраться до аэропорта Внуково, бизнес-парка "Румянцево", городам Апрелевка и Троицк, где имеется множество разнообразных инфраструктурных объектов.

Элементы положит. окружения

Поселок находится рядом с лесным массивом.

Хочу посмотреть


Поделитесь с друзьями:

Похожие предложения:

Дом, Власово, 298.2 м2, 12.1 сот

код: 299-910
Киевское шоссе, от МКАД: 21+2 км
Минское шоссе, от МКАД: 22+5 км
Метро Крёкшино, Пыхтино - от 16 мин пешком
коробка, спален: 5, с/узлов: 5

Дом, Власово

Код объекта: 299-910
Киевское ш., 21 км + 2 км
пл. участка: 12.1 сот
пл. дома: 298.2 м2
коробка
Спален: 5. С/узлов: 5.
18 000 000 
Собираетесь купить дом, дачу или коттедж на Калужском или Киевском направлении? Обязательно воспользуйтесь услугами компании «Белые Ветры», старейшего оператора загородной недвижимости на Юго-западе Подмосковья!
Рейтинг@Mail.ru