Дом, Уварово Парк к/п
Код: 441-816
Особенности объекта
Новый трехэтажный кирпичный дом с качественной современной отделкой. В доме много спален, можно организовать бильярдную, кинозал.
Расположение
Ссылка на карту
Кленовая Аллея КП (Уварово)
Киевское шоссе, от МКАД: 21 км, всего: 28 км
Калужское шоссе, от МКАД: 17 км, всего: 25 км
Тип застройки: обжитой к/п
Метро: Филатов луг, Рассказовка, Теплый стан; от 25 мин на авто
Коттеджный поселок «Кленовая аллея»
Дом
Общая площадь строений: 345 м2
Год постройки дома: 2015
Количество уровней: 3
Спален: 5. С/узлов: 4. Комнат всего: 8.
Опции: терраса; камин; бильярдная.
Материал стен: кирпич
Облицовка стен: искусственный камень + декоративная штукатурка " Короед"
Кровля: металлочерепица
Окна: стеклопакеты ПВХ
Стадия готовности: под ключ
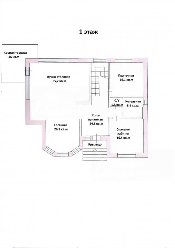
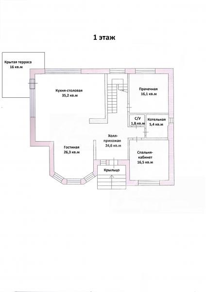
1-ый этаж: Холл-прихожая 24.6 кв.м, гостиная со вторым светом 26 кв.м, кухня-столовая 35 кв.м с выходом на террасу 15 кв.м, спальня- кабинет 16 кв.м, прачечная 16.5 кв.м, с/узел, котельная 5.4 кв.м.
2-ой этаж: Холл 27 кв.м, гл.спальня 20 кв.м с с/узлом 11 кв.м и с гардеробной 10 кв.м, спальня 20 кв.м с с/узлом 7.4 кв.м.
3-ий этаж: Холл 6.5 кв.м, бильярдная-кинозал 70 кв.м, спальня 19 кв.м, спальня 17 кв.м, с/узел 6 кв.м.
Описание внутренней отделки: На стенах французская декоративная окраска, в санузлах -кафель, в спальнях- обои, в бильярдной- пробка. Полы отделаны кафелем, керамогранитом с водяным подогревом, в жилых зонах паркетной доской, в бильярдной и спальне на мансарде ковролином. Лестничный марш железобетонный монолитный отделан натуральным мрамором, перила-художественная ковка. Потолки подвесные ГКЛ многоуровневые с подсветкой. Мансарда обшита вагонкой. Все коммуникации разведены под ключ.
Инженерное обеспечение: В доме установлены газовый котел Buderus на 53 кВт и бойлер косвенного нагрева Buderus на 200 л.
Дополнительная информация о доме: Фундамент железобетонный монолитный ленточный, перекрытия железобетонные монолитные. Высота потолков от 2.9 м.
Участок
Площадь участка, соток: 15
Тип участка: прилесной
Благоустройство участка: Участок с ландшафтным дизайном, разбит газон, сделаны дорожки и уличное освещение
Статус земли: Земли населенных пунктов для ИЖС
Дополнительная информация об участке: Участок прямоугольной формы, крайний к лесу, огражден металлическим забором на бетонном цоколе
Коммуникации
Газ: есть (магистральный)
Э/э: есть (10 кВт)
Водопровод: индивид. скважина (60 м)
Канализация: автономная (выведен в центральную ливневую систему)
Телефон: есть (МГТС)
Интернет: есть
Охрана: есть (КПП)
Описание инфраструктуры
Прогулочная зона в лесном массиве с живым уголком, детскими и спортивными площадками. В 2 км в поселке Птичное - школа, детский сад, фитнес-центр, супермаркет, рестораны. В 5 км в коттеджном поселке «Империал» расположена гимназия «Доверие» - начальная школа и детский сад; Империал Парк Отель & SPA, Русская теннисная академия, Ресторан "Весна", школа Уникум. В 8 км г.Троицк. За считанные минуты вы сможете добраться до аэропорта Внуково, бизнес-парка "Румянцево", городам Апрелевка и Троицк, где имеется множество разнообразных инфраструктурных объектов.
Хочу посмотретьПоделитесь с друзьями:
Похожие предложения:
Дом, Голицыно-3 КП, 405 м2, 15.2 сот
Киевское шоссе, от МКАД: 32+8 км
Апрелевка, Рассказовка - от 15 мин на автоДом, Голицыно-3 КП
Минское ш., 28 км + 6 км
пл. участка: 15.2 сот
пл. дома: 405 м2
меблирован
Спален: 4. С/узлов: 2.




