Продажа дачи, коттеджа, дома на Киевском, Калужском шоссе — цена, описание, фото, расположение на карте.

Дом, Ватутинки ТИЗ

Снят с реализации

Готовый к проживанию дом 425 кв.м в КП Ватутинки ТИЗ

Код: 350-803

Особенности объекта

Индивидуальный проект дома в стиле минимализма. С большим вкусом сделана отделка и подобрана мебель, удобная планировка. Полный функционал дома высокого бизнес-класса. Домик для персонала, бильярдная, СПА-зона с купелью и сауной, второй свет. Очень красивый лесной участок с вековыми соснами и шикарным ландшафтным дизайном в японском стиле. Обжитой охраняемый поселок с центральными коммуникациями.

Расположение

Ссылка на карту
Ватутинки ТИЗ (Десна)
Калужское шоссе, от МКАД: 14 км, всего: 16 км
Тип застройки: обжитой к/п
Метро: Ольховая, Прокшино, Теплый стан; от 15 мин на авто
Коттеджный поселок «Ватутинки ТИЗ»

Дом

Общая площадь строений: 429 м2 (Дом 405 кв.м + домик для персонала 24 кв.м)
Количество уровней: 4
Спален: 5. С/узлов: 5. Комнат всего: 7.
Опции: сауна; квартира для персонала; терраса; камин; холодный подвал; машиномест крытых: 2, в т.ч. в теплом гараже: 2; бильярдная, спортзал, эксплуатируемая кровля, второй свет, аквариум, генераторная, мастерская, небольшой круглый бассейн с гидромассажем D-3 м.
Материал стен: кирпич
Кровля: другое (эксплуатируемая с гидроизоляцией, сверху керамогранит)
Окна: стеклопакеты ПВХ (однокамерные снаружи, ламинированные под дерево)
Стадия готовности: меблирован
Цоколь: Спортзал 31 кв.м, комната отдыха 29 кв.м, предбанник 5 кв.м с душевой, сауна-парная, с/узел, сейфовая комната, котельная 8 кв.м, техническое помещение 34.6 кв.м, кладовая, генераторная-мастерская 10 кв.м с отдельным входом с улицы.
1-ый этаж: Холл-прихожая 15 кв.м с гардеробной, кухня 9 кв.м, столовая 15 кв.м со вторым светом, гостиная 41.6 кв.м с выходом на террасу, спальня 8 кв.м, с/узел, прачечная 3 кв.м, гараж 30.6 кв.м.
2-ой этаж: Холл 6 кв.м, спальня 14 кв.м, спальня 12.4 кв.м, с/узел с ванной, холл-кабинет 9 кв.м с выходом на террасу 30 кв.м, спальня 17 кв.м с с/узлом 12.6 кв.м с душевой и ванной с гидромассажем и с гардеробной.
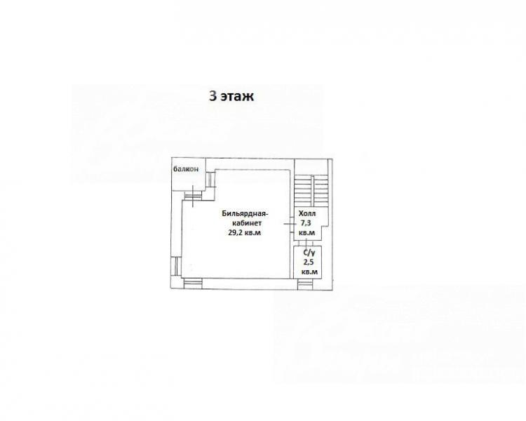
3-ий этаж: Холл 7 кв.м, бильярдная-кабинет 29 кв.м с выходом на балкон, с/узел.
Описание внутренней отделки: Современная стильная отделка с дизайнерскими элементами. Стены окрашены, в гостиной и столовой декоративная штукатурка с элементами " старинной фрески", в бильярдной стены обшиты деревянными панелями высотой 1 м. В отделке есть элементы из стеклоблоков и элементов из искусственного камня. Полы на первом этаже, в цоколе и санузлах из кафеля с водяным подогревом, в спальнях и кабинете ковролин, в других зонах паркетная доска. Потолки подвесные ГКЛ многоуровневые с различной подсветкой. Лестничный марш железобетонный монолитный, ступени деревянные из дуба. Вся сантехника установлена итальянских и швецких производителей. Все коммуникации разведены под ключ. Батареи стальные Kermi. Двери шпонированные, есть откатные.
Инженерное обеспечение: В доме установлены газовый котел на 65 кВт и бойлер косвенного нагрева на 300 л марки Viessmann. Система очистки воды многоступенчатая. Вентиляция естественно-приточная, в цокольном этаже принудительная, в жилых помещениях кондиционеры. В доме пультовая сигнализация (датчики движения по дому), есть видеонаблюдение по участку и скрытое в доме + пожарная сигнализация. Для бассейна установлено оборудование для фильтрации и подогрева. Есть стабилизаторы электричества и дизельный генератор FG Wilson с автозапуском на 13.9 кВт.
Дополнительные строения: Домик для персонала 35 кв.м из клееного профилированного бруса. Прихожая- мини кухня, жилая комната и с/у. Отапливается электроконвекторами и печью на дровах. Летняя деревянная беседка.
Дополнительная информация о доме: Фундамент-железобетонная монолитная плита на подушке и железобетонные монолитные стены цоколя. Перекрытия железобетонные монолитные. Высота потолков от 3 м.

Участок

Площадь участка, соток: 21.5
Тип участка: лесной
Благоустройство участка: На участке выполнен шикарный ландшафтный дизайн: с вековыми деревьями растут взрослые деревья: сосны 40 шт., березы 10 шт., туи более 10 шт. высотой выше 5 м, ели 5 шт., голубые ели 3 шт., яблони и груши 5 шт., клен 2 шт., лиственница 4 шт. и декоративные кустарники, устроены розарии, каменные садики, есть светлая поляна на участке, дом и некоторые деревья увиты диким виноградом, разбит газон, сделаны дорожки из брусчатки и проведено уличное освещение. Вокруг дома и по участку сделан дренаж.
Статус земли: Земли населенных пунктов для ИЖС
Дополнительная информация об участке: Участок прямоугольной формы, расположен в центре поселка, вторая линия от воды (река Десна), имеет 2 заезда между двумя улицами, огражден со всех сторон деревянным забором высотой выше 2 метров на кирпичных столбах с бетонным цоколем.

Коммуникации

Газ: есть (магистральный)
Э/э: есть (15 кВт)
Водопровод: центральный (плюс скважина 40 м)
Канализация: централизованная
Телефон: есть (МГТС)
Интернет: есть (оптиковолокно)
Охрана: есть (КПП, каждые 2 часа патрулирование)

Описание инфраструктуры

В поселке развитая инфраструктура, своя коммунальная служба (уборка территории, вывоз мусора), собственная резервная дизельная подстанция, есть детская площадка. Освещение улиц поселка и круглосуточная охрана. Хорошее транспортное сообщение с Москвой. В пешей доступности расположены объекты спортивной инфраструктуры ЦСКА, включая конно-спортивный комплекс, футбольный клуб, центр олимпийской подготовки с прекрасным бассейном, спортивную школу и культурно-развлекательный центр с детскими развивающими студиями, это идеальное место для активного отдыха и развития детей. В шаговой доступности находятся ресторан «Наш Бараш», супермаркет «Азбука Вкуса», химчистка, а также муниципальные и частные школы и детские сады. Рядом находятся прекрасный лес и озеро, предоставляющие возможности для прогулок на природе и отдыха на свежем воздухе. В перспективе планируется открытие станции метро «Ватутинки», что ещё больше упростит транспортную доступность.

Хочу посмотреть


Поделитесь с друзьями:

Собираетесь купить дом, дачу или коттедж на Калужском или Киевском направлении? Обязательно воспользуйтесь услугами компании «Белые Ветры», старейшего оператора загородной недвижимости на Юго-западе Подмосковья!
Рейтинг@Mail.ru