Дом, Ваутутинки к/п
Код: 140-319
Особенности объекта
Дом построен по эксклюзивному авторскому проекту. При отделке использованы натуральные материалы класса люкс, такие как мрамор, дерево ценных пород, деревянные стеклопакеты. В оформлении интерьера - роспись на потолках, художественная ковка, лепнина. Мебель и аксесуары от ведущих мировых фирм. В доме есть сауна с комнатой в марокканском стиле, двухсветная гостиная с камином, просторная терраса. Отдельный домик для персонала. Шикарный ландшафтный дизайн. Коттеджный поселок премиального уровня, в лесном массиве, со своим бассейном и фитнесом. Видеоролик по дому
Расположение
Ссылка на карту
Ваутутинки к/п (Ватутинки)
Калужское шоссе, от МКАД: 15 км, всего: 17 км
Тип застройки: обжитой к/п
Метро: Ольховая, Теплый стан, Щербинка; от 14 мин на авто
Коттеджный поселок «ВауТутинки»
Дом
Общая площадь строений: 500 м2 (жилой дом 469 кв.м+дом для персонала 32 кв.м)
Год постройки дома: 2008
Количество уровней: 3
Спален: 5. С/узлов: 4. Комнат всего: 8.
Опции: сауна; квартира для персонала; терраса; камин; холодный подвал; машиномест крытых: 3, в т.ч. в теплом гараже: 1.
Материал стен: стены цоколя-монолитные, стены-кирпичный камень
Облицовка стен: облицовочный кирпич и камень
Кровля: мягкая
Окна: стеклопакеты деревянные
Стадия готовности: меблирован
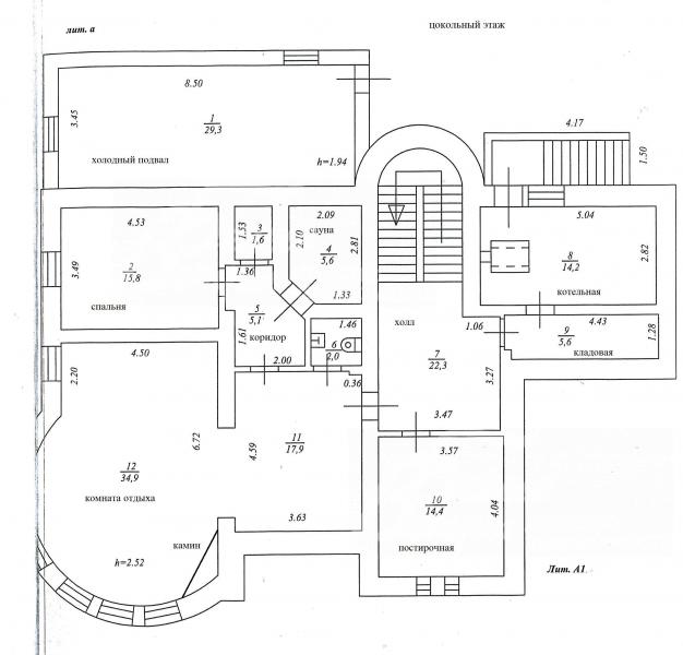
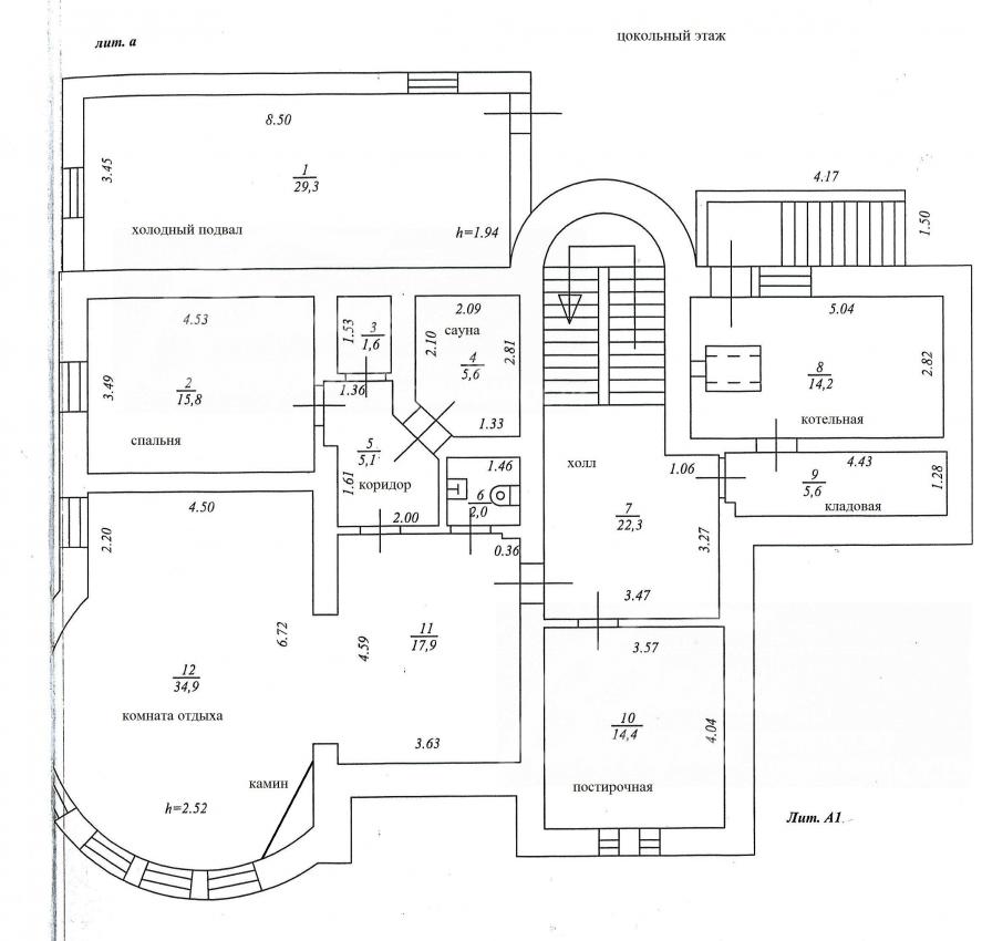
Цоколь: Холл 22 кв.м, сауна 5.6 кв.м с душевой, с/узел, комната отдыха 53 кв.м, спальня 16 кв.м, постирочная 14 кв.м, котельная 14 кв.м, кладовая, холодный подвал 29 кв.м
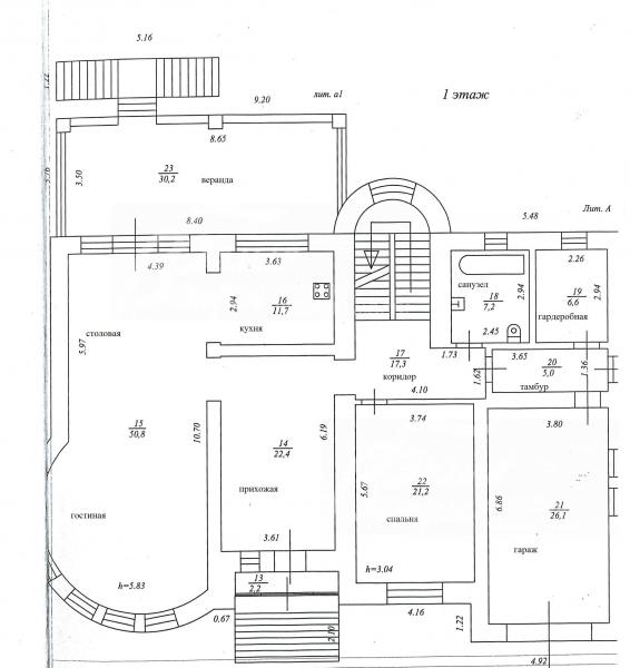
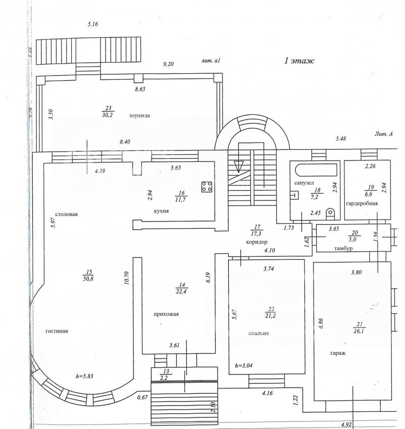
1-ый этаж: Крыльцо, прохладный тамбур, прихожая с холлом 22 кв.м, гостиная-столовая 51 кв.м с выходом на крытую веранду 30 кв.м, кухня 12 кв.м, коридор 17 кв.м, гостевая комната (спальня) 21 кв.м, санузел 7 кв.м, гараж на 1 а/м 26 кв.м, гардеробная 7 кв.м
2-ой этаж: Холл 14 кв.м, главная спальня 16.5 кв.м c будуаром 15 кв.м и санузлом 8 кв.м, 2 спальни 19 кв.м и 20 кв.м, санузел 6 кв.м на 2 спальни
Описание внутренней отделки: Отделка элитными материалами по авторскому дизайну, в классическом стиле. Несколько колонн. Потолки оштукатурены, окрашены, также многоуровневые потолки с кессонами, карнизами и прочим декором. Полы отделаны керамогранитом, палубным паркетом. Стены оклеены бумажными с воском обоями, окрашены в тех.помещениях. Лестничный марш отделан деревом, ограждение кованое. В доме установлена сантехника марки Villeroy&Boch. Двери - массив красного дерева.
Инженерное обеспечение: Вентиляция естественная. Система очистки воды многоступенчатая. Освещение в доме на датчиках, включается автоматически. В доме установлены газовый котел Lamborghini и бойлер StyleBoiler на 300 л. Домик для персонала снабжается горячей водой по подземной теплотрассе.
Мебель, оборудование: В стоимость входит вся мебель, сделанная исключительно на заказ (шкафы, гарнитуры, спальни и т.д.), а также антикварная. Также красивые люстры, ТВ и др. техника, ковры, элитные шторы, зеркала.
Дополнительные строения: Небольшой 1-этажный домик (кухня, с/у, спальня) для персонала (4х6м)
Дополнительная информация о доме: Фундамент- монолитная плита, перекрытия-железобетонная плита. Высота потолков более 3х метров.
Участок
Площадь участка, соток: 24
Тип участка: садово-парковый
Благоустройство участка: Участок с ландшафтным дизайном. Растут 30 лесных деревьев (туи, зеленые и голубые ели, ива), плодовые деревья (груши, яблони, сливы, орех, вишня, черешня), виноград, кусты роз, сирени, боярышник. Сделан дренаж.
Статус земли: Земли населенных пунктов под ИЖС
Дополнительная информация об участке: Участок расположен в середине поселка, огражден с фасада кованым забором.
Коммуникации
Газ: есть (магистральный)
Э/э: есть (20 кВт)
Водопровод: центральный
Канализация: централизованная
Телефон: есть
Охрана: есть (строгая охрана (3 КПП - основной и 2 резервных), весь периметр посёлка огорожен и оборудован системой видеонаблюдения, в домах имеются тревожные кнопки, внутри поселка - 2 КПП и также система видеонаблюдения, постоянное (круглосуточное) патрулирование, центральный пост охраны на въезде, от основной дороги к поселку ведет внутренняя дорога (около 600 метров), которая также обеспечена системой видеонаблюдения. Постоянный контакт охраны с полицией и ГБР.)
Описание инфраструктуры
В поселке спортивно-развлекательный центр (фитнес-зал, бассейн, сауны, боулинг, бильярдный зал, банкетный зал, бар-кафе, мини-детский сад), зона отдыха на берегу небольшого пруда, площадка для игр (большой теннис, минифутбол, волейбол); детская площадка; служба доставки продуктов, прачечная, гостевая автостоянка
Элементы положит. окружения
Лес,озера
Хочу посмотретьПоделитесь с друзьями:
Похожие предложения:
Дом, Идиллия КП (Раево), 550 м2, 23.2 сот
Ольховая, Теплый стан - от 27 мин на автоДом, Идиллия КП
Калужское ш., 22 км + 3 км
пл. участка: 23.2 сот
пл. дома: 550 м2
под ключ
Спален: 7. С/узлов: 6.
Дом, Лесное Озеро к/п (Кузенёво), 590 м2, 20 сот
Ольховая, Теплый стан - от 29 мин на автоДом, Лесное Озеро к/п
Калужское ш., 25 км + 4 км
пл. участка: 20 сот
пл. дома: 590 м2
меблирован
Спален: 4. С/узлов: 4.
Дом, Лесное Озеро к/п (Кузенёво), 558 м2, 20 сот
Ольховая, Теплый стан - от 29 мин на автоДом, Лесное Озеро к/п
Калужское ш., 25 км + 4 км
пл. участка: 20 сот
пл. дома: 558 м2
меблирован
Спален: 5. С/узлов: 5.
Дом, Лесное Озеро к/п (Кузенёво), 506.5 м2, 30 сот
Ольховая, Теплый стан - от 29 мин на автоДом, Лесное Озеро к/п
Калужское ш., 25 км + 4 км
пл. участка: 30 сот
пл. дома: 506.5 м2
меблирован
Спален: 5. С/узлов: 3.
Дом, Грибово КП, 462 м2, 27.48 сот
Рассказовка, Пыхтино - от 22 мин на автоДом, Грибово КП
Минское ш., 12 км + 1 км
пл. участка: 27.48 сот
пл. дома: 462 м2
меблирован
Спален: 3. С/узлов: 4.





















