Дом, Ваутутинки к/п
Код: 140-809
Особенности объекта
Усадьба в стиле английского классицизма. Великолепный участок с вековыми дубами и уникальным рельефом. Облицовка стен - клинкерный кирпич, кровля – немецкий сланец. Элитная отделка в стиле классической Англии: английские бумажные обои, на полу эксклюзивная керамическая плитка и мрамор, паркет из массива дуба, окна из лиственницы и двери с большими проемами по индивидуальному заказу, мраморные подоконники, мощная инженерия, мебель из Англии, Италии. Баня рубленая из лафета кедра, квартира для персонала. В поселке развитая инфраструктура: фитнесс клуб, бассейн, парковая-прогулочная зона.
Расположение
Ссылка на карту
Ваутутинки к/п (Ватутинки)
Калужское шоссе, от МКАД: 15 км, всего: 17 км
Тип застройки: обжитой к/п
Метро: Ольховая, Теплый стан, Щербинка; от 14 мин на авто
Коттеджный поселок «ВауТутинки»
Дом
Общая площадь строений: 1000 м2 (в т.ч.: дом 970 кв.м, банный комплекс 30.5 кв.м)
Год постройки дома: 2012
Количество уровней: 3
Спален: 6. С/узлов: 6. Комнат всего: 12.
Опции: баня; квартира для персонала; терраса; камин; машиномест крытых: 2, в т.ч. в теплом гараже: 2.
Материал стен: керамический блок+клинкерный кирпич
Облицовка стен: клинкерный кирпич Roben (Германия)
Кровля: сланец (Theis-Boger Германия)+цинк-титановое покрытие Rheinzink, подогрев кровли
Окна: стеклопакеты деревянные (тройные стеклопакеты, рамы - лиственница, высота проемов 2.7 м от пола, низкоэмиссионное стекло (пр-во Словении))
Стадия готовности: под ключ (частично меблирован)
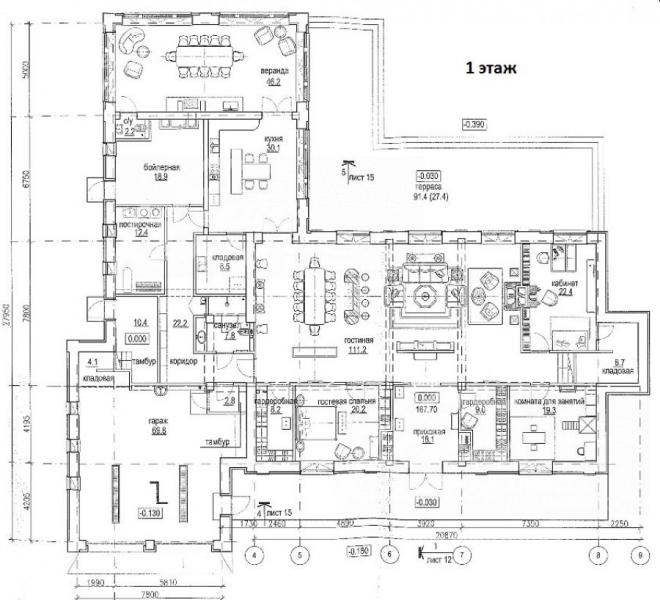
1-ый этаж: Прихожая 18 кв.м с гардеробной 9 кв.м, гостиная 111 кв.м с камином и выходом на террасу 91кв.м, кухня 30 кв.м с кладовой 8.5 кв.м и с выходом в зимнюю отапливаемую веранду 46 кв.м (с печью, мангалом, с/узлом), кабинет 22 кв.м с камином и кладовой 9 кв.м, спальня 20 кв.м с гардеробной, комната для занятий 19 кв.м, холл 22 кв.м, с/узел 8 кв.м, постирочная 12 кв.м, бойлерная 19 кв.м, гараж для 2 а/м и мото-техники 70 кв.м с кладовой 4 кв.м
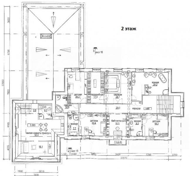
2-ой этаж: Главная спальня 28 кв.м с двумя гардеробными (мужская и женская) 7 и 9 кв.м и с ванной комнатой 26 кв.м; детская спальня 19.3 кв.м с с/узлом 9.3 кв.м, детская спальня 20.4 кв.м с с/узлом 7.7 кв.м, детская спальня 20.2 кв.м с с/узлом 10.8 кв.м, библиотека 16.5 кв.м с балконом. Также на 2-ом этаже квартира для персонала (с отдельным входом с улицы, без сообщения с другими помещениями этажа): коридор, с/узел 6 кв.м, кухня-гостиная 35 кв.м, спальня 18 кв.м.
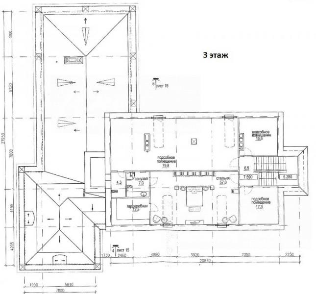
3-ий этаж: кинотеатр-бильярдная 80 кв.м с с/узлом 4.5 кв.м, спальня 57 кв.м с гардеробной 12.5 кв.м и с/узлом 7 кв.м, чемоданная 17 кв.м, кладовая 17 кв.м
Описание внутренней отделки: Элитная отделка в стиле классической Англии 30-х годов. Стены в спальнях оклеены бумажными английскими обоями (без винила), в других помещениях окрашены английской краской. Пол отделан керамической плиткой и керамогранитом: Versace, Bardeli, Grazia, мрамор с водяным подогревом, массив дуба (способ укладки: французская ёлка), в спальнях палубный паркет. Потолки подвесные многоуровневые с подсветкой, карнизами с лепниной (гипсовая - на заказ).
Инженерное обеспечение: 2 газовых котла «De Dietrich» по 45 кВт, бойлер на 400 л, многоступенчатая система очистки воды. Система кондиционирования (потолочная). Видеонаблюдение, пожарная и охранная сигнализации разведены по дому, есть возможность подключиться на пульт. Во всех с/у установлены датчики протечки воды.
Мебель, оборудование: Установлен итальянский кухонный гарнитур фабрики Zonta, выполненный по индивидуальному заказу, со встроенной техникой: два холодильника Liebherr, варочная панель и духовой шкаф Smeg, посудомойка Bosch. Столовый гарнитур со стульями Roche Bobois. В спальнях комоды Ralph Lauren, в Главной спальне большая кровать 2.1х1.9 м (Англия). Красивые шторы пр-ва Англии, Америки и Франции. В библиотеке гобеленовые шторы. Сантехника известных марок Devon@devon, Villeroy&Boch.
Дополнительные строения: Баня 30.5 кв.м под чистовую отделку – сруб (лафет) из кедра с печью (в баню проведена теплотрасса для отопления и водоснабжения).
Дополнительная информация о доме: Усадьба выполнена в стиле Английского классицизма. В доме два камина: в гостиной камин с мраморным порталом (топка со стеклом), в кабинете камин из оружейной стали. На зимней веранде печь на углях с изразцами (для шашлыка/гриля). Высокие межкомнатные дверные проемы высотой 2.4 м, наружные двери из лиственницы. Подоконники из натурального мрамора, снаружи - гранитные. Лестничный марш монолитный шириной 1.6 м, ступени и перила из массива дуба.
Участок
Площадь участка, соток: 38
Тип участка: парковый со взрослыми деревьями и ландшафтом
Благоустройство участка: участок с уникальным парковым ландшафтом: растут 7 вековых дубов, взрослые березы, декоративные кустарники, газон, дорожки и площадка перед домом выложена клинкерной брусчаткой Roben (Германия), сделан мостик через овраг, вокруг дома и участка сделан дренаж.
Статус земли: земли населенных пунктов для ИЖС
Дополнительная информация об участке: по участку проходит овраг, который прекрасно вписывается в ландшафтный дизайн участка. Территория огорожена каменным забором со вставками кованной изгороди.
Коммуникации
Газ: есть (магистральный)
Э/э: есть (21 кВт)
Водопровод: центральный (+индивидуальная скважина глуб.80 м)
Канализация: централизованная (+централизованная ливневка)
Телефон: возможно подключение (МГТС)
Интернет: возможно подключение (подведено оптиковолокно)
Охрана: есть (ЧОП)
Описание инфраструктуры
В поселке спортивно-развлекательный центр (фитнес-зал, бассейн, сауны, боулинг, бильярдный зал, банкетный зал, бар-кафе, мини-детский сад), зона отдыха на берегу небольшого пруда, площадка для игр (большой теннис, минифутбол, волейбол); детская площадка; служба доставки продуктов, прачечная, гостевая автостоянка
Элементы положит. окружения
Очень тихое живописное место, лесной массив в 100 метрах, в поселке есть озеро - в 70 метрах.
Хочу посмотретьПоделитесь с друзьями:
Похожие предложения:
Дом, Антоновка к/п (Зименки), 1050 м2, 30.4 сот
Киевское шоссе, от МКАД: 7+7 км
Филатов луг, Теплый стан - от 12 мин на автоДом, Антоновка к/п
Калужское ш., 7 км + 2 км
пл. участка: 30.4 сот
пл. дома: 1050 м2
под ключ
Спален: 9. С/узлов: 5.

Дом, Крекшино КП (д.Крекшино), 918 м2, 46 сот
Минское шоссе, от МКАД: 22+2 км
Крёкшино, Рассказовка - от 9 мин на автоДом, Крекшино КП
Киевское ш., 21 км + 4 км
пл. участка: 46 сот
пл. дома: 918 м2
меблирован
Спален: 4. С/узлов: 4.









