Продажа дачи, коттеджа, дома на Киевском, Калужском шоссе — цена, описание, фото, расположение на карте.

Дом, Вузсервис к/п

Снят с реализации

Код: 425-801

Особенности объекта

Редкое предложение - дом на лесном участке с вековыми деревьями (ели, сосны, березы) и в окружении леса, в обжитом, камерном, охраняемом коттеджном поселке.  В классическом стиле, свободная планировка, светлые помещения, высокие потолки. Отдельностоящий гараж с квартирой для персонала.

Расположение

Ссылка на карту
Вузсервис к/п (Большое Покровское)
Киевское шоссе, от МКАД: 15 км, всего: 17 км
Тип застройки: формирующийся к/п
Метро: Филатов луг, Рассказовка, Теплый стан; от 18 мин на авто

Дом

Общая площадь строений: 734 м2 (в т.ч.: дом 564 кв.м, гараж с квартирой для персонала 170 кв.м)
Год постройки дома: 2009
Количество уровней: 3
Спален: 5. С/узлов: 4. Комнат всего: 9.
Опции: квартира для персонала; машиномест крытых: 2, в т.ч. в теплом гараже: 2.
Материал стен: бетон
Облицовка стен: штукатурка
Кровля: мягкая
Окна: стеклопакеты ПВХ
Стадия готовности: под отделку (свободная планировка)
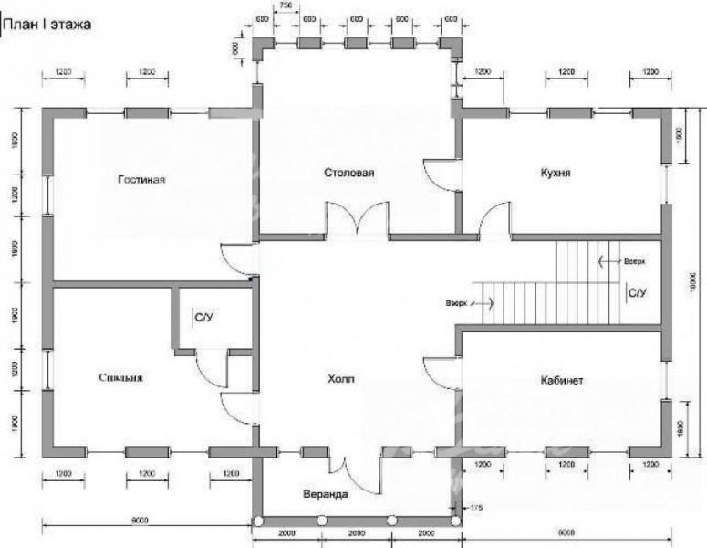
1-ый этаж: крыльцо 12 кв.м, холл 36 кв.м, гостиная 30 кв.м, столовая 34 кв.м, кухня 22 кв.м, кабинет 22 кв.м, с/узел 4 кв.м, спальня 26 кв.м с с/узлом 4 кв.м
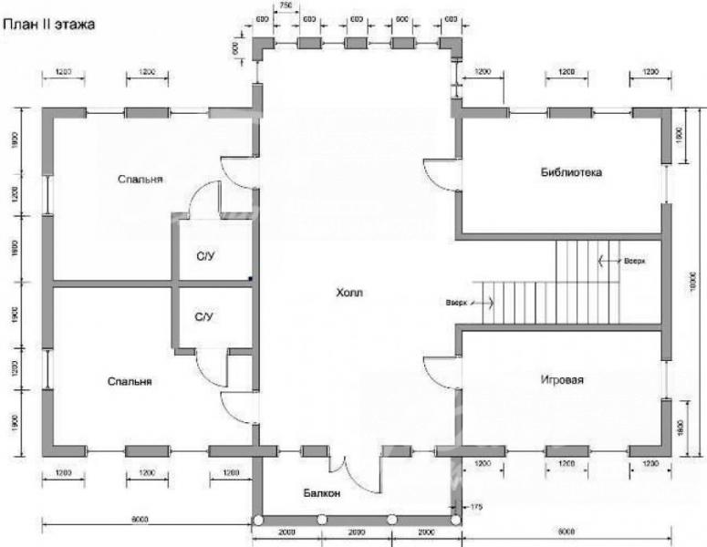
2-ой этаж: холл 72 кв.м с выходом на балкон, спальня 26 кв.м с с/узлом 4 кв.м, вторая спальня 26 кв.м с с/узлом 4 кв.м, библиотека 22 кв.м, игровая 22 кв.м
3-ий этаж: зал/бильярдная 144 кв.м, кинотеатр 30 кв.м, кладовая 30 кв.м
Описание внутренней отделки: стены оштукатурены; лестничный марш железобетонный
Инженерное обеспечение: установлены счетчики воды и электричества; из гаража в дом проложена теплотрасса
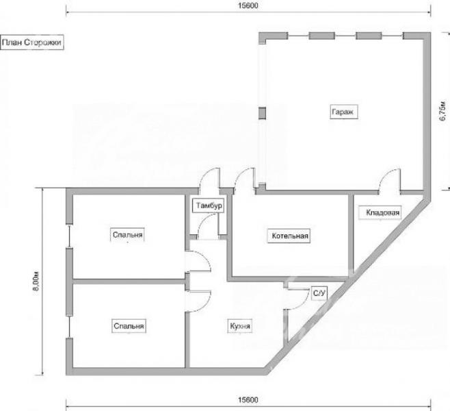
Дополнительные строения: Гараж на 2 авто с котельной и кладовой; квартира для персонала: 2 спальни, кухня, с/узел.
Дополнительная информация о доме: Дом в классическом архитектурном стиле. Фундамент ж/б ленточный, перекрытия ж/б монолитные, высота потолков 3.2 м.

Участок

Площадь участка, соток: 20
Тип участка: с лесными деревьями
Благоустройство участка: на участке растут взрослые ели, березы - ок.70 деревьев; организовано освещение участка, дорожки выложены диким камнем
Статус земли: земли с/х назначения
Дополнительная информация об участке: участок квадратной формы, расположен в центре поселка и граничит с лесом; огорожен забором из металлопрофиля на каменных столбах

Коммуникации

Газ: есть (получены ТУ, согласован проект, подключение за доп.оплату)
Э/э: есть (10 кВт)
Водопровод: индивид. скважина
Канализация: автономная
Охрана: есть (КПП)

Элементы положит. окружения

Тихое место, коттеджный поселок в окружении хвойного леса. В 100 м расположен поселок "Променад".

Хочу посмотреть


Поделитесь с друзьями:

Собираетесь купить дом, дачу или коттедж на Калужском или Киевском направлении? Обязательно воспользуйтесь услугами компании «Белые Ветры», старейшего оператора загородной недвижимости на Юго-западе Подмосковья!
Рейтинг@Mail.ru