Дом, Заречный КП
Снят с реализации
Код: 109-709
Особенности объекта
Добротный дом в классическом стиле для большой семьи в обжитом и охраняемом коттеджном поселке высокого уровня. В доме большое количество спален и общих помещений, есть СПА-зона с сауной и комнатой отдыха, гостиная с камином, тренажерный зал, бильярдная комната. Коттедж качественно отделан с применением натуральных материалов и меблирован дорогой испанской мебелью. Высокие потолки. Центральные коммуникации. Красивый ухоженный лесной участок с ландшафтом. Поселок с трех сторон окружен лесом. В пешей доступности школа, детский сад, магазины. Близко к Москве.
Расположение
Ссылка на карту
Заречный КП (Ватутинки)
Калужское шоссе, от МКАД: 15 км, всего: 16 км
Тип застройки: обжитой к/п
Метро: Ольховая, Теплый стан, Прокшино; от 12 мин на авто
Коттеджный поселок «Заречный»
Дом
Общая площадь строений: 400 м2
Количество уровней: 3
Спален: 5. С/узлов: 3. Комнат всего: 10.
Опции: сауна; терраса (2 шт.); камин; холодный подвал; машиномест крытых: 2, в т.ч. в теплом гараже: 2.
Материал стен: кирпич (толщиной 65 см)
Облицовка стен: шпаклевка под покраску
Кровля: металлочерепица
Окна: стеклопакеты ПВХ (2-камерные)
Стадия готовности: меблирован
Цоколь: просторная бильярдная комната 38 кв.м, спортивный зал 17 кв.м, предбанник 20 кв.м с джакузи, баня 8 кв.м, постирочная 6 кв.м, котельная 9 кв.м, оружейная комната 3 кв.м с сейфом, гостевой санузел, помещение очистки воды для дома 5 кв.м.
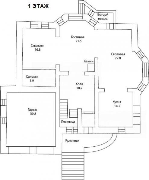
1-ый этаж: крыльцо, тамбур, просторный холл 18 кв.м, зона кухни 14 кв.м, столовая 28 кв.м, гостиная 22 кв.м с камином, спальня 17 кв.м, санузел 7 кв.м, гараж 31 кв.м на два машиноместа, холодный погреб 10 кв.м.
2-ой этаж: холл 16 кв.м, детская спальня 30 кв.м, спальня-2 16 кв.м, спальня-3 18 кв.м, спальня-4 28 кв.м, кабинет 15 кв.м, кладовая 3 кв.м, санузел 5 кв.м.
Описание внутренней отделки: отделка выполнена в классическом стиле. Стены холла и лестничное пространство обиты массивом дуба; в гостиной, на кухне, в столовой и спальне на первом этаже - декоративная штукатурка со вставками из обоев, украшенные по бортам молдингом. Спальни на втором этаже оклеены обоями. В прихожей, на кухне, а также на цокольном этаже на полу плитка, в столовой, гостиной и спальнях - паркет. Лестница деревянная из массива дуба шириной 1 метр с удобным подъемом. Многоуровневые потолки со встроенным освещением. В холле, кабинете и на цокольном этаже - витражи. Установлена качественная сантехника марок G-lauf, Porcher и французская сантехника. Все коммуникации разведены под ключ. Розетки Legrand, теплые полы на первом этаже в прихожей, холле, на кухне и в санузле, а также на всём цокольном этаже. Радиаторы биметаллические в столовой, спальнях и гараже. Межкомнатные двери из массива дуба, сделаны в одном стиле с лестницей.
Инженерное обеспечение: в доме установлены газовый котел Buderus Logano g215 95 кВт, бойлер Buderus Logano 300 литров и система очистки воды Scientec. Естественная вентиляция. Видеонаблюдение охраны коттеджного поселка.
Мебель, оборудование: дом полностью меблирован. Кухонный гарнитур из массива дерева с барной стойкой. Столовая, зона кухни и гостиная меблированы в едином стиле. Вся мебель привезена на заказ из Испании.
Дополнительные строения:
- хозблок 8 кв.м.
Дополнительная информация о доме: дом выполнен в классическом стиле. Фундамент ленточный, плиты перекрытия ж/б. Высота потолков: 1 этаж - 3 м, 2 этаж (мансардный) - от 2.1 м до 3.7 м, цокольный этаж - 2.6 м.
Участок
Площадь участка, соток: 33
Тип участка: с деревьями
Благоустройство участка: на участке естественный ландшафт: высажены декоративные деревья и кустарники, разбиты цветники и клумбы, растут лесные деревья, есть дорожки, вымощенные брусчаткой. Установлено освещение, выполнен дренаж с выводом в канализацию.
Дополнительная информация об участке: участок правильной формы находится в центре поселка и огорожен деревянным забором высотой 2.5 м с кирпичными столбами, облицованными штукатуркой.
Коммуникации
Газ: есть
Э/э: есть (15 кВт)
Водопровод: центральный
Канализация: централизованная
Интернет: есть (оптоволокно)
Охрана: есть
Описание инфраструктуры
Рядом ресторан «ВАУcafe» и магазин, спортивный клуб ЦСК с футбольным полем и бассейном
Хочу посмотреть