Дом, Зимний сад к/п
Код: 205-823
Особенности объекта
Уютный и красивый дом выполнен в альпийском стиле и гармонирует с окружающим ландшафтом. Видео. Мебель, картины и детали интерьера в ретро-стиле создают особое настроение в доме. Обжитой КП Зимний сад, окружен лесом.
Расположение
Ссылка на карту
Зимний сад к/п (Первомайское)
Киевское шоссе, от МКАД: 21 км, всего: 26 км
Тип застройки: обжитой к/п
Метро: Крёкшино, Саларьево, Теплый стан; от 23 мин на авто
Коттеджный поселок «Зимний Сад»
Дом
Общая площадь строений: 150 м2
Год постройки дома: 2007
Количество уровней: 2
Спален: 2. С/узлов полных: 1. С/узлов неполных: 1. Комнат всего: 4.
Опции: терраса; камин; машиномест крытых: 2, в т.ч. в теплом гараже: 2.
Материал стен: пеноблок
Облицовка стен: штукатурка
Кровля: мягкая (Tegola)
Окна: стеклопакеты ПВХ (двухкамерные)
Стадия готовности: меблирован
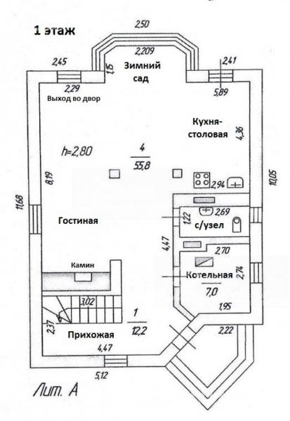
1-ый этаж: прихожая 12 кв.м, гостиная с камином, объединенная с кухней-столовой и зимним садом с выходом во двор - общая площадь 56 кв.м; с/узел 3.3 кв.м. котельная 7 кв.м
2-ой этаж: холл 11 кв.м, кабинет (без дверей) 10 кв.м, с/узел 8 кв.м, гардеробная 3.7 кв.м, спальня с выходом на балкон 18 кв.м, спальня с выходом на балкон 16 кв.м
Описание внутренней отделки: стены окрашены, декорированы элементами из дикого камня; пол - кафель с водяным подогревом, паркетная доска, половая доска под старину; потолки подвесные ГКЛ, с декоративными балками (фахверк); лестничный марш деревянный (лиственница); двери - массив дерева, окрашены под старину
Инженерное обеспечение: газовый котел Protherm (Чехия), бойлер 150 л Protherm (Чехия); многоступенчатая система очистки воды, вентиляция естественная приточно-вытяжная, счетчики воды и электричества
Мебель, оборудование: Дом полностью меблирован: вся мебель в стиле "Ретро", под антикварную. Установлен кухонный гарнитур, в санузлах установлена сантехника (Италия).
Дополнительные строения: Навес на 2 авто 30 кв.м. Открытое патио, площадка выложена из дикого камня, беседка с мангалом 23 кв.м.
Дополнительная информация о доме: Дом снаружи выдержан в "Альпийском" стиле, интерьер выполнен в "Ретро" стиле. Фундамент дома - ленточный ж/б монолит; перекрытия: 1 этаж - ж/б монолит, 2 эт. -деревянные; высота потолков 2.75 - 3 метра.
Участок
Площадь участка, соток: 12
Тип участка: парковый с деревьями
Благоустройство участка: на участке газон, дорожки выложены из камня, организовано освещение участка; сделан дренаж
Статус земли: земли поселений, для ИЖС
Дополнительная информация об участке: участок прямоугольной формы, расположен в центре поселка, огорожен деревянным забором на цоколе с кирпичными столбами
Коммуникации
Газ: есть (магистральный)
Э/э: есть (15 кВт)
Водопровод: центральный
Канализация: централизованная
Телефон: возможно подключение (МГТС)
Интернет: есть (оптиковолокно; телевидение НТВ+)
Охрана: есть
Описание инфраструктуры
Вся городская инфраструктура находится в 10 минутах на машине в поселке Первомайское: школы, дестские сады, поликлинка, банки, рестораны, салоны красоты, спортивный комплекс и тп. Пяти звездочный Отель и СПА-комплекс Теплеево Резорт, включающий в себя: детский сад «Империя Знаний», выездной туристический клуб, спортивные и творческие кружки, подготовительные занятия к школе и тп., бизнес-центр с конференц-залами, рестораны, фитнес-центр, SPA-клуб, 25-метровый бассейн с гейзером и массажными противотоками, детский бассейн с горкой, финские сауны и турецкий хамам, арома-баня, косметология, солярий, имидж-студия, банкоматы, прачечная, химчистка. А также рыбалка, катание на лошадях, квадроциклы, пейнтбол, тир, теннисные корты, баскетбол, залы единоборств, парковка. В в деревне Рогозинино расположены Торговый центр, магазин «Перекресток», "Русская теннисная академия" (кроме тенниса: единоборства, детский клуб, студия фитнеса), ресторан «Весна», СПА-комплекс и Международная школа Внуково.
Элементы положит. окружения
Тихое место, в 200 метрах расположен лесной массив и протекает река Десна.
Хочу посмотретьПоделитесь с друзьями:
Похожие предложения:
Дом, Александровы пруды КП, 139 м2, 9 сот
Варшавское шоссе, от МКАД: 24+6 км
Подольск, Ольховая - от 26 мин на автоДом, Александровы пруды КП
Калужское ш., 25 км + 13 км
пл. участка: 9 сот
пл. дома: 139 м2
под ключ
Спален: 4. С/узлов: 2.

Дом, Мирный кп (Елизарово), 123 м2, 12 сот
Калужское шоссе, от МКАД: 17+20 км
Саларьево, Ольховая - от 21 мин на автоДом, Мирный кп
Киевское ш., 21 км + 8 км
пл. участка: 12 сот
пл. дома: 123 м2
под ключ
Спален: 2. С/узлов: 1.
Дом, Чистые Пруды-2 к/п (Птичное), 147.2 м2, 10 сот
Киевское шоссе, от МКАД: 21+7 км
Ольховая, Филатов луг - от 28 мин на автоДом, Чистые Пруды-2 к/п
Калужское ш., 17 км + 8 км
пл. участка: 10 сот
пл. дома: 147.2 м2
под ключ
Спален: 3. С/узлов: 2.












