Таунхаус в аренду, Дубровка ЖК
Код: 108-044
Особенности объекта
Стильно оформленный торцевой таунхаус с большим участком с трех сторон, с авторским ремонтом, в известном обжитом и строгоохрняемом коттеджном поселке. Для жителей поселка доступна собственная прогулочная зона (вдоль ручья), пруд, мини-зоопарк. Расположен в 5 км от МКАД.
Расположение
Ссылка на карту
Дубровка ЖК (Сосенки)
Калужское шоссе, от МКАД: 5 км, всего: 6 км
Тип застройки: обжитой к/п
Метро: Ольховая, Теплый стан, Прокшино; от 15 мин пешком
Жилой комплекс «Дубровка»
Дом
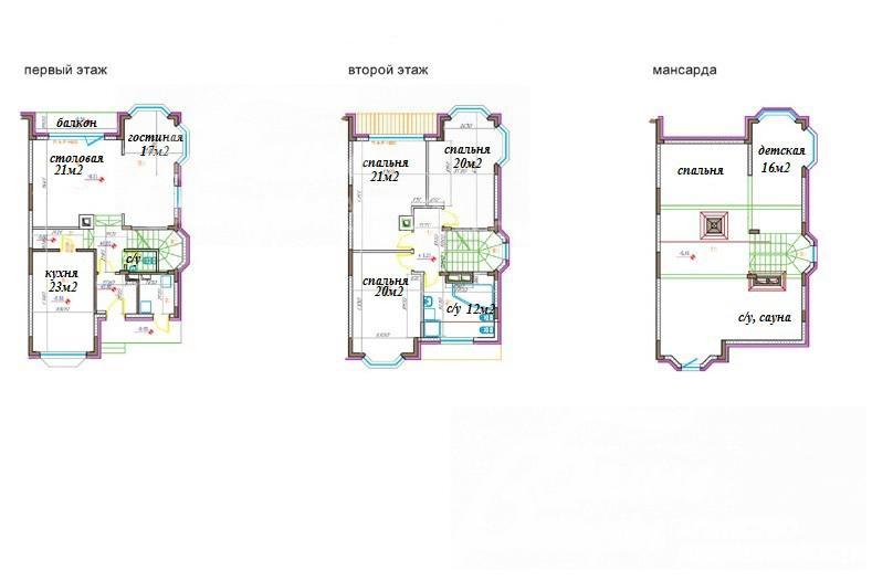
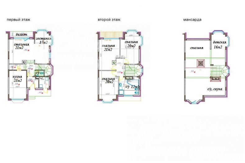
Общая площадь строений: 248 м2
Количество уровней: 3
Спален: 4. С/узлов: 3. Комнат всего: 7.
Опции: сауна; камин; машиномест крытых: 2; беседка с барбекю.
Материал стен: пеноблок
Облицовка стен: штукатурка
Кровля: металлочерепица
Окна: стеклопакеты ПВХ
Стадия готовности: меблирован
1-ый этаж: кухня 23 кв.м, столовая 21 кв.м, гостиная 17 кв.м, балкон, санузел
2-ой этаж: спальня 20 кв.м, спальня 21 кв.м, спальня 2кв.м, с/узел 12 кв.м
3-ий этаж: спальня 16 кв.м, спальня, сауна, санузел, большой холл
Описание внутренней отделки: полы- наборный художественный паркет и керамогранит, в спальнях ковровое покрытие; лестничный марш из массива дерева; фигурные карнизы и медальоны на потолке; подоконники МДФ с отделкой под мрамор
Инженерное обеспечение: котельная под ключ, многоступенчатая система очистки воды, кондиционеры установлены на каждом этаже
Мебель, оборудование: полностью меблирован и оснащен бытовой техникой
Дополнительные строения: беседка, барбекю
Участок
Площадь участка, соток: 5
Тип участка: парковый
Благоустройство участка: на участке растут ели, организован газон
Коммуникации
Газ: есть (магистральный)
Э/э: есть (15 кВт)
Водопровод: центральный
Канализация: централизованная
Интернет: есть (оптиковолокно)
Охрана: есть (безопасность жилого комплекса обеспечивается круглосуточным патрулированием службой вневедомственной охраны и сотрудниками контроля доступа, а так же пропускным режимом и современной системой видеонаблюдения)
Описание инфраструктуры
Охраняемый жилой комплекс с гостевой парковкой. На въезде большой фитнес-центр Дубровка с бассейном, СПА-зоной, салоном красоты и тренажерным залом. При въезде расположены три супермаркета один из них «Перекресток», «Азбука Вкуса», «Пятерочка». Торговый центр «Уютный дом», кулинария, банк, аптека, 3 ресторана: SomeMeat, Florentini, Чё Хотели Пили Ели, кафе Таверна и Вкусно и Точка, ветеринарная клиника, банкоматы, Дом быта, шиномонтаж, зоомагазин, офис нотариуса. Для детей жилого комплекса Дубровка работают: семейный центр и детский сад «Радость» со спортивными и творческими секциями. Частная школа Tower Bridge School (от 4 до 11 лет), где есть группа раннего развития, подготовка к школе, начальная школа и дополнительные занятия (творчество, живопись, иностранные языки и спортивные секции). Частная школа «СО-Знание Дубровка» для детей 0-11 классов, частная школа с начальными классами (1-4 класс) Эволуччи. На территории поселка благоустроена лесная прогулочная зона, места с беседками для барбекю, беловые и велосипедные дорожки, есть мини-зоопарк. Действуют пункты выдачи заказов Ozon и Яндекс Маркет, Wildberries, Сдек. Православный Храм в 10 минутах пешком. В 10 минутах пешком метро Ольховая. В 10 минутах на машине частная школа Летово (с 7 по 11 класс), теннисный клуб Теннис.ру, городская инфраструктура поселков Коммунарка, Воскресенское, Николо-Хованское (поликлиники, больницы, десткие сады и школы, торговые комплексы, рестораны, фитнес клубы, банки, Мои документы и др.)
Хочу посмотретьОплата агентству «Белые Ветры»: 75 000 руб.
Поделитесь с друзьями:
Похожие предложения:
Дом в аренду, Ели к/п (Фоминское), 280 м2, 4.2 сот
Киевское шоссе, от МКАД: 14+13 км
Ольховая, Теплый стан - от 20 мин на автоДом в аренду, Ели к/п
Калужское ш., 14 км + 4 км
пл. участка: 4.2 сот
пл. дома: 280 м2
меблирован
Спален: 4. С/узлов: 3.

Дом в аренду, Ели к/п (Фоминское), 275 м2, 5 сот
Киевское шоссе, от МКАД: 14+13 км
Ольховая, Теплый стан - от 20 мин на автоДом в аренду, Ели к/п
Калужское ш., 14 км + 4 км
пл. участка: 5 сот
пл. дома: 275 м2
меблирован
Спален: 3. С/узлов: 3.
Дом в аренду, Каменка к/п (Воскресенское), 250 м2, 6 сот
Ольховая, Бунинская аллея - от 8 мин на автоДом в аренду, Каменка к/п
Калужское ш., 8 км + 2 км
пл. участка: 6 сот
пл. дома: 250 м2
меблирован
Спален: 4. С/узлов: 3.
Дом в аренду, Дудкино, 226 м2, 5 сот
Калужское шоссе, от МКАД: 1+1 км
Румянцево, Тропарево - от 15 мин пешкомДом в аренду, Дудкино
Киевское ш., 1 км
пл. участка: 5 сот
пл. дома: 226 м2
меблирован
Спален: 5. С/узлов: 2.















