Дом в аренду, Фортопс КП
Код: 534-010
Особенности объекта
В аренду новый дом в стиле современного модерна в сторогоохраняемом поселке бизнес-класса со всеми центральными коммуникациями. Современная архитектура, большая площадь остекления, много спален и санузлов, эксплуатируемая кровля с живописным видом. Хорошая траснпортная доступность, остановка общественного транспорта у КПП поселка. В 800 м находится детский сад, а также в пешей доступности спортивный парк "Красная Пахра" с роллердромом, велодорожками, тренажерами, спортивными и детскими площадками, футбольным полем, катком и открытой сценой. В 5 км городская инфраструктура Троицка.
Расположение
Ссылка на карту
Фортопс КП (Былово)
Калужское шоссе, от МКАД: 24 км, всего: 26 км
Тип застройки: обжитой к/п
Метро: Ольховая, Теплый стан, Бунинская аллея; от 23 мин на авто
Коттеджный поселок «Фортопс»
Дом
Общая площадь строений: 328 м2
Год постройки дома: 2022
Количество уровней: 2
Спален: 5. С/узлов полных: 4. С/узлов неполных: 1. Комнат всего: 7.
Опции: терраса; камин; эксплуатируемая кровля, с выходом из дома и выведенными коммуникациями.
Материал стен: красный поризованный кирпич + пароизоляция + утеплитель Rockwool 15 см, толщина стены 50 см
Облицовка стен: искусственный травертин, керамогранит (панели 1.5х2 метра), лиственница
Кровля: эксплуатируемая кровля "пирог" - 50 см отливка, керамзит + бетон, 2 слоя гидроизоляции Uniflex 70 мм до 10 внутренних водостоков, которые уходят под фасад
Окна: стеклопакеты ПВХ (двухкамерные Kaleva с ламинацией под дерево, остекление в пол)
Стадия готовности: меблирован
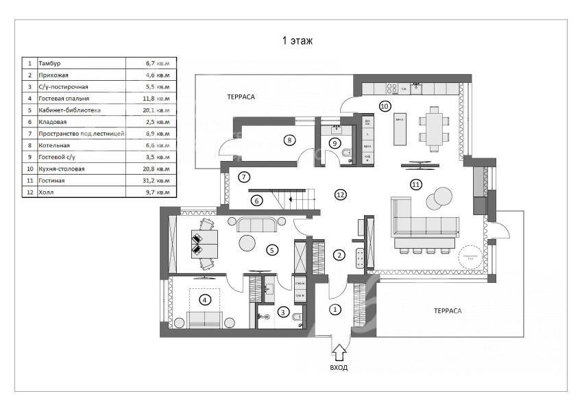
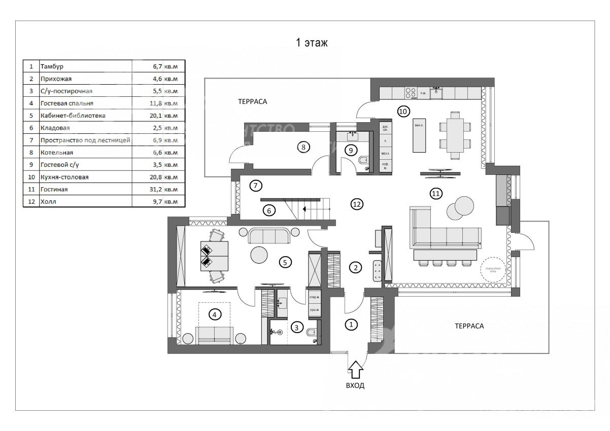
1-ый этаж: тамбур 7 кв.м, прихожая 5 кв.м, холл 10 кв.м, зона гостиной 31 кв.м с выходом на террасу, зона кухни-столовой 21 кв.м с выходом на террасу, кабинет-библиотека 20 кв.м, гостевая спальня 12 кв.м, санузел-постирочная 6 кв.м с душевой, кладовая 3 кв.м, пространство под лестницей 7 кв.м, общий санузел (1/2) 4 кв.м, котельная 7 кв.м с отдельным входом.
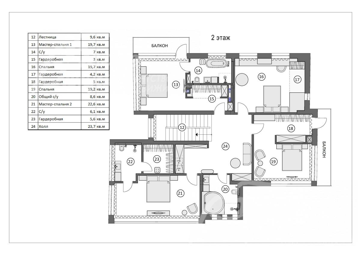
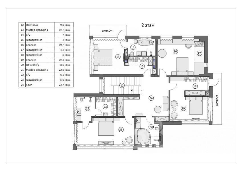
2-ой этаж: холл 24 кв.м, спальня 20 кв.м с гардеробной 4 кв.м, спальня 19 кв.м с гардеробной 5 кв.м с выходом на балкон, общий санузел 9 кв.м (душ и ванная), мастер-спальня 23 кв.м с санузлом 6 кв.м (душ) и с гардеробной 6 кв.м, мастер-спальня 20 кв.м с санузлом 7 кв.м (душ и ванная) с гардеробной 3 кв.м и с выходом на балкон.
3-ий этаж: эксплуатируемая кровля (летняя терраса)
Описание внутренней отделки: Дизайнерская отделка в стиле Современный Модерн. На стенах декоративная штукатурка, окраска, в санузлах - плитка Laparet. В отделке использованы дизайнерские элементы из дерева, 3D элементы, различные ниши со скрытой подсветкой, зеркала и т.д. На полу керамогранит с водяным подогревом (все санузлы, прихожая, холл, зона кухни и зона гостиной); паркетная дубовая доска - все спальни и холл второго этажа. Потолки подвесные ГКЛ разноуровневые и натяжные (французские) с дизайнерскими элементами и различной подсветкой (скрытая светодиодная, точечные споты, движущиеся споты на рейлингах, люстры). Вся сантехника от ведущих брендов. Душевые со встроенной системой слива в пол и со стеклянными дверцами. Все коммуникации разведены, конвекторы встроенные польные, электрика АВВ (Германия). Двери деревянные эмалированные и двери скрытого монтажа высотой 2.3 м, подоконники из массива ореха.
Инженерное обеспечение: газовый котел на 50 кВт, бойлер косвенного нагрева 300 л, многоступенчатая система очистки воды. Естественная приточно-вытяжная вентиляция, канальное кондиционирование. Установлены Wi-Fi роутеры (провайдер Интерлогика)
Мебель, оборудование: кухонный гарнитур с островом, эмалированные фасады из МДФ, столешница из искусственного камня. Вся необходимая встроенная техника: газовая варочная панель, духовой шкаф, двухдверный холодильник Side-by-Side, посудомоечная машина, стиральная машина, в гостиной большой современный телевизор. В столовой обеденная группа на 6 персон с мягкими креслами, в гостиной П-образный раскладной диван с обивкой из велюра. Возможно будет дополнить мебель под арендатора. В гостиной панорамное остекление закрыто тюлем. Установлена скрытая светодиодная подсветка, точечные споты, движущиеся споты на рейлингах, люстры.
Дополнительная информация о доме: лестница ж/б монолитная шириной 1 метр, ступени 27х16 см и поручни облицованы массивом дуба, балясины металлические с хромированными элементами. Высота потолков 3.6 метра
Участок
Площадь участка, соток: 15
Тип участка: поле с ландшафтом
Благоустройство участка: высажен газон, обустроены дорожки, по периметру высажены туи, устроен ливневый дренаж
Дополнительная информация об участке: ровный прямоугольный участок в центре поселка, ограждение по внешней стороне - прозрачный металлический забор высотой 1.2 м
Коммуникации
Газ: есть (магистральный)
Э/э: есть (380 Вт)
Водопровод: центральный
Канализация: централизованная
Интернет: есть (оптоволокно, Интерлогика)
Охрана: есть (КПП, видеонаблюдение по периметру поселка, пожарный въезд)
Описание инфраструктуры
Инфраструктуру поселка представляет административный корпус при въезде: диспетчерский пункт Организована профессиональная система безопасности (КПП, ЧОП). В поселке обустроена парковая зона, спортивные и детские площадки, прогулочные зоны, велосипедные и беговые дорожки, широкие автомобильные дороги, уличное освещение, эксплуатационная служба. Продуктовый Магазин «Дикси» в 100 м от поселка. Внешняя инфраструктура - города Троицка: спорткомплексы, школы, детские сады, поликлиники, больницы, магазины, аптеки, рестораны, кинотеатры, зоны отдыха. Недалеко от поселка находятся самый крупный спортивный парк "Красная Пахра", где множество спортивных площадок, тренажеров, освещаемые и охраняемые футбольное поле, теннисные корты, площадки для барбекю, пляж. Через дорогу: детская спортивная школа олимпийского резерва, баскетбольная школа «Тринта». Рядом частная школа и детский сад «Ника», гольф-клуб "Быково" и "Русская теннисная академия". Поселок расположен в 5 мин. езды от города Троицк, планируется открытие станции метро. Территория Новой Москвы. От МКАД до поселка на автомобиле не более 20-25 минут.
Хочу посмотретьВознаграждение агентству «Белые Ветры»: 195 000 руб. + НДС 5% от вознаграждения
Поделитесь с друзьями:
Похожие предложения:
Дом в аренду, Никольские Озера к/п (Филино), 367 м2, 16 сот
Коммунарка, Ольховая - от 34 мин на автоДом в аренду, Никольские Озера к/п
Калужское ш., 34 км + 3 км
пл. участка: 16 сот
пл. дома: 367 м2
меблирован
Спален: 6. С/узлов: 4.



