Дом в аренду, ДНТ Колос-1
Код: 429-004
Особенности объекта
Очень уютный дом с детским бассейном, просторной беседкой и детской площадкой в обжитом коттеджном поселке. Стильный дизайнерский ремонт, отделан и оборудован премиальными материалами и мебелью.
Расположение
Ссылка на карту
Колос-1 кп (Крекшино)
Киевское шоссе, от МКАД: 21 км, всего: 30 км
Минское шоссе, от МКАД: 22 км, всего: 26 км
Тип застройки: обжитой к/п
Метро: Крёкшино, Рассказовка, Филатов луг; от 10 мин на авто
Коттеджный поселок «Колос (п.Крекшино)»
Дом
Общая площадь строений: 393 м2
Год постройки дома: 2013
Количество уровней: 2
Спален: 4. С/узлов: 3. Комнат всего: 5.
Опции: бассейн; сауна; камин; машиномест крытых: 2, в т.ч. в теплом гараже: 2; беседка с панорамным раздвижным остеклением.
Материал стен: кирпич
Облицовка стен: кирпич
Кровля: металлочерепица
Окна: стеклопакеты ПВХ
Стадия готовности: меблирован
1-ый этаж: коридор 42.8 кв.м, гостиная 41.4кв.м, с/у 8.6 кв.м, кухня-столовая 30.2 кв.м, гостевая комната 17 кв.м, бассейн 60.6 кв.м, чаша бассейна 6м на 2.5 м, глубина 1.2 м, сауна, бойлерная, с/у, теплый гараж на 2 машины
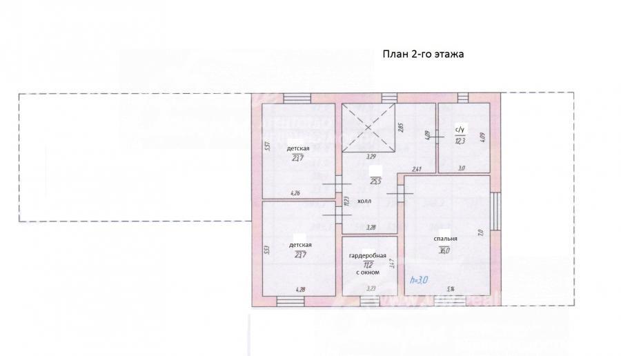
2-ой этаж: детские 23.7 кв.м, 21.7 кв.м, спальня 36 кв.м с балконом, сейфом и гардеробной комнатой 11,2 кв.м, с/у 12.3 кв.м
Описание внутренней отделки: очень качественная отделка с использованием дорогих отделочных материалов, бассейн выложен мозаикой, дизайнерская декоративная штукатурка, мрамор с подогревом, паркетная доска
Инженерное обеспечение: встроенная аудиосистема, кинотеатр (в гостиной), системы очистки воды, охранная сигнализация, система очистки и подогрева воды в бассейне
Мебель, оборудование: красивая итальянская мягкая мебель, холодильник veibherr, дизайнерские столы из каленого стекла
Дополнительные строения: на участке построена беседка 50 кв м с панорамным раздвижным остеклением
Участок
Площадь участка, соток: 10
Тип участка: ровный, в середине поселка
Благоустройство участка: выполнен ландшафтный дизайн, высажено 5 плодовых деревьев, декоративные кустарники, несколько молодых елей, организован газон, дорожки из брусчатки, спортивная и детская площадки
Коммуникации
Газ: есть
Э/э: есть
Водопровод: индивид. скважина
Канализация: автономная
Телефон: возможно подключение
Интернет: есть
Охрана: есть (строгоохраняемый КП, въезд по пропускам)
Описание инфраструктуры
Инфраструктура Крекшино, в поселке магазин, детская площадка.
Элементы положит. окружения
поселок окружен с 3 сторон лесом, по поселку протекает небольшая речушка, в центре поселка красиво оформленный пруд с зоной для барбекю и просторной детской площадкой
Комментарий к цене
(включая все дополнительные ежемесячные платежи)
Хочу посмотретьОплата агентству «Белые Ветры»: 100 000 руб.
Поделитесь с друзьями:
Похожие предложения:
Дом в аренду, Витязь к/п (Ватутинки), 320 м2, 12 сот
Коммунарка, Ольховая - от 17 мин на автоДом в аренду, Витязь к/п
Калужское ш., 15 км + 3 км
пл. участка: 12 сот
пл. дома: 320 м2
меблирован
Спален: 4. С/узлов: 4.


Дом в аренду, Искра к/п (Ватутинки), 460 м2, 8 сот
Ольховая, Теплый стан - от 12 мин на автоДом в аренду, Искра к/п
Калужское ш., 16 км + 1 км
пл. участка: 8 сот
пл. дома: 460 м2
под ключ
Спален: 5. С/узлов: 4.
Дом в аренду, Юбилейный КП (Власово), 324 м2, 10 сот
Минское шоссе, от МКАД: 22+5 км
Санино, Саларьево - от 5 мин на автоДом в аренду, Юбилейный КП
Киевское ш., 21 км + 3 км
пл. участка: 10 сот
пл. дома: 324 м2
меблирован
Спален: 5. С/узлов: 3.













