Дом в аренду, Микрорайон К
Код: 312-021
Особенности объекта
Прекрасный дом 350 кв.м в эклектичном стиле с элементами стилей лофт, фахверк, кантри и модерн, с функциональной планировкой и свежим ремонтом, на лесном участке 6 соток в тихом живописном, обжитом и строгоохраняемом поселке со всеми центральными коммуникациями в Новой Москве. В доме с абсолютно новой мебелью и современной техникой, высокие потолки, панорамные окна в пол в гостиной, просторные 5 спален. На небольшом ухоженном участке с лесными деревьями уютная крытая беседка. Коттеджный поселок расположен в 10 минутах от города Троицк со всей развитой инфраструктурой.
Расположение
Ссылка на карту
Микрорайон К (Троицк)
Калужское шоссе, от МКАД: 22 км, всего: 22 км
Тип застройки: обжитой к/п
Метро: Ольховая, Прокшино, Теплый стан; от 19 мин на авто
Коттеджный поселок «Микрорайон К (Троицк)»
Дом
Общая площадь строений: 350 м2
Год постройки дома: 2010 (ремонт - 2025)
Количество уровней: 2
Спален: 5. С/узлов: 3. Комнат всего: 7.
Опции: сауна (дровяная); холодный подвал.
Материал стен: кирпич
Облицовка стен: красный облицовочный кирпич
Кровля: мягкая
Окна: стеклопакеты деревянные (в т.ч. панорамные и мансардные)
Стадия готовности: меблирован
Цоколь: отапливаемое помещение свободного назначения, можно использовать под склад, для творчества или спорта
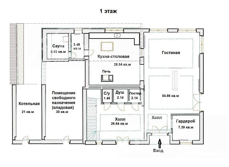
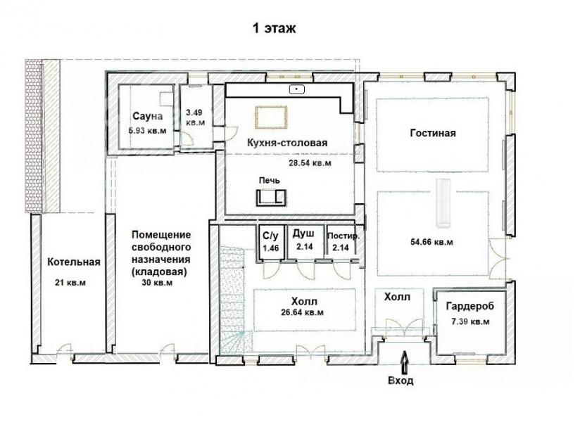
1-ый этаж: прихожая, переходящая в гостиную 54.7 кв.м, гардеробная 7.4 кв.м, кухня-столовая 28.6 кв.м, сауна 6 кв.м с предбанником 3.5 кв.м, холл 26.6 кв.м, туалет 1.4 кв.м, душевая 2 кв.м, постирочная 2 кв.м
2-ой этаж: спальня 14.6 кв.м, игровая 14.6 кв.м, спальня 21 кв.м, мастер- спальня 23 кв.м с ванной и душевой 13.5 кв.м и гардеробной 12 кв.м, детская спальня 22 кв.м с балконом, санузел 7 кв.м (с ванной)
Описание внутренней отделки: дизайнерская эклектика в интерьере: совмещение элементов стилей - лофт (стены), фахверк (отделка потолков), кантри (Русская печь в кухне), модерн (окна). На полу в гостиной и в некоторых спальнях - ковровое покрытие, в мастер-спальне - паркетная доска. В санузлах - коллекционная плитка, в столовой - также плитка, в этих помещениях пол с водяным подогревом. Стены окрашены, в гостиной и кухне - окрашенные стены из кирпича, в некоторых спальнях - комбинированные. Потолки - гипсокартон; в жилых комнатах 2-го этажа - имитация деревянных балок на потолке с эффектной подсветкой.
Инженерное обеспечение: газовый котел Buderus (Германия), накопительный бойлер, оборудована система водоподготовки. Вентиляция естественная, кондиционеры в спальнях на 2-м этаже.
Мебель, оборудование: в доме стильная современная меблировка: в гостиной модульный диван, в мастер-спальне большая кровать с тумбочками, шкаф. В одной из спален две кровати, выполненные на заказ. В жилых комнатах - шкафы для одежды, полки, прикроватные тумбы, журнальный столик, кресла. Недостающая мебель будет куплена под запрос арендатора. Новый современный кухонный гарнитур со встроенной техникой Weissgauff: газовая варочная панель, духовой шкаф, посудомоечная машина, а также вытяжка, двухдверный холодильник Weissgauff - вся техника абсолютно новая. Обеденный стол из массива дерева. На кухне русская печь, на которой можно готовить традиционные блюда. Стиральная и сушильная машина Tuvio, телевизор в гостиной. Во всех помещениях карнизы, шторы, занавески. Дизайнерские светильники и люстры, трековые светильники, картины и прочее. В беседке - уличная мебель (диван, кресла, тумба, журнальный столик).
Дополнительные строения: - Крытая беседка с террасой для отдыха, с деревянной садовой мебелью и красивой вечерней подсветкой
Дополнительная информация о доме: лестница монолитная с изящными коваными перилами цвета золота, ступени отделаны кварцвиниловой плиткой. Высота потолков: 4.05 м на первом этаже, второй этаж - скатные от 1.50 м до 3.15 м
Участок
Площадь участка, соток: 6.2
Тип участка: с лесными деревьями
Благоустройство участка: ровный участок с лиственными и хвойными взрослыми деревьями, огорожен деревянным забором на ленточном фундаменте
Коммуникации
Газ: есть (магистральный)
Э/э: есть (15 кВт)
Водопровод: центральный
Канализация: централизованная
Интернет: есть (оптоволокно, высокоскоростной)
Охрана: есть
Описание инфраструктуры
У въезда в поселок — магазин «Продукты». Рядом остановка общественного транспорта до м.Теплый Стан. В поселке — минифутбольное поле. Инфраструктура г.Троицка (школы, детские сады, больницы, банки, рестораны, элитный фитнес-центр "Резиденция" и т.д.).
Хочу посмотретьОплата агентству «Белые Ветры»: 180 000 руб.
Поделитесь с друзьями:
Похожие предложения:
Дом в аренду, Капитолий к/п (Первомайское), 335 м2, 8 сот
Рассказовка, Филатов луг - от 19 мин на автоДом в аренду, Капитолий к/п
Киевское ш., 21 км + 3 км
пл. участка: 8 сот
пл. дома: 335 м2
меблирован
Спален: 4. С/узлов: 4.



