Дом в аренду, Чароит КП
Код: 520-013
Особенности объекта
В аренду современный стильный дом 700 кв.м с бассейном и большой площадью остекления в элитном обжитом коттеджном поселке Чароит, прилегающем к санаторию УДП Ватутинки. Дом имеет два автономных блока, рассчитанных на проживание большой семьи из двух поколений либо с большим штатом персонала. Функциональная планировка включает в себя 9 спален и 6 санузлов, просторную гостиную со вторым светом, отдельные помещения кухни и столовой, игровые, зону спа с бассейном и три террасы для летнего и круглогодичного отдыха. Прилегающая к поселку территория санатория находится в заповедном лесном массиве на берегу реки Десна и имеет большую прогулочную зону, бассейны, сауны, рестораны, спортивно-игровой зал, медпункт и др. В шаговой доступности развитая городская инфраструктура поселков Новые Ватутинки, Ватутинки и г.Троицк (школы, детские сады, поликлиника, супермаркеты и др.).
Расположение
Ссылка на карту
Чароит КП (Ватутинки)
Калужское шоссе, от МКАД: 14 км, всего: 15 км
Тип застройки: обжитой к/п
Метро: Ольховая, Теплый стан, Бунинская аллея; от 14 мин на авто
Коттеджный поселок «Чароит КП (п.Ватутинки)»
Дом
Общая площадь строений: 700 м2
Количество уровней: 4
Спален: 9. С/узлов полных: 5. С/узлов неполных: 1. Комнат всего: 13.
Опции: бассейн (2.15м х 3.35м, глубина 1.85м, с водоочисткой и подогревом); сауна (электрическая); квартира для персонала (отдельный двухэтажный блок с кухней, 4мя спальнями и 2мя санузлами); камин (дровяной); холодный подвал; машиномест крытых: 2, в т.ч. в теплом гараже: 2.
Материал стен: керамические блоки
Облицовка стен: штукатурка
Кровля: металлочерепица
Окна: однокамерные стеклопакеты из массива дуба с алюминиевыми накладками (в некоторых помещениях остекление от пола, подоконники из дуба)
Стадия готовности: меблирован
Цоколь: коридор 6 кв.м, кладовая 2 кв.м, помещение для очистки воды 7.5 кв.м, котельная 14.5 кв.м
1-ый этаж: Основной дом: гараж 33 кв.м, крыльцо 2 кв.м, тамбур 2 кв.м, холл 21.5 кв.м, гардеробная 5.5 кв.м, постирочная 8 кв.м, закрытая теплая терраса 55 кв.м, открытая терраса 35 кв.м, гостиная со вторым светом 36 кв.м, зона спа (комната отдыха 12 кв.м, сауна 4 кв.м, помещение с бассейном и двумя душевыми 24.5 кв.м, санузел 1.5 кв.м), холл 29 кв.м, кухня 10.5 кв.м, столовая 12 кв.м, тамбур 2.3 кв.м, крыльцо 3 кв.м, мастер блок: спальня 16.5 кв.м, санузел с душевой 4 кв.м, гардеробная/холл 7 кв.м;
Блок для персонала: кухня-столовая 42 кв.м, спальня 11 кв.м, спальня 12 кв.м, спальня 10 кв.м, санузел 6.5 кв.м
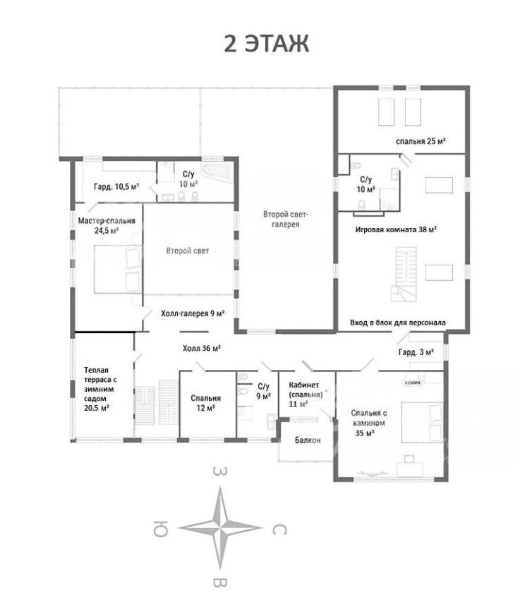
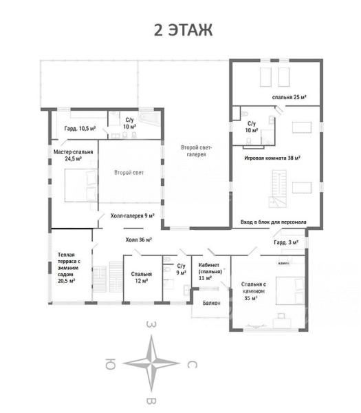
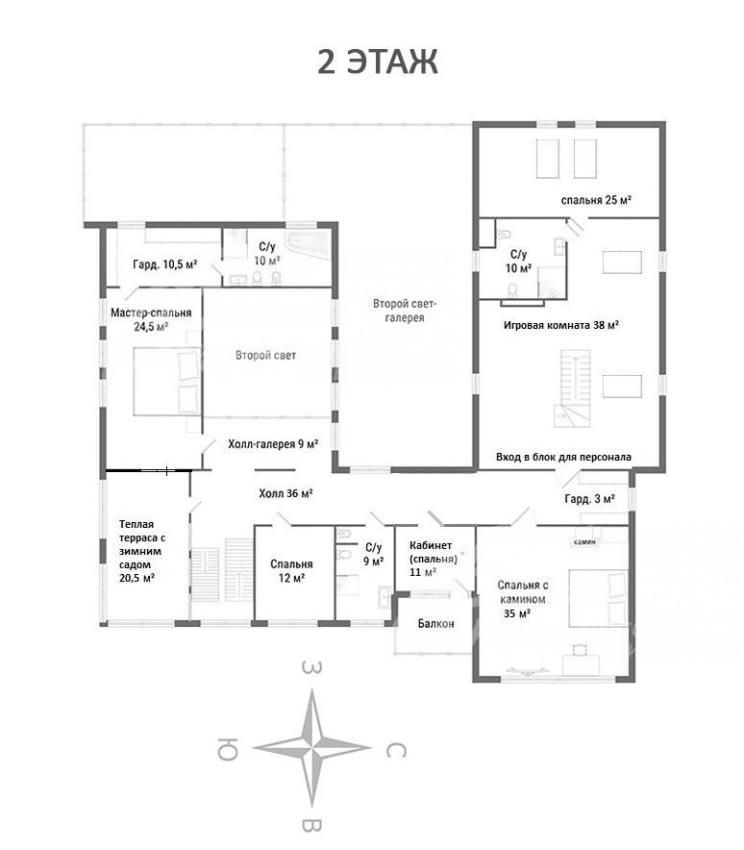
2-ой этаж: Основной дом: теплая терраса с зимним садом 20.5 кв.м, мастер-блок: спальня 24.5 кв.м с гардеробной 10.5 кв.м и санузлом с ванной и душевой 10 кв.м, холл/галерея 9 кв.м, холл 36 кв.м, спальня 12 кв.м, санузел с душевой 9 кв.м, кабинет (спальня) 11 кв.м с балконом, спальня с камином и панорамными окнами 35 кв.м, гардеробная 3 кв.м;
Блок для персонала: детская игровая 48 кв.м, спальня 25 кв.м, санузел с душевой 10 кв.м
3-ий этаж: спортзал 35 кв.м
Описание внутренней отделки: Стильная современная отделка в минималистичном стиле в светлых тонах. В отделке стен использованы окрашивание и венецианская штукатурка. Полы - плитка с системой "теплый пол" (комбинированный: электрический и водяной), паркетная доска, рогожка. Потолки - ГКЛ, во влажных зонах натяжные, в закрытой террасе на первом этаже стеклянный с электрическим подогревом. Двери деревянные Union. Сантехника Villeroy & Boch, Hatria, Huppe.
Инженерное обеспечение: отопление и водоснабжение центральные, установлен резервный бойлер на 200л с медной обвязкой, многоступенчатая система очистки воды Экодар. Вентиляция частично принудительная, а также установлены кондиционеры (в блоке для персонала, в кухне и у кабинета на втором этаже). Wi-Fi роутеры. Оборудована пультовая охранная сигнализация.
Мебель, оборудование: Дом полностью меблирован: в столовой обеденный стол на 8 персон со столешницей из кварцевого агломерата с дорогими мягкими стульями/креслами, в гостиной основного дома и блока для персонала, а также в одной из гостевых спален - мягкие гарнитуры с обивкой из велюра, в спальнях двуспальные кровати, тумбы, комоды, гардеробные, оборудованные новыми современными системами хранения. В закрытой террасе на первом этаже большой стол 3.93х1.15м на 16 персон со столешницей из эпоксидной смолы, на террасе второго этажа и в спа-зоне стильная плетеная мебель. В основной кухне П-образный кухонный гарнитур с большой рабочей поверхностью, глянцевыми фасадами бежевого цвета и всей необходимой встроенной техникой: два однокамерных холодильника в цвет гарнитура, посудомоечная машина (60 см), электрическая варочная панель, духовой шкаф, микроволновая печь, вытяжка.
В блоке для персонала также полностью оборудованная кухня со всей техникой (холодильник, морозильная камера, варочная панель, духовой шкаф, посудомоечная машина). Стиральная и сушильная машины, большие современные телевизоры в гостиной, мастер-блоке, блоке для персонала. Во всех помещениях - карнизы, тюль, шторы, в т.ч. блэкаут.
Дополнительная информация о доме: Лестница в хозяйском блоке на ж/б каркасе шириной 100см, ступени 27х16см, облицованы массивом ореха.
В блоке для персонала лестница на ж/б каркасе, шириной 86 см, ступени 21х18см, облицованы массивом. Высота потолков на первом этаже 2.95 м, второй этаж - 2.77 м, гостиная со вторым светом - 6.2 м
Участок
Площадь участка, соток: 16
Тип участка: парковый
Благоустройство участка: участок со взрослыми лесными деревьями: березы, ели, сосны, лиственницы, клены и ландшафтным дизайном: газон, цветники, куртины можжевельника, прогулочные дорожки с освещением; дренаж вокруг дома и по участку
Дополнительная информация об участке: ровный участок в дальней (приватной) части поселка, граничит с лесным массивом санатория, глухой деревянный забор высотой 2 м на бетонном основании, ворота автоматические распашные
Коммуникации
Газ: есть (центральный)
Э/э: есть (15 кВт)
Водопровод: центральный
Канализация: централизованная
Интернет: есть (оптоволокно)
Охрана: есть
Описание инфраструктуры
Территория поселка огорожена и строгоохраняется. Внутри поселка широкие асфальтированные дороги, есть пешеходные дорожки. В темное время суток вся территория поселка освещается. Чистота улиц и ухоженность зеленых насаждений поддерживается специальными службами. Богатая инфраструктура санатория "Управления Делами Президента": около 300 врачей, лучшая медицинская аппаратура, теннисные корты, площадки для баскетбола и волейбола, крытый бассейн, благоустроенная пляжная и прогулочная зоны. На территории так же к вашим услугам частный детский сад Baby Way, химчистка Lavery. В 5 минутах на машине развитая городская инфраструктура района Новые Ватутинки и ЖК Кленовые Аллеи, поселка Ватутинки: школы и детские сады 1392, поликлиника, рестораны, супермаркеты, салоны красоты, банки, спортивные секции и др. Недалеко наукоград Троицк с полной городской инфраструктурой: бассейн, школы, детские сады, поликлиники, больницы, салоны красоты, торговые центры и др. А вскоре откроется метро Ватутинки.
Хочу посмотретьВознаграждение агентству «Белые Ветры»: 225 000 руб. + НДС 5% от вознаграждения
Поделитесь с друзьями:
Похожие предложения:
Дом в аренду, Изумрудная долина к/п (Ширяево), 610 м2, 15 сот
Киевское шоссе, от МКАД: 21+9 км
Ольховая, Теплый стан - от 21 мин на автоДом в аренду, Изумрудная долина к/п
Калужское ш., 17 км + 6 км
пл. участка: 15 сот
пл. дома: 610 м2
меблирован
Спален: 8. С/узлов: 5.




