Дом в аренду, Ветеран с/т
Код: 191-001
Особенности объекта
Добротный кирпичный дом 220 кв.м с мебелью в аренду в городе Троицк (Новая Москва). В доме 3 больших спальни, просторная гостиная, все центральные коммуникации. Ухоженный участок с цветущими растениями, беседка и парковка. Развитая городская инфраструктура в пешей доступности.
Расположение
Ссылка на карту
Ветеран с/т (Троицк)
Калужское шоссе, от МКАД: 17 км, всего: 17 км
Тип застройки: дачный поселок
Метро: Ольховая, Теплый стан, Бунинская аллея; от 14 мин на авто
Дом
Общая площадь строений: 220 м2
Количество уровней: 2
Спален: 3. С/узлов: 2. Комнат всего: 4.
Опции: терраса (2 балкона); камин (декоративный); холодный подвал (полуподвал с котельной).
Материал стен: кирпич
Облицовка стен: фасад - облицовочный кирпич, цоколь отделан искусственным камнем, балкон декорирован классическими балясинами, большое крыльцо отделано клинкерной плиткой
Кровля: металлочерепица
Окна: стеклопакеты ПВХ (двухкамерные)
Стадия готовности: меблирован
Цоколь: котельная-кладовая с зоной хранения
1-ый этаж: большое крытое крыльцо, прихожая, гостиная-столовая с декоративным камином, кухня, спальня, санузел (с окном и ванной)
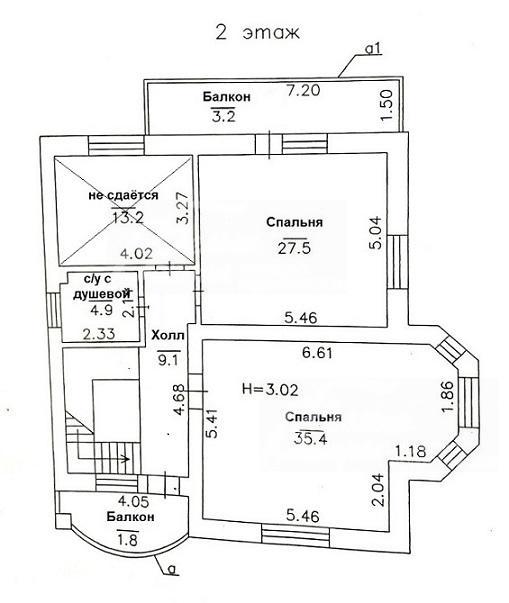
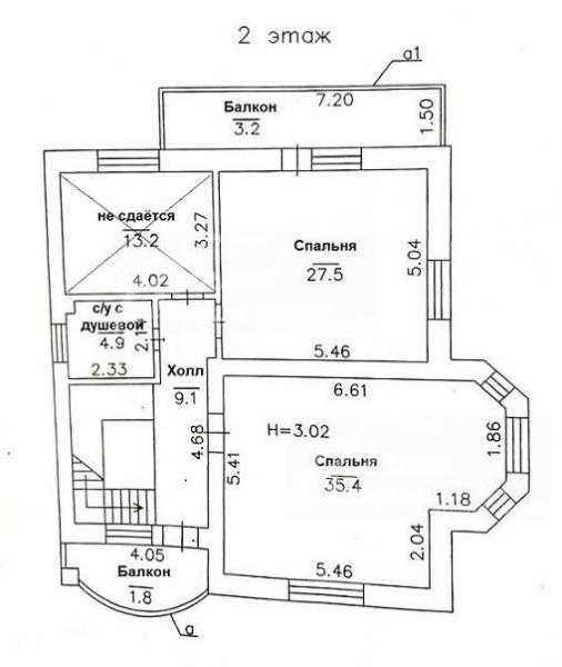
2-ой этаж: холл, балкон, спальня, спальня с балконом, спальня (будет закрыта с личными вещами), санузел (с окном и душевой кабиной)
Описание внутренней отделки: в холе стены окрашены, в жилых комнатах - обои. На полу дубовый паркет, в кухне, коридоре и санузлах - плитка с подогревом. В санузлах на стенах и полу коллекционная плитка. Лестница отделана дубом.
Инженерное обеспечение: газовый котел настенный, накопительный бойлер Ariston на 150 л, двухступенчатая система очистки воды. Вентиляция естественная. Установлен Wi-Fi роутер, телевидение.
Мебель, оборудование: Дом полностью укомплектован мебелью. В гостиной-столовой два дивана, обеденный стол на 8 персон. В спальнях - кровати с матрацами, шкафы, комод. Кухня с лакированными фасадами цвета лайма, с нотками японского стиля, с черной (под мрамор) столешницей и с рабочим фартуком из мозаики, встроенная электрическая варочная панель AEG, духовой шкаф AEG, микроволновка LG, большой холодильник Whirpool. Обеденный стол со стульями. Стиральная машина LG на 6.5 кг загрузки, пылесос, ТВ. Во всех помещениях люстры, тюль и шторы, картины на стенах, на полу хорошие ковры.
Дополнительные строения: - Деревянная крытая беседка, обвитая диким виноградом, внутри стол на 6-8 персон, скамья, стулья;
- Хоз блок
Дополнительная информация о доме: высота потолков: 1-ый этаж - 2.8 м; 2-ой этаж - ок.2.8 м
Участок
Площадь участка, соток: 6
Тип участка: с ландшафтом и деревьями
Благоустройство участка: на участке яблони, ель, множество гортензий, кустарники, отличный газон
Дополнительная информация об участке: забор из кирпича в стиле дома высотой 2м, эффектные стальные ворота ручной работы, парковка перед домом
Коммуникации
Газ: есть (магистральный)
Э/э: есть (19 кВт)
Водопровод: центральный
Канализация: централизованная
Интернет: есть (оптоволокно)
Описание инфраструктуры
инфраструктура г.Троицка. Фитнес-центр с бассейном уровня бизнес «плюс» "Резиденция"
Хочу посмотретьОплата агентству «Белые Ветры»: 70 000 руб.
Поделитесь с друзьями:
Похожие предложения:
Дом в аренду, Микрорайон К (Троицк), 210 м2, 6 сот
Ольховая, Прокшино - от 19 мин на автоДом в аренду, Микрорайон К
Калужское ш., 22 км
пл. участка: 6 сот
пл. дома: 210 м2
меблирован
Спален: 2. С/узлов: 1.
Дом в аренду, Каменка к/п (Воскресенское), 250 м2, 6 сот
Ольховая, Бунинская аллея - от 8 мин на автоДом в аренду, Каменка к/п
Калужское ш., 8 км + 2 км
пл. участка: 6 сот
пл. дома: 250 м2
меблирован
Спален: 4. С/узлов: 3.
Дом в аренду, Былово, 250 м2, 7.5 сот
Ольховая, Теплый стан - от 24 мин на автоДом в аренду, Былово
Калужское ш., 24 км + 3 км
пл. участка: 7.5 сот
пл. дома: 250 м2
меблирован
Спален: 3. С/узлов: 2.












