Дом в аренду, Южный Берег к/п
Код: 461-001
Особенности объекта
Со вкусом, дорого и качественно оформленный дом с летним бассейном в охраняемом коттеджном поселке. Свежий ремонт, новая мебель, уютные просторные комнаты. Поселок граничит с лесом, в пешей доступности инфраструктура населенных пунктов Крекшино, Кокошкино. Удобная транспортная доступность с 3-х шоссе: Киевского, Боровского, Минского, 20 минут до железнодорожной станции и остановки маршрутного такси до метро Юго-Западная.
Расположение
Ссылка на карту
Южный Берег к/п (Брехово)
Киевское шоссе, от МКАД: 21 км, всего: 28 км
Боровское шоссе, от МКАД: 16 км, всего: 22 км
Тип застройки: обжитой к/п
Метро: Рассказовка, Саларьево, Теплый стан; от 17 мин на авто
Дом
Общая площадь строений: 368 м2
Год постройки дома: 2006 (ремонт 2014г)
Количество уровней: 3
Спален: 4. С/узлов: 2. Комнат всего: 6.
Опции: бассейн; сауна; машиномест крытых: 4, в т.ч. в теплом гараже: 1; площадка для барбекю, мангал.
Материал стен: кирпич с утеплителем
Облицовка стен: штукатурка
Кровля: другое
Окна: стеклопакеты ПВХ (двухкамерные, в зимнем саду с раскладкой)
Стадия готовности: меблирован
Цоколь: теннисный зал с тренажерами 25 кв.м, котельная 10 кв.м, холл 10 кв.м
1-ый этаж: прихожая 20 кв.м, зимний сад со вторым светом 35 кв.м, кухня-столовая 37 кв.м, гостиная 41 кв.м, с/узел 10.5 кв.м, комната отдыха с сауной 10 кв.м, холодная комната 12 кв.м, гараж 40 кв.м
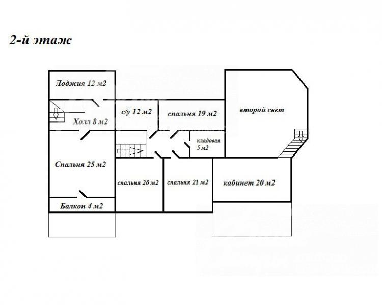
2-ой этаж: спальня 25 кв.м с балконом, спальня 21 кв.м, спальня 20 кв.м, спальня 19 кв.м, кабинет 20 кв.м, гардеробная 5 кв.м, коридор 5 кв.м, холл 10 кв.м, лоджия 12 кв.м
Описание внутренней отделки: отделка выполнена со вкусом, использованы качественные дорогостоящие материалы. В отделке стен в зонах общего пользования использован декоративный камень, на цоколе и на 1-м этаже в помещениях на полах плитка с подогревом, на втором этаже - паркетная доска. Разноуровневые потолки и свет, в сан.узле на втором этаже потолок зеркальный.
Мебель, оборудование: полностью меблирован, кроме кабинета и комнаты отдыха у сауны
Дополнительные строения: летний бассейн
Участок
Площадь участка, соток: 10
Тип участка: парковый, с ландшафтом
Благоустройство участка: На участке обустроена площадка для барбекю, засеян газон, оформлена альпийская горка, высажены разнообразные деревья и кустарники: голубые ели, сосны, туи, береза, барбарис, можжевельник, сирень и др.
Дополнительная информация об участке: лес в 200 м от участка
Коммуникации
Газ: есть (магистральный)
Э/э: есть (10 кВт)
Водопровод: центральный
Канализация: централизованная
Интернет: возможно подключение
Охрана: есть
Описание инфраструктуры
На расстоянии 1 км расположена вся инфраструктура населенных пунктов Кокошкино и Крекшино: поликлиника, детские сады, школы, Храм, салоны красоты, аптеки, ветеринарная клиника, банки, магазины и рынок.
Хочу посмотретьОплата агентству «Белые Ветры»: 57 500 руб.