Таунхаус, Дубровка ЖК
Код: 108-858
Особенности объекта
Торцевой таунхаус на участке 5 соток, расположенный в обжитом строго охраняемом поселке Дубровка с собственной зоной отдыха и богатой инфраструктурой, 3 ресторана, 2 супермаркета, новый фитнес клуб, частный детский сад и начальная школа. 10 минут пешком до М. Ольховая. Таунхаус под ключ с сантехникой и кухней. Есть сауна. Функциональная планировка: 4 спальни и 4 с/у.
Расположение
Ссылка на карту
Дубровка ЖК (Сосенки)
Калужское шоссе, от МКАД: 5 км, всего: 6 км
Тип застройки: сформированный к/п
Метро: Ольховая, Теплый стан, Прокшино; от 15 мин пешком
Жилой комплекс «Дубровка»
Дом
Общая площадь строений: 247 м2
Количество уровней: 3
Спален: 4. С/узлов полных: 3. С/узлов неполных: 1. Комнат всего: 7.
Опции: сауна; терраса; камин.
Материал стен: ж/б монолитный каркас заложен пеноблоком + утеплитель
Облицовка стен: штукатурка (+ покраска)
Кровля: мягкая (Katepal, водосточная система металлическая Lindab)
Окна: стеклопакеты ПВХ (двойные, белые, 3 мансардных окна Velux)
Стадия готовности: под ключ (с кухней и встроенными шкафами-купе)
1-ый этаж: тамбур 7 кв.м, прихожая 4 кв.м, холл 5 кв.м, зона кухни 28 кв.м, зона гостиной 46 кв.м с антикварным камином и выходом на улицу через тамбур 6 кв.м, гостевой санузел 3 кв.м, котельная 4 кв.м.
2-ой этаж: холл 6 кв.м, общая гардеробная 6 кв.м, спальня 19 кв.м с кабинетом 18 кв.м, спальня 19 кв.м с санузлом 2 кв.м (душевая), общий санузел 10 кв.м с ванной-джакузи.
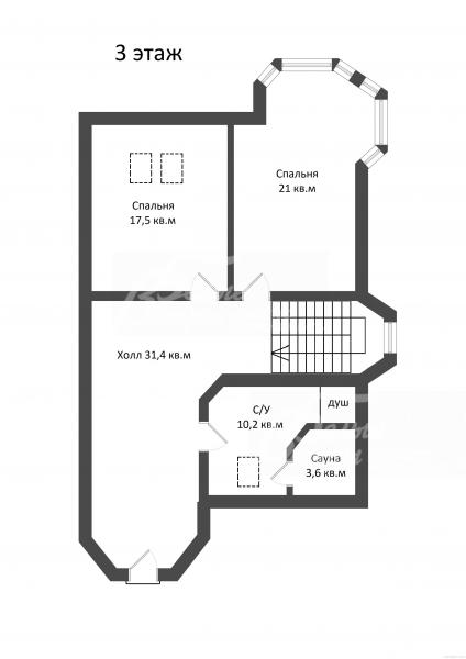
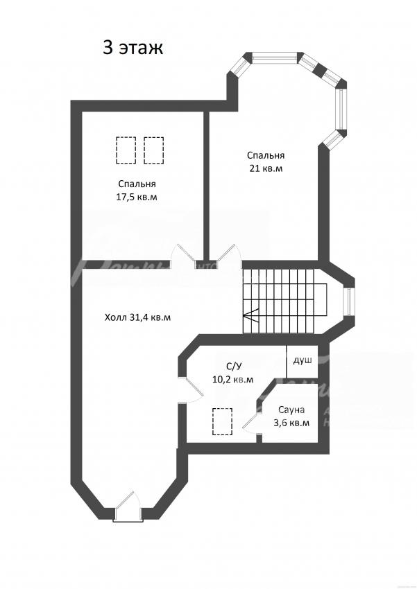
3-ий этаж: холл-игровая 31 кв.м, спальня 21 кв.м, спальня 17.5 кв.м, санузел 10 кв.м с душевой и сауной 4 кв.м.
Описание внутренней отделки: выполнена отделка в классическом стиле. На стенах декоративная штукатурка, обои и окраска в спальнях, плитка в санузлах. На полу плитка с водяным подогревом (холл, кухня и санузлы), паркет в гостиной художественный наборный, ручной работы, доска на мансарде, ковролин в спальнях. Лестница жб монолитная шириной 1 м, ступени и поручни дубовые. Потолки подвесные ГКЛ разноуровневые с различной подсветкой. Установлена сантехника ведущих брендов (Jacob Delafon, Laufen). Все коммуникации разведены. Радиаторы секционные Би-металл. Э/э VIMAR (Италия). Двери деревянные, шпонированные дубом, в классическом дизайне. Антикварный камин привезенный из Франции (чугунная топка, облицовка зеленым мрамором).
Инженерное обеспечение: в доме установлены газовый котел Vaillant 34 кВт, бойлер косвенного нагрева Drazice 200 л. Естественно-приточная вентиляция, во всех жилых помещениях кондиционеры Mitsubishi. В сауне установлена печь Tylo (Швеция).
Мебель, оборудование: установлен кухонный гарнитур со встроенной техникой, с деревянными фасадами (дуб), столешница - искусственный камень.
Дополнительные строения: - навес на 1 авто с хозблоком
- летняя беседка с зоной барбекю
Дополнительная информация о доме: дом выполнен в классическом английском стиле. Фундамент ленточный монолит, плиты перекрытия ж/б монолитные.
Участок
Площадь участка, соток: 5
Тип участка: с деревьями
Благоустройство участка: на участке высажены ель и яблоня, декоративные кустарники. Устроены дорожки, газон.
Статус земли: земли населенных пунктов для ИЖС
Дополнительная информация об участке: участок правильной формы находится в центре поселка и огорожен сзади и слева на заднем дворе деревянным забором высоток 1,5 м.
Коммуникации
Газ: есть (магистральный)
Э/э: есть (8 кВт)
Водопровод: центральный
Канализация: централизованная
Интернет: есть
Охрана: есть (безопасность жилого комплекса обеспечивается круглосуточным патрулированием службой вневедомственной охраны и сотрудниками контроля доступа, а так же пропускным режимом и современной системой видеонаблюдения)
Описание инфраструктуры
Охраняемый жилой комплекс с гостевой парковкой. На въезде большой фитнес-центр Дубровка с бассейном, СПА-зоной, салоном красоты и тренажерным залом. При въезде расположены три супермаркета один из них «Перекресток», «Азбука Вкуса», «Пятерочка». Торговый центр «Уютный дом», кулинария, банк, аптека, 3 ресторана: SomeMeat, Florentini, Чё Хотели Пили Ели, кафе Таверна и Вкусно и Точка, ветеринарная клиника, банкоматы, Дом быта, шиномонтаж, зоомагазин, офис нотариуса. Для детей жилого комплекса Дубровка работают: семейный центр и детский сад «Радость» со спортивными и творческими секциями. Частная школа Tower Bridge School (от 4 до 11 лет), где есть группа раннего развития, подготовка к школе, начальная школа и дополнительные занятия (творчество, живопись, иностранные языки и спортивные секции). Частная школа «СО-Знание Дубровка» для детей 0-11 классов, частная школа с начальными классами (1-4 класс) Эволуччи. На территории поселка благоустроена лесная прогулочная зона, места с беседками для барбекю, беловые и велосипедные дорожки, есть мини-зоопарк. Действуют пункты выдачи заказов Ozon и Яндекс Маркет, Wildberries, Сдек. Православный Храм в 10 минутах пешком. В 10 минутах пешком метро Ольховая. В 10 минутах на машине частная школа Летово (с 7 по 11 класс), теннисный клуб Теннис.ру, городская инфраструктура поселков Коммунарка, Воскресенское, Николо-Хованское (поликлиники, больницы, десткие сады и школы, торговые комплексы, рестораны, фитнес клубы, банки, Мои документы и др.)
Хочу посмотретьПоделитесь с друзьями:
Похожие предложения:
Таунхаус, Ели к/п (Фоминское), 308 м2, 3.2 сот
Киевское шоссе, от МКАД: 14+13 км
Ольховая, Теплый стан - от 20 мин на автоТаунхаус, Ели к/п
Калужское ш., 14 км + 4 км
пл. участка: 3.2 сот
пл. дома: 308 м2
меблирован
Спален: 5. С/узлов: 4.

Таунхаус, Дубровка ЖК (Сосенки), 220 м2, 6 сот
Ольховая, Теплый стан - от 15 мин пешкомТаунхаус, Дубровка ЖК
Калужское ш., 5 км + 1 км
пл. участка: 6 сот
пл. дома: 220 м2
меблирован
Спален: 3. С/узлов: 3.








