Дом, Академический к/п
Код: 397-004
Особенности объекта
Видеоролик Дом уникальной архитектуры, в духе конструктивизма, для ценителей стиля. В стародачном охраняемом поселке академиков. Оригинальные решения: в том числе шестиугольная башня с огромным количеством окон разной формы, широкая лестница, большая обзорная веранда, камины, украшенные скульптурами известных мастеров. Все центральные коммуникации. По мнению экспертов, дом является произведением архитектурного искусства. Требует ремонта.
Расположение
Ссылка на карту
Академический к/п (Ватутинки)
Калужское шоссе, от МКАД: 16 км, всего: 17 км
Тип застройки: стародачное место
Метро: Ольховая, Прокшино, Теплый стан; от 16 мин на авто
Дом
Общая площадь строений: 385.6 м2
Количество уровней: 3
Спален: 4. С/узлов: 4. Комнат всего: 8.
Опции: баня; сауна; камин.
Материал стен: кирпич
Облицовка стен: кирпич, штукатурка
Кровля: металлическая
Окна: стеклопакеты ПВХ (и деревянные)
Стадия готовности: меблирован
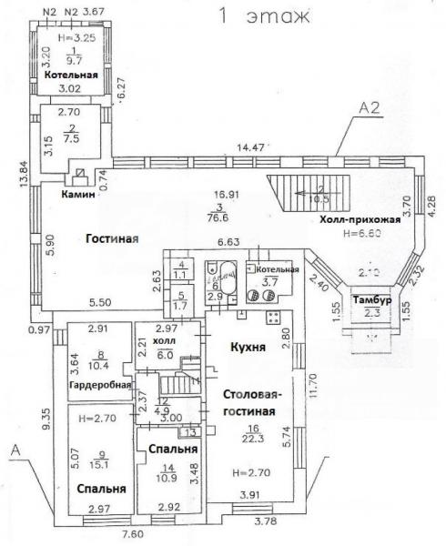
1-ый этаж: тамбур, холл-прихожая, гостиная с японским садом и камином 77 кв.м, с/узел, кухня 10 кв.м, объединенная со столовой 22 кв.м, спальня 15 кв.м, гардеробная 10 кв.м, спальня 11 кв.м; котельная 10 кв.м
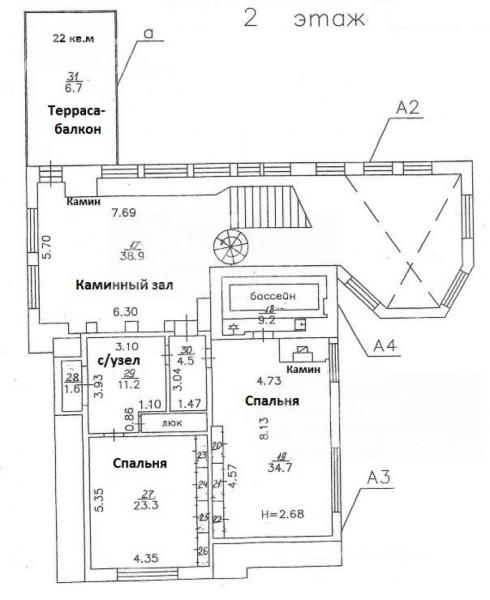
2-ой этаж: двухсветный каминный зал второго этажа 39 кв.м с выходом на террасу 22 кв.м, спальня 35 кв.м с с/узлом 9.2 кв.м, спальня 23 кв.м с с/узлом 11 кв.м
3-ий этаж: галерея над вторым светом 16.7 кв.м с выходом на открытую террасу 21 кв.м; кабинет 18.7 кв.м, сауна
Описание внутренней отделки: стены оштукатурены, в некоторых помещениях отделаны ценными породами дерева; пол - доска, паркет; потолки окрашены; лестничный марш шириной более 2м с деревянными и металлическими элементами; деревянные двери, каменные подоконники
Инженерное обеспечение: котел Vaillant; установлены фильтры воды; импортная сантехника
Дополнительные строения: Баня.
Участок
Площадь участка, соток: 16 (примыкает к земле лесного фонда, фактически в пользовании всего 46 соток)
Тип участка: лесной (вековой смешанный лес)
Благоустройство участка: на участке вековые сосны, ели; выложены дорожки из плитки
Статус земли: 16 соток - земли населенных пунктов, для дачного строительства
30 соток - земли лесного фонда
Дополнительная информация об участке: участок сложной формы, выходит в вековой лес, огороженный металлическим забором на столбах
Коммуникации
Газ: есть (магистральный)
Э/э: есть (10 кВт)
Водопровод: центральный
Канализация: централизованная
Телефон: есть (Московский номер)
Интернет: есть (+ ТВ антенна)
Охрана: есть (КПП на въезде, пропускной режим)
Описание инфраструктуры
Инфраструктура поселка Ватутинки, в 5 минутах ходьбы Russian Desing District - жилой комплекс и культурно-образовательный кластер В непосредственной близости: школы, гимназии, детские сады, магазины, поликлиники, салоны красоты, химчистки, OZON, WB, автобусные остановки. Для семейного активного отдыха: стадионы, хоккейные площадки, спортивный парк. Из самого поселка собственный выход в Ватутинский лесной массив и реке Десна. В 2029 году планируется запуск 2 ближайших станций метро: "Ватутинки" и "Троицк".
Элементы положит. окружения
Поселок расположен в лесном массиве, река Десна в 300 метрах.
Хочу посмотретьПоделитесь с друзьями:
Похожие предложения:
Дом, Лаптево КП, 370 м2, 14.5 сот
Ольховая, Бунинская аллея - от 12 мин на автоДом, Лаптево КП
Калужское ш., 8 км + 4 км
пл. участка: 14.5 сот
пл. дома: 370 м2
меблирован
Спален: 5. С/узлов: 3.
Дом, Ново-Троицкое к/п (Пучково), 377 м2, 15 сот
Киевское шоссе, от МКАД: 21+9 км
Ольховая, Теплый стан - от 21 мин на автоДом, Ново-Троицкое к/п
Калужское ш., 17 км + 3 км
пл. участка: 15 сот
пл. дома: 377 м2
меблирован
Спален: 4. С/узлов: 4.
Дом, Цветочный к/п, 334 м2, 12 сот
Ольховая, Теплый стан - от 29 мин на автоДом, Цветочный к/п
Калужское ш., 24 км + 3 км
пл. участка: 12 сот
пл. дома: 334 м2
меблирован
Спален: 5. С/узлов: 3.











