Дом, Дубровка к/п
Код: 108-834
Особенности объекта
Уникальное предложение! Дом находится в тихом и уединённом месте поселка таунхаусов в прогулочной зоне на берегу озера. Дом с квартирой для персонала, хорошая планировка. Поселок со своей мощной инфраструктурой (магазины, рестораны, банк, школа, детсад и т.д.), в близости Москвы.
Расположение
Ссылка на карту
Дубровка ЖК (Сосенки)
Калужское шоссе, от МКАД: 5 км, всего: 6 км
Тип застройки: сформированный к/п
Метро: Ольховая, Теплый стан, Прокшино; от 15 мин пешком
Жилой комплекс «Дубровка»
Дом
Общая площадь строений: 415 м2
Год постройки дома: 2011
Количество уровней: 3
Спален: 4. С/узлов полных: 3. С/узлов неполных: 1. Комнат всего: 7.
Опции: квартира для персонала; машиномест крытых: 2, в т.ч. в теплом гараже: 2; вывод под камин.
Материал стен: пеноблок+утеплитель
Облицовка стен: фасадная штукатурка Короед
Кровля: мягкая (Катепал)
Окна: стеклопакеты ПВХ (двухкамерные ламинированные под дерево, с раскладкой)
Стадия готовности: под чистовую отделку
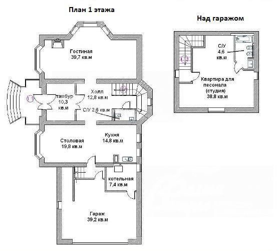
1-ый этаж: крыльцо, прихожая 10 кв.м, холл 13 кв.м, с/узел 3 кв.м, гостиная 40 кв.м, столовая 20 кв.м, кухня 15 кв.м, гараж 39 кв.м, котельная 7.5 кв.м
2-ой этаж: холл 10 кв.м, библиотека 26 кв.м, кабинет 15 кв.м, Главная спальня 19 кв.м с гардеробной 12 кв.м, с выходом на балкон и с с/узлом 16 кв.м; квартира для персонала (студия) 39 кв.м с с/узлом 5 кв.м (вход через гараж первого этажа).
3-ий этаж: холл 12 кв.м, спальня 23 кв.м с балконом, гардеробной 11 кв.м и с с/узлом 5 кв.м, спальня 18 кв.м с гардеробной 15 кв.м и с с/узлом 5 кв.м
Описание внутренней отделки: Стены выровнены, в некоторых помещениях ошпатлеваны, сделана чистовая стяжка пола, лестничный марш железобетонный монолит шириной 1.1 м
Инженерное обеспечение: все коммуникации разведены по дому, установлен газовый котел De Dietrich, радиаторы, вентиляция естественная приточно-вытяжная, счетчики воды и электричества
Дополнительная информация о доме: Дом выстроен в классическом стиле, фундамент ленточный ж/б монолитный, монолитные перекрытия, высота потолков 3 м
Участок
Площадь участка, соток: 10
Тип участка: парковый с высаженными молодыми деревьями
Благоустройство участка: на участке газон и одна вековая береза, по периметру забора высажено 25 туй, сделан дренаж вокруг дома
Статус земли: земли населенных пунктов для ИЖС
Дополнительная информация об участке: участок с краю граничит с парковой зоной поселка и озером, огорожен забором из металлической сетки на металлических столбах
Коммуникации
Газ: есть (магистральный)
Э/э: есть (15 кВт)
Водопровод: центральный
Канализация: централизованная
Телефон: возможно подключение (МГТС за доп.плату)
Интернет: возможно подключение (за доп.плату)
Охрана: есть (безопасность жилого комплекса обеспечивается круглосуточным патрулированием службой вневедомственной охраны и сотрудниками контроля доступа, а так же пропускным режимом и современной системой видеонаблюдения)
Описание инфраструктуры
Охраняемый жилой комплекс с гостевой парковкой. На въезде большой фитнес-центр Дубровка с бассейном, СПА-зоной, салоном красоты и тренажерным залом. При въезде расположены три супермаркета один из них «Перекресток», «Азбука Вкуса», «Пятерочка». Торговый центр «Уютный дом», кулинария, банк, аптека, 3 ресторана: SomeMeat, Florentini, Чё Хотели Пили Ели, кафе Таверна и Вкусно и Точка, ветеринарная клиника, банкоматы, Дом быта, шиномонтаж, зоомагазин, офис нотариуса. Для детей жилого комплекса Дубровка работают: семейный центр и детский сад «Радость» со спортивными и творческими секциями. Частная школа Tower Bridge School (от 4 до 11 лет), где есть группа раннего развития, подготовка к школе, начальная школа и дополнительные занятия (творчество, живопись, иностранные языки и спортивные секции). Частная школа «СО-Знание Дубровка» для детей 0-11 классов, частная школа с начальными классами (1-4 класс) Эволуччи. На территории поселка благоустроена лесная прогулочная зона, места с беседками для барбекю, беловые и велосипедные дорожки, есть мини-зоопарк. Действуют пункты выдачи заказов Ozon и Яндекс Маркет, Wildberries, Сдек. Православный Храм в 10 минутах пешком. В 10 минутах пешком метро Ольховая. В 10 минутах на машине частная школа Летово (с 7 по 11 класс), теннисный клуб Теннис.ру, городская инфраструктура поселков Коммунарка, Воскресенское, Николо-Хованское (поликлиники, больницы, десткие сады и школы, торговые комплексы, рестораны, фитнес клубы, банки, Мои документы и др.)
Элементы положит. окружения
В поселке каскад небольших озёр, зоопарк, где живут косули, кабаны, прогулочная зона в парке поселка, тихое место.
Хочу посмотретьПоделитесь с друзьями:
Похожие предложения:
Дом, Валуевская слобода к/п (Валуево), 415 м2, 12.8 сот
Калужское шоссе, от МКАД: 7+6 км
Филатов луг, Ольховая - от 17 мин на автоДом, Валуевская слобода к/п
Киевское ш., 7 км + 4 км
пл. участка: 12.8 сот
пл. дома: 415 м2
коробка
Спален: 5. С/узлов: 5.


Дом, Валуевская слобода к/п (Валуево), 480 м2, 12.6 сот
Калужское шоссе, от МКАД: 7+6 км
Филатов луг, Ольховая - от 17 мин на автоДом, Валуевская слобода к/п
Киевское ш., 7 км + 4 км
пл. участка: 12.6 сот
пл. дома: 480 м2
под отделку
Спален: 5. С/узлов: 4.







