Продажа дачи, коттеджа, дома на Киевском, Калужском шоссе — цена, описание, фото, расположение на карте.

Дом, Графский лес КП

Снят с реализации

Меблированный коттедж в к/п Графский лес

Код: 405-307

Особенности объекта

Меблированный и полностью готовый к проживанию коттедж в поселке премиум-класса Графский Лес. Качественное строительство, стильная и современная отделка, модная архитектура, все центральные коммуникации. Графский Лес является второй очередью одного из самых пафосных поселков Киевского направления Графские Пруды. Смотрите ролик о доме

Расположение

Ссылка на карту
Графский лес КП (Каменка)
Киевское шоссе, от МКАД: 21 км, всего: 28 км
Калужское шоссе, от МКАД: 17 км, всего: 40 км
Тип застройки: сформированный к/п
Метро: Саларьево, Рассказовка, Теплый стан; от 28 мин на авто
Коттеджный поселок «Графский Лес»

Дом

Общая площадь строений: 240 м2
Год постройки дома: 2012
Количество уровней: 2
Спален: 4. С/узлов: 3. Комнат всего: 5.
Опции: терраса; камин.
Материал стен: монолитный каркас заполненный крупноформатными керамическими поризованными блоками Porotherm
Облицовка стен: штукатурка и клинкерная плитка для облицовки фасада ведущих немецких производителей - Feldhaus, Stroeher, ABC
Кровля: другое (фальцевое металлическое покрытие Ruukki (пр-во Финляндии))
Окна: стеклопакеты алюминиевые (высокого качества)
Стадия готовности: меблирован
1-ый этаж: крыльцо 12.5 кв.м, тамбур 4 кв.м, холл 18 кв.м, гардеробная 4.5 кв.м, кухня-столовая 21 кв.м, гостиная 23 кв.м с выходом на террасу 8.5 кв.м, кабинет 17.6 кв.м, с/узел 8 кв.м, котельная 7.4 кв.м
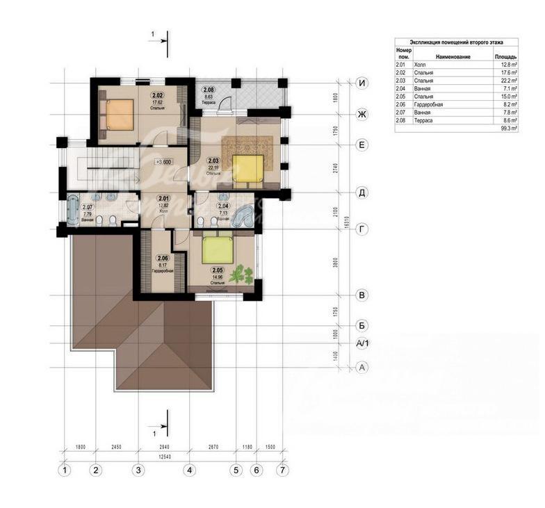
2-ой этаж: холл 13 кв.м, Главная спальня 22 кв.м с с/узлом 7 кв.м и террасой 8.6 кв.м, спальня 17.6 кв.м, спальня 15 кв.м, с/узел 8 кв.м, гардеробная 8 кв.м
Описание внутренней отделки: Выполнена стильная современная отделка: стены оштукатурены и окрашены, в с/узлах английские обои коллекции 2014 года. Пол - паркетная доска (пр-ва Германии), керамогранит, кафель, на террасе 2-го этажа - лиственница. Потолки подвесные со встроенным светом. Лестница монолитная, отделана дубом цвета Венге, ступени с подсветкой. Двери в цвет Венге со стеклом и без в жилых и санузлах (пр-ва Италии).
Инженерное обеспечение: котёл Logano 234 и бойлер Buderus на 300 л (пр-во Германии), э/э - розетки и выключатели с диммерами (регуляторами) - топовая коллекция Legrand (пр-во Франция); тёплые полы (водяные) - 4 контура; радиаторы с терморегуляторами; импортная сан/тех арматура: смесители, краны, лейки фирмы Kludi (пр-во Германии). Вентиляция естественная + кондиционеры фирмы Toshiba (5 штук) с общим блоком; установлен видеодомофон.
Мебель, оборудование: Коттедж полностью меблирован: оборудованная кухня со встроенной техникой марки Bosch, шкафы, спальные гарнитуры, кабинет, мягкая мебель в гостиной, столовый гарнитур, камин на экологичном биотопливе (бутанол). Текстиль - шторы на окнах, свет фирмы Arte. Сантехника фирмы Duravit (пр-во Германии).
Дополнительная информация о доме: Дома в поселке выполнены в едином стиле - в традициях органической архитектуры Фрэнка Ллойда Райта. Фундамент и перекрытия дома ж/б монолитные, высота потолков 3 - 3.15 м

Участок

Площадь участка, соток: 18
Тип участка: без деревьев
Благоустройство участка: вокруг дома сделан дренаж
Статус земли: земли населённых пунктов для ИЖС
Дополнительная информация об участке: участок правильной прямоугольной формы в начале поселка, огорожен металлическим кованым забором на цокольном основании и каменных столбах

Коммуникации

Газ: есть (магистральный)
Э/э: есть (15 кВт)
Водопровод: центральный
Канализация: централизованная
Интернет: возможно подключение (спутниковое ТВ, цифровое)
Охрана: есть (КПП, видеонаблюдение)

Элементы положит. окружения

Лесной массив расположен в 50 метрах, пруд в 1 км.

Хочу посмотреть


Поделитесь с друзьями:

Собираетесь купить дом, дачу или коттедж на Калужском или Киевском направлении? Обязательно воспользуйтесь услугами компании «Белые Ветры», старейшего оператора загородной недвижимости на Юго-западе Подмосковья!
Рейтинг@Mail.ru