Дом, Гайд Парк к/п
Код: 330-211
Особенности объекта
Красивый коттедж в английском стиле в современном поселке со всеми центральными коммуникациями. Поблизости лес и река.
Расположение
Ссылка на карту
Гайд Парк к/п (Софьино)
Калужское шоссе, от МКАД: 25 км, всего: 28 км
Варшавское шоссе, от МКАД: 24 км, всего: 34 км
Тип застройки: сформированный к/п
Метро: Ольховая, Теплый стан, Подольск; от 26 мин на авто
Коттеджный поселок «Гайд Парк»
Дом
Общая площадь строений: 327 м2
Год постройки дома: 2010
Количество уровней: 3
Спален: 5. С/узлов: 3. Комнат всего: 7.
Опции: машиномест крытых: 1, в т.ч. в теплом гараже: 1; вывод под камин.
Материал стен: монолит
Облицовка стен: плитка (иск.камень под кирпич "Камрок")
Кровля: мягкая
Окна: стеклопакеты ПВХ
Стадия готовности: под чистовую отделку
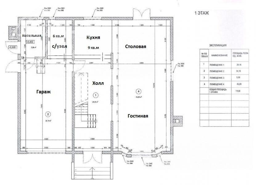
1-ый этаж: гараж 34 кв.м, холл 29 кв.м, гостиная-столовая 46 кв.м с выходом на участок, кухня 9 кв.м, с/узел 6 кв.м, котельная 5.5 кв.м с отдельным входом
2-ой этаж: холл 22 кв.м, спальня хозяев 30 кв.м с с/узлом 6 кв.м, cпальня 22 кв.м, с/узел 6 кв.м, спальня 23 кв.м
3-ий этаж: мансарда общей площадью 102 кв.м: холл, игровая зона 35 кв.м, 2 детских спальни по 22 кв.м
Описание внутренней отделки: Дом подготовлен для чистовой отделки. Стены выровнены, сделана черновая стяжка пола, временные деревянные лестницы. Установлена входная дверь.
Инженерное обеспечение: установлены котел Viessmann на 40 кВт, бойлер Vitocell100, фильтры очистки воды; отопление разведено по дому, установлены радиаторы; выполнена временная разводка электричества, счетчики электричества и газа
Дополнительная информация о доме: Дом представлен в стиле Английской архитектуры. Фундамент дома - ленточный монолит, монолитные перекрытия, высота потолков 3.20 м
Участок
Площадь участка, соток: 10.76
Тип участка: без деревьев
Благоустройство участка: газон, сделан дренаж участка
Статус земли: земли населенных пунктов
Дополнительная информация об участке: участок правильной прямоугольной формы в центре поселка, огорожен бетонным забором по периметру, по фасаду кованый забор на бетонных столбах
Коммуникации
Газ: есть (магистральный)
Э/э: есть (12 кВт)
Водопровод: центральный
Канализация: централизованная
Телефон: возможно подключение (оптоволокно)
Интернет: возможно подключение (оптоволокно)
Охрана: есть
Описание инфраструктуры
Поселок охраняется, на въезде КПП с охраной. На территории поселка организованы детские и спортивные площадки, есть футбольное и баскетбольное поле, столы для настольного тенниса, батуты и др. Есть благоустроенный прудик с пляжной зоной, своя прогулочная парковая зона с сосновом лесу, родник с водой, пригодной для питья и приготовления пищи. Рядом с поселком вскоре будет построен развлекательный центр с фитнес-клубом с бассейном, супермаркетом и детским центром. Рядом парк «Редут времён Отечественной войны 1812 года» с прогулочной зоной и детскими площадками. В шаговой доступности от поселка остановка общественного транспорта до г. Троицк, метро Теплый Стан или станции МЦД Подольск. Вблизи санаторий с бассейном. В 4-х минутах на машине частная школа "Ника", супермаркет, санаторий "Красная Пахра" со СПА-комплексом, бассейном, спортивным центром и др., храм. В 10 минутах на машине поселок Красная Пахра с городской инфраструктурой: школы, детские сады, поликлиника, магазины и др. В 15 минутах на машине г. Троицк.
Элементы положит. окружения
Лесной массив в 100 метрах, в 500 метрах протекает река Пахра.
Хочу посмотретьПоделитесь с друзьями:
Похожие предложения:
Дом, Власово, 298.2 м2, 12.1 сот
Минское шоссе, от МКАД: 22+5 км
Крёкшино, Пыхтино - от 16 мин пешкомДом, Власово
Киевское ш., 21 км + 2 км
пл. участка: 12.1 сот
пл. дома: 298.2 м2
коробка
Спален: 5. С/узлов: 5.
Дом, Новоглаголево к/п (Новоглаголево), 336 м2, 12 сот
Апрелевка, Рассказовка - от 26 мин на автоДом, Новоглаголево к/п
Киевское ш., 32 км + 5 км
пл. участка: 12 сот
пл. дома: 336 м2
под отделку
Спален: 3. С/узлов: 2.

|







