Продажа дачи, коттеджа, дома на Киевском, Калужском шоссе — цена, описание, фото, расположение на карте.

Дом, Идиллия КП

Снят с реализации

Дом 719 кв.м в поселке премиум класса Идиллия

Код: 302-703

Особенности объекта

Изящный коттедж 719 кв.м со свободной планировкой на высоком участке 21 сотка в коттеджном поселке премиум класса Идиллия. Фасад дома выполнен под ключ с множеством декоративных элементов. Предполагается, что в доме 6 спален, 2 из которых со своими гардеробными и санузлами, просторные гостиная и кухня-столовая с выходом на большую террасу. В цокольном этаже спроектирован гараж на 2 авто. Поселок с 3-х сторон окружен лесом, а с четвертой граничит с рекой Пахра. В поселке обустроены места для отдыха и занятий спортом. Есть административное здание 900 кв.м, в котором располагается минимаркет, аптека, химчистка. Московская прописка. Неподалеку развитая инфраструктура г. Троицка.

Расположение

Ссылка на карту
Идиллия КП (Раево)
Калужское шоссе, от МКАД: 22 км, всего: 25 км
Тип застройки: сформированный к/п
Метро: Ольховая, Теплый стан, Филатов луг; от 27 мин на авто
Коттеджный поселок «Идиллия»

Дом

Общая площадь строений: 719 м2
Год постройки дома: 2017
Количество уровней: 3
Спален: 6. С/узлов: 4. Комнат всего: 7.
Опции: терраса; камин; машиномест крытых: 2, в т.ч. в теплом гараже: 2; отличные видовые характеристики, большие панорамные окна, эркеры.
Материал стен: кирпич (с утеплителем Rockwell (65 - 70 см))
Облицовка стен: искусственный камень АрхиИзделия (полная имитация вид живого камня), декоративные фасадные элементы, штукатурка (фасад под ключ) (фасад под ключ)
Кровля: мягкая («Тегола»)
Окна: стеклопакеты деревянные (2-х камерные (производство Италии), панорамные)
Стадия готовности: под отделку (свободная планировка)
Цоколь: свободная планировка. Предлагается следующий вариант: тамбур 8 кв.м, кладовая 23 кв.м, холл 28 кв.м, постирочная 10 кв.м, котельная 15 кв.м, гараж 86 кв.м.
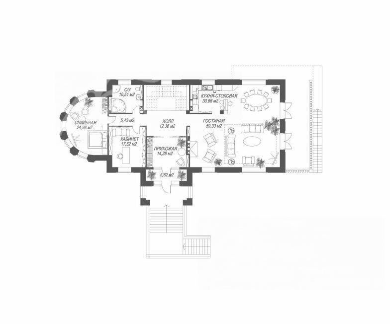
1-ый этаж: свободная планировка. Предлагается следующий вариант: тамбур 6 кв.м, прихожая 14 кв.м, холл 12 кв.м, гостиная 59 кв.м с выходом на террасу, кухня-столовая 31 кв.м с выходом на террасу, коридор 5 кв.м, спальня 25 кв.м, кабинет 18 кв.м, санузел 11 кв.м.
2-ой этаж: свободная планировка. Предлагается следующий вариант: холл 22 кв.м, коридор 5 кв.м, спальня 27 кв.м с гардеробной 15 кв.м и санузлом 11 кв.м, спальня 21 кв.м с гардеробной 7 кв.м и санузлом 5 кв.м, 2 детские по 27 и 28 кв.м, санузел 11 кв.м.
Инженерное обеспечение: газ доведен до дома. Электричество доведено до щитка.
Дополнительная информация о доме: монолитный фундамент, железобетонные перекрытия. Высокие потолки (4.2 м на 1-ом этаже, 3.5 м - на 2-ом этаже)

Участок

Площадь участка, соток: 21
Тип участка: полевой
Благоустройство участка: засажен газоном
Статус земли: земли населенных пунктов, для дачного строительства
Дополнительная информация об участке: участок правильной формы, с небольшим уклоном

Коммуникации

Газ: есть
Э/э: есть (20 кВт)
Водопровод: центральный
Канализация: централизованная
Телефон: возможно подключение
Интернет: есть (оптоволокно)
Охрана: есть (круглосуточная охрана поселка с применением современных средств наблюдения и охраны. Патрулирование с собаками. 1 КПП, 2 поста в санит.зонах у реки, видеонаблюдение, датчики движения)

Описание инфраструктуры

Трехуровневая охрана с возможностью установки индивидуальных охранных систем в домах. Минимаркет, аптека, химчистка, салон красоты, фитнес-центр, ресторан, прогулочная парковая зона, променад на берегу реки. Элитный клуб Резиденция в г.Троицке с 25-м бассейном, тренажерным залом и теннисным кортом

Элементы положит. окружения

Поселок с трех сторон окружен лесом, собственная река со специально оборудованной набережной-променадом. Природную красоту поселка подчеркивает эксклюзивный, авторский ландшафтный дизайн. На территории поселка планируется спортивный комплекс с бассейном, детские учреждения, собственный горнолыжный спуск, гольф поле. Административное здание, где будет расположена вся необходимая для комфортного проживания инфраструктура, уже построено.

Хочу посмотреть


Поделитесь с друзьями:

Похожие предложения:

Дом, Белгатой ДСК (Былово), 665 м2, 20 сот

код: 363-904
Калужское шоссе, от МКАД: 24+2 км
Метро Ольховая, Прокшино - от 24 мин на авто
меблирован, спален: 7, с/узлов: 7
Участок с лесомБаня

Дом, Белгатой ДСК

Код объекта: 363-904
Калужское ш., 24 км + 2 км
пл. участка: 20 сот
пл. дома: 665 м2
меблирован
Спален: 7. С/узлов: 7.
Участок с лесом
54 000 000 

Дом, Идиллия КП (Раево), 615 м2, 21 сот

код: 302-118
Калужское шоссе, от МКАД: 22+3 км
Метро Ольховая, Теплый стан - от 27 мин на авто
под отделку, спален: 5, с/узлов: 5

Дом, Идиллия КП

Код объекта: 302-118
Калужское ш., 22 км + 3 км
пл. участка: 21 сот
пл. дома: 615 м2
под отделку
Спален: 5. С/узлов: 5.
62 000 000 
Собираетесь купить дом, дачу или коттедж на Калужском или Киевском направлении? Обязательно воспользуйтесь услугами компании «Белые Ветры», старейшего оператора загородной недвижимости на Юго-западе Подмосковья!
Рейтинг@Mail.ru