Дом, Лесное Озеро к/п
Код: 131-873
Особенности объекта
Одноэтажный дом из клеёного бруса, построенный в современном стиле, с выразительной конструкцией. Привлекательный экстерьер полностью соответствует внутренней отделке, выдержанной со вкусом. Она выполнена с максимальным комфортом для проживания из дорогостоящих качественных материалов: нескользящей плитки, паркетной доски из дуба, планкена из лиственницы. Интерьер дополнен новой стильной мебелью, техникой и элегантным декором. Дом стоит на ровном участке, граничащим с лесом, в 200 м от озера с пляжем. Участок находится в строго охраняемом коттеджном посёлке с центральными коммуникациями в окружении реликтового леса рядом с инфраструктурой Новой Москвы.
Расположение
Ссылка на карту
Лесное Озеро к/п (Кузенёво)
Калужское шоссе, от МКАД: 25 км, всего: 29 км
Тип застройки: обжитой к/п
Метро: Ольховая, Теплый стан, Подольск; от 29 мин на авто
Коттеджный поселок «Лесное Озеро (Кузенево)»
Дом
Общая площадь строений: 200 м2
Год постройки дома: 2024 (отделка выполнена в 2025 году)
Количество уровней: 1
Спален: 3. С/узлов: 2. Комнат всего: 5.
Опции: гостиная-столовая-кухня со вторым светом.
Материал стен: брус (клеёный; сосна зимняя (декабрьской рубки, нет выделения смол); толщина 200 мм; высота 140 мм; 5 ламелей)
Облицовка стен: дерево сосна (перед покраской дом был полностью отшлифован, покрыт маслом и лессирующей краской снаружи и внутри; цвет фасада – орех, цвет внутренних стен – светлый естественный тон)
Кровля: крыша стальная фальцевая (цвет - графит, матовый; установлена металлическая водосточная система)
Окна: стеклопакеты ПВХ (цвет - графит; два выхода на террасу - с порталами)
Стадия готовности: меблирован
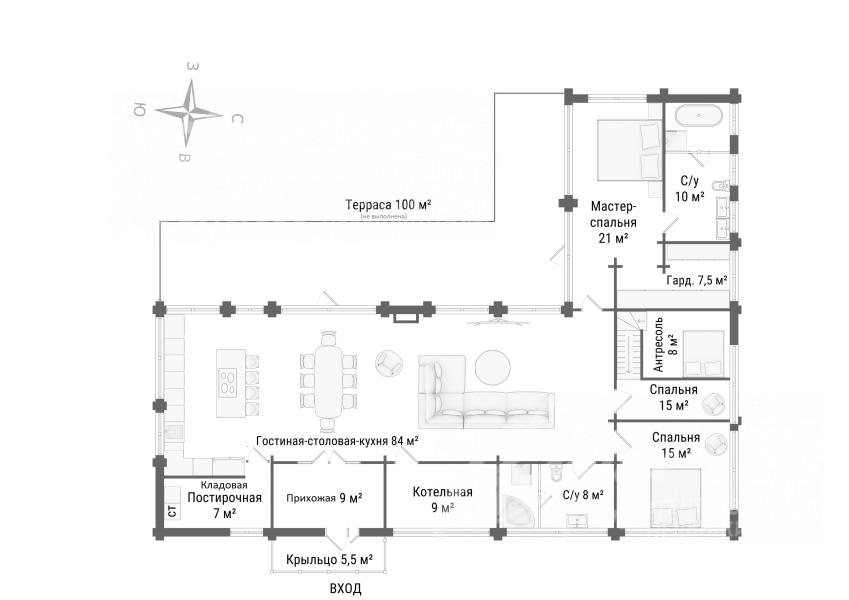
1-ый этаж: крыльцо 5,5 кв.м, прихожая 9 кв.м, гостиная-столовая-кухня 84 кв.м со вторым светом и выходом на террасу 100 кв.м (терраса не выполнена), мастер-спальня 21 кв.м с санузлом 10 кв.м, гардеробной 7,5 кв.м и с выходом на террасу, спальня 15 кв.м с антресолью 8 кв.м (4×2 м, потолок – 2-2,3м), спальня 15 кв.м, санузел 8 кв.м, кладовая-постирочная при кухне 7 кв.м, котельная 9 кв.м
Описание внутренней отделки: в доме выполнена современная отделка в светлых тонах, сочетающая функциональность и эстетику. Стены покрашены. В общих помещениях на полу уложена полуматовая нескользкая плитка размером 80×80 см с тёплым водяным полом (для каждого помещения предусмотрен отдельный контур); затирка выполнена с использованием эпоксидно-резиновой смеси швейцарского производства — по три шва; в других помещениях – паркетная инженерная доска: в спальнях – доска Finex из дуба с интегрированной системой подогрева. Потолки облицованы лиственницей. Смонтирована электрика: фурнитура Werkel в графитовом цвете; по всему дому разведён интернет, полностью проводной. Установлены трубчатые радиаторы в чёрном и белом цвете, белые двери с чёрной алюминиевой окантовкой и чёрной фурнитурой, деревянные подоконники из лиственницы
Инженерное обеспечение: разводка коммуникаций выполнена по всему дому. Система отопления включает газовый котёл мощностью 34 кВт и электрический котёл 27 кВт, обвязка выполнена из чешского полипропилена. Горячее водоснабжение обеспечивается бойлером косвенного нагрева объёмом 200 л. Установлена американская многоступенчатая система водоподготовки. Вентиляция реализована по принципу естественной приточной, дополнительно смонтированы три кондиционера — два в гостиной и один в мастер‑спальне. По периметру размещено семь камер видеонаблюдения
Мебель, оборудование: дом полностью оснащён новой мебелью и всей необходимой бытовой техникой. На кухне установлен гарнитур производства «EGGER» (Белоруссия) с фурнитурой Blum; столешница и кухонный остров, выполненные из кварцевого агломерата; встроена техника Weissgauff (духовой шкаф, индукционная варочная панель, посудомоечная машина, двухдверный холодильник шириной 90 см со лёдогенератором, подключённым к водопроводу, микроволновая печь, винный шкаф; большой обеденный стол. В гостиной размещена диванная группа и телевизор с акустической системой. В спальнях – качественные мебельные гарнитуры, в мастер спальне – телевизор с подключением к антенне и голосовым помощником Алиса. Постирочная оборудована стиральной и сушильной машинами. Во всех помещениях смонтированы карнизы с дорогостоящими шторами. Освещение представлено разнообразными приборами: потолочными люстрами, настенными бра и встроенными светильниками. В санузлах – немецкая сантехника: смесители Allen Brau и Grohe, а также санфаянс высокого качества
Дополнительные строения: в углу участка подготовлены все необходимые выводы коммуникаций для строительства бани: выведены закладные под водоснабжение, канализацию и электроснабжение. Есть готовый проект бани.
Дополнительная информация о доме: конструкция фундамента: свайно-ростверковый тип с монолитной плитой. Применяемый бетон — М400, предусмотрена установка арматурного каркаса. Высота потолков – от 2,6 м до 4,85 м. Имеется полная фото- и видеофиксация всех этапов строительного процесса, а также вся проектная документация
Участок
Площадь участка, соток: 10
Тип участка: без деревьев
Благоустройство участка: участок имеет ровный рельеф, подготовлен к реализации проекта ландшафтного дизайна. На участке выполнена комплексная система дренажа: даже во время интенсивных ливневых дождей территория остаётся сухой
Статус земли: земли населенных пунктов для ИЖС
Дополнительная информация об участке: участок граничит с лесом, есть собственная калитка в лес. Расположение — на границе коттеджного посёлка, в 200 м от озера. По периметру установлен деревянный забор в стиле горизонтального «штакетника» из доски: он смонтирован на металлических столбах с бетонным основанием, высота ограждения составляет 2 м. Въезд оборудован распашными воротами
Коммуникации
Газ: есть (магистральный (в процессе подключения), госкомпания)
Э/э: есть (30 кВт, госкомпания)
Водопровод: центральный (дополнительно есть артезианская скважина 75 м)
Канализация: централизованная
Телефон: возможно подключение
Интернет: есть (оптоволокно по всему дому, подключено спутниковое телевидение)
Охрана: есть
Описание инфраструктуры
В коттеджном поселке: собственное большое озеро с зоной отдыха вокруг него: детские и универсальная спортивные площадки
Хочу посмотретьПоделитесь с друзьями:
Похожие предложения:
Дом, Две Поляны к/п (Птичное), 190 м2, 10.1 сот
Киевское шоссе, от МКАД: 21+9 км
Ольховая, Теплый стан - от 26 мин на автоДом, Две Поляны к/п
Калужское ш., 17 км + 7 км
пл. участка: 10.1 сот
пл. дома: 190 м2
под ключ
Спален: 4. С/узлов: 4.
Дом, Две Поляны к/п (Птичное), 205 м2, 11.3 сот
Киевское шоссе, от МКАД: 21+9 км
Ольховая, Теплый стан - от 26 мин на автоДом, Две Поляны к/п
Калужское ш., 17 км + 7 км
пл. участка: 11.3 сот
пл. дома: 205 м2
под ключ
Спален: 5. С/узлов: 3.
Дом, Стольный к/п (Никольское), 222 м2, 8 сот
Ольховая, Прокшино - от 28 мин на автоДом, Стольный к/п
Калужское ш., 31 км + 1 км
пл. участка: 8 сот
пл. дома: 222 м2
меблирован
Спален: 4. С/узлов: 3.











