Дом, Росинтер к/п
Код: 323-806
Особенности объекта
Полностью готовый к проживанию дом с бассейном, с двухсветной гостиной с камином, в обжитом охраняемом коттеджном поселке на очень красивом ухоженном участке с ландшафтным дизайном.
Расположение
Ссылка на карту
Росинтер к/п (Фоминское)
Калужское шоссе, от МКАД: 14 км, всего: 17 км
Тип застройки: обжитой к/п
Метро: Ольховая, Прокшино, Теплый стан; от 18 мин на авто
Коттеджный поселок «Росинтер»
Дом
Общая площадь строений: 450 м2
Год постройки дома: 2000
Количество уровней: 4
Спален: 5. С/узлов полных: 3. С/узлов неполных: 1. Комнат всего: 8.
Опции: бассейн; сауна; терраса; камин; холодный подвал; машиномест крытых: 1, в т.ч. в теплом гараже: 1.
Материал стен: кирпич, утеплитель (50 см)
Облицовка стен: облицовочный кирпич
Кровля: металлочерепица
Окна: стеклопакеты деревянные
Стадия готовности: меблирован
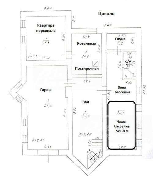
Цоколь: Холл 27 кв.м, гараж 43 кв.м, котельная 15 кв.м, квартира персонала 21 кв.м, зона бассейна 30 кв.м с чашей 1.8х5 м глубиной 1.2 м, с/узел 4 кв.м, сауна 5 кв.м, выход к террасе.
1-ый этаж: Крыльцо, тамбур с гардеробом, прихожая 8 кв.м, холл 15 кв.м, кухня-столовая 22.5 кв.м, двухсветная гостиная 43 кв.м с камином, зимний сад 20 кв.м с выходом на террасу и участок, с/узел 4 кв.м, спальня 13.4 кв.м
2-ой этаж: холл-галерея 32 кв.м, спальня 11 кв.м с выходом на балкон 7 кв.м, с/узел 6 кв.м, спальня 19 кв.м, спальня 11 кв.м, кабинет 19.5 кв.м
3-ий этаж: мансарда - бильярдная около 30 кв.м., с/узел, две кладовые по 20 кв.м
Описание внутренней отделки: Стены оклеены обоями, полы - паркет художественный наборный из разных пород дерева ( бук, дуб, красное дерево, клен), кафель. Потолки оштукатурены, карнизы по краям, медальоны под люстры. Лестничный марш дубовый шириной 1 м. Двери - шпон (высокого качества, пр-ва Испании). Подоконники деревянные (сосна).
Инженерное обеспечение: Все коммуникации по дому разведены под ключ. Установлены газовый котел Hansa (Германия), бойлер ACV на 160 л, счетчики воды и электричества. Многоступенчатая система очистки воды. Вентиляция естественная приточно-вытяжная.
Дополнительная информация о доме: Дом выстроен и отделан в классическом стиле, фундамент- ФБС блоки, перекрытия- ж/б плиты, высота потолков: цоколь 2.3-2.75 м,1 этаж 2.8-5.7 м (второй свет), 2 этаж 2.7-3.28 м
Участок
Площадь участка, соток: 12
Тип участка: парковый с роскошным ландшафтом и деревьями
Благоустройство участка: Выполнен ландшафтный дизайн, высажено около 15 взрослых сосен, 5 елей, 10 туй, 3 взрослых каштана, 4 липы, плодовые деревья: груши, яблони и сливы. Так же различные декоративные кустарники, на участке искусственный пруд с лилиями и кувшинками. Прекрасный газон, дорожки, уличное освещение, имеется огород.
Статус земли: земли населенных пунктов
Дополнительная информация об участке: Двухуровневый прямоугольный участок в центре поселка, с фасада кованый забор на кирпичных столбах с цоколем, с боков рабица в мет.рамках на кирпичных столбах, сзади кованый с деревянными вставками на кирпичных столбах и цоколе, с отдельным заездом
Коммуникации
Газ: есть (магистральный)
Э/э: есть (15 кВт)
Водопровод: центральный
Канализация: централизованная
Телефон: есть (МГТС)
Интернет: есть (оптоволокно, спутниковое ТВ)
Охрана: есть (ЧОП, пультовая охрана)
Описание инфраструктуры
инфраструктура д.Фоминское (магазин, ресторан, автомойка, начальная школа, красивейшая деревянная церковь «Покров Божьей матери на Десне». В Жуковке частная школа 1-11 классы "Путь к успеху". В 500 м от поселка расположен оздоровительный комплекс УД Президента РФ "Ватутинки". В 2-х км г.Троицк с развитой городской инфраструктурой: школы, дет. сады, магазины, поликлиника, фитнес-центр с бассейном Резиденция.
Элементы положит. окружения
Лесной массив расположен в 400 метрах, в 200 метрах протекает река Десна.
Хочу посмотретьПоделитесь с друзьями:
Похожие предложения:
Дом, Ямонтово, 512 м2, 12.4 сот
Ольховая, Бунинская аллея - от 5 мин на автоДом, Ямонтово
Калужское ш., 8 км + 2 км
пл. участка: 12.4 сот
пл. дома: 512 м2
меблирован
Спален: 9. С/узлов: 3.
Дом, Брехово, 365 м2, 10 сот
Минское шоссе, от МКАД: 22+5 км
Рассказовка, Саларьево - от 21 мин на автоДом, Брехово
Киевское ш., 21 км + 7 км
пл. участка: 10 сот
пл. дома: 365 м2
меблирован
Спален: 4. С/узлов: 2.

Дом, Лаптево КП, 370 м2, 14.5 сот
Ольховая, Бунинская аллея - от 12 мин на автоДом, Лаптево КП
Калужское ш., 8 км + 4 км
пл. участка: 14.5 сот
пл. дома: 370 м2
меблирован
Спален: 5. С/узлов: 3.
Дом, Милорадово, 370 м2, 11.3 сот
Ольховая, Теплый стан - от 8 мин на автоДом, Милорадово
Калужское ш., 10 км + 1 км
пл. участка: 11.3 сот
пл. дома: 370 м2
меблирован
Спален: 4. С/узлов: 4.

Дом, Ново-Троицкое к/п (Пучково), 377 м2, 15 сот
Киевское шоссе, от МКАД: 21+9 км
Ольховая, Теплый стан - от 21 мин на автоДом, Ново-Троицкое к/п
Калужское ш., 17 км + 3 км
пл. участка: 15 сот
пл. дома: 377 м2
меблирован
Спален: 4. С/узлов: 4.



















