Дом, Согласие-1 к/п
Код: 316-832
Особенности объекта
Изысканный дом в стиле Арт-Деко с большим бассейном. Современная стильная отделка и интерьер выполнены с привлечением высококлассного дизайнера, использовались элитные и эксклюзивные отделочные материалы и мебель. Венецианская штукатурка, гобелен, лепнина, фрески, лестница, подоконники и столешница кухни из мрамора. Гараж с квартирой для персонала, беседка, парковка для 2-х м/м, большая терраса на 2-ом этаже, сауна, камин. Видео дома
Расположение
Ссылка на карту
Согласие-1 к/п (Фоминское)
Калужское шоссе, от МКАД: 14 км, всего: 16 км
Тип застройки: обжитой к/п
Метро: Ольховая, Прокшино, Теплый стан; от 17 мин на авто
Коттеджный поселок «Согласие-1»
Дом
Общая площадь строений: 558 м2 (Дом 371.7 кв.м + мансарда 110 кв.м + гараж с квартирой для персонала 76.1 кв.м)
Количество уровней: 3
Спален: 4. С/узлов: 3. Комнат всего: 7.
Опции: бассейн; сауна; квартира для персонала; терраса; камин; машиномест крытых: 2, в т.ч. в теплом гараже: 2; второй свет.
Материал стен: многощелевой кирпич
Облицовка стен: Цоколь, эркеры и пристройка с бассейном отделаны диким камнем, остальное декоративной штукатуркой.
Кровля: мягкая
Окна: стеклопакеты ПВХ
Стадия готовности: меблирован
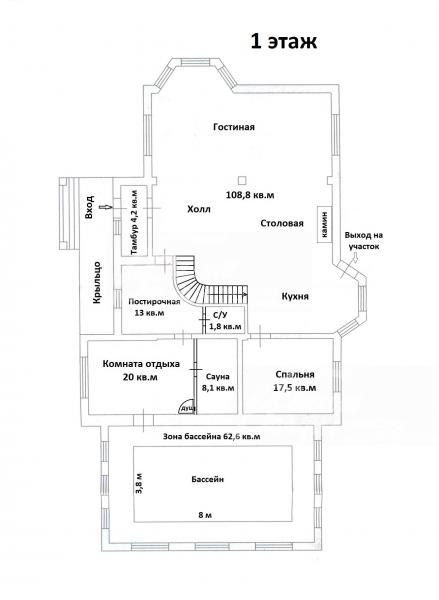
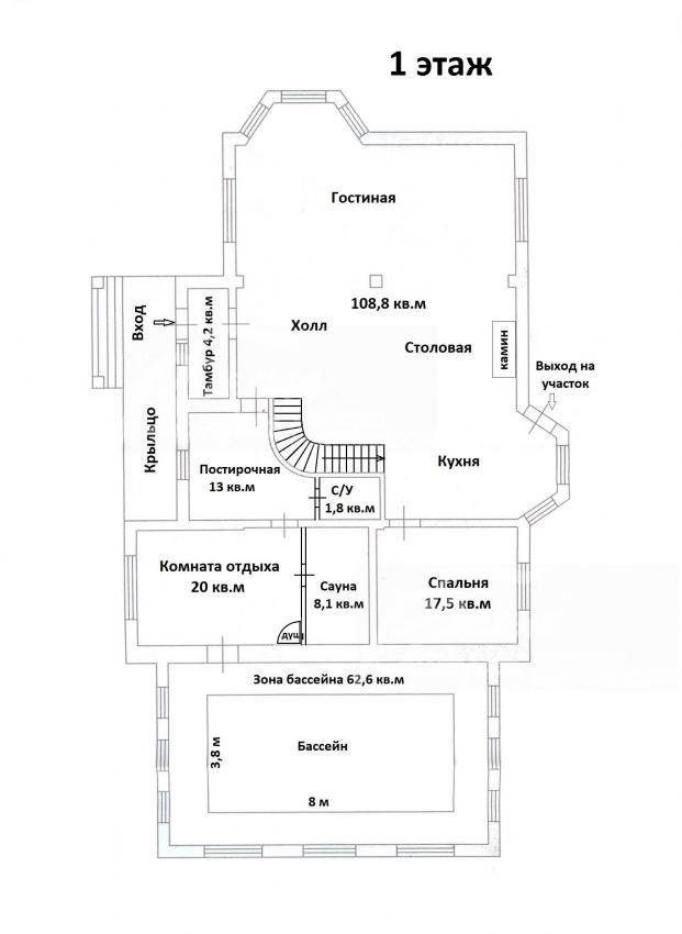
1-ый этаж: Крыльцо 14 кв.м, тамбур, студия 109 кв.м: холл с парадной лестницей, гостиная с камином из мрамора со вторым светом, кухня-столовая с выходом на улицу; спальня 17.5 кв.м, прачечная 13 кв.м с с/узлом, комната отдыха с душевой 20 кв.м и сауной 8 кв.м, зона бассейна 62.6 кв.м (чаша 8 х 3.8 м с подсветкой и противотоком).
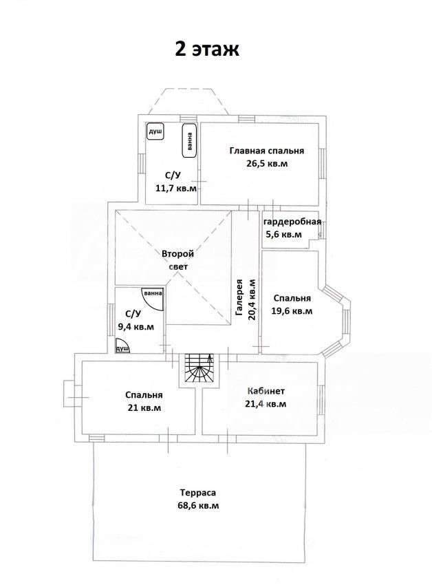
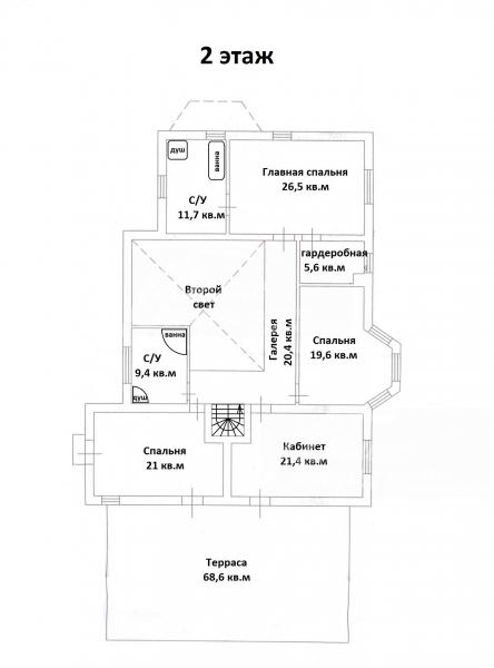
2-ой этаж: Галерея 20.4 кв.м, спальня 21 кв.м с балконом и выходом на террасу 68.6 кв.м, кабинет 21.4 кв.м с выходом на террасу, спальня 19.6 кв.м, общий с/узел 9.4 кв.м, главная спальня 26.5 кв.м с с/узлом 11.7 кв.м и с гардеробной 5.6 кв.м.
3-ий этаж: Помещение свободного назначения 111 кв.м
Описание внутренней отделки: Современная стильная отделка и интерьер выполнены с привлечением высококлассного дизайнера, использовались элитные и эксклюзивные отделочные материалы. На стенах в гостиной и спальнях коллекционные бумажные и виниловые обои (пр-ва США и Италия) со вставками шелкографии, в гостиной на стенах фрески, созданные художниками. В кабинете нижняя часть стен обшита деревом с кожаными вставками. В бассейне стены покрыты декоративной штукатуркой (Венецианка). Стены и потолок мансарды обшиты гобеленом. В сауне стены из кедра. Кафель и эксклюзивный керамогранит с рисунком (мозаикой) в гостиной с водяным подогревом. В спальнях и галереи на полу доска массив дуба и ореха. Пол террасы лиственница. Лестница плавноповоротная железобетонная монолитная облицована мрамором, перила - художественная ковка. На мансарду ведет легкая деревянная винтовая лестница. Потолки подвесные с классической лепниной ( плинтуса, карнизы, розетки фигурные из гипса). Вся сантехника установлена марки Jacob Delafon и Devon & Devon. Все коммуникации разведены под ключ. Радиаторы отопления стальные с регулировкой Kermi. Двери дизайнерские массив дерева с ручной росписью. Подоконники мраморные. Бассейн отделан мозаикой.
Инженерное обеспечение: В доме установлен газовый котел марки Wolf на 80 кВт и бойлер Reflex на 400 л косвенного нагрева. Система очистки воды многоступенчатая. В бассейне вентиляция принудительная приточновытяжная. В доме установлены датчики движения, сигнализация выведена на пульт охраны. В сауне печь Haelo - керамическая (камни внутри) на электричестве. Оборудование для бассейна с автосистемой добавления химии "Europool". Есть стабилизаторы напряжения. В бассейне и гостиной установлена встроенная аудиосистема.
Мебель, оборудование: Кухонный гарнитур: делали на заказ в России по каталогу фирмы ARCA (Италия), фасады из дерева, столешница из натурального камня, встроенная техника Miele (посудомоечная машина, варочная панель, духовой шкаф, кофеварка и СВЧ), холодильники марки Liebherr. Кабинет, кровать в хозяйской спальне на втором этаже пр-ва фабрики Angelo Cappellini. В спальнях итальянская мебель CAVIO стилистики коллекции Francesca. Мягкая мебель в гостиной (диваны, кресло) - торговой марки «ROYAL COLLECTION» (пр-ва Англия). Шторы и карнизы - сложные с ломбрекенами ( пр-ва компании DECOLUX). Светильники пр-ва фабрики Schonbek (Чехия).
Дополнительные строения: Гараж с квартирой для персонала и котельной одноэтажный отдельностоящий общей площадью 76 кв.м, кирпичный, облицован диким камнем, крыша- мягкая черепица.
1 этаж - гараж на 2 авто, котельная, квартира для персонала, прихожая, кухня-столовая, спальня и с/узел с ванной. Летняя беседка из дерева.
Дополнительная информация о доме: Фундамент железобетонный монолитный ленточный. Перекрытия железобетонные монолитные. Высота потолков от 2.9 м.
Участок
Площадь участка, соток: 15
Тип участка: парковый
Благоустройство участка: Выполнен хороший ландшафтный дизайн: растет более 50 туй вдоль заборов, 3 шт. голубых елей, 1 европейская ель, плакучая береза, большое количество декоративных кустарников. Сделаны дорожки из дикого камня, газоны и уличное освещение. Вокруг дома и по участку выполнен дренаж.
Статус земли: земли населенных пунктов для ИЖС
Дополнительная информация об участке: Участок, угловой, расположен в центре поселка, огражден с фасада кованым забором, слева и сзади деревянным, справа металлическим заборами на каменных столбах с бетонным цоколем.
Коммуникации
Газ: есть (магистральный)
Э/э: есть (20 кВт)
Водопровод: центральный
Канализация: централизованная
Телефон: есть (МГТС)
Интернет: есть
Охрана: есть (КПП, военизированная охрана, патрулирование + пультовая)
Описание инфраструктуры
На территории поселка бизнес класса Согласие 1: кафе, детская и спортивная площадки, в зимнее время каток..Вблизи поселка магазин, ресторан, автомойка, начальная школа, красивейшая деревянная церковь «Покров Божьей матери на Десне». В Жуковке частная школа 1-11 классы "Путь к успеху". В 500 м от поселка расположен оздоровительный комплекс УД Президента РФ "Ватутинки", в котором есть: бассейны (детский и взрослый), финская сауна, римская сауна, диско-бар, пивной бар, спортклуб, услуги стилиста, массажиста, косметолога, парикмахера, лечение: диагностика заболеваний, оздоровительные и корректирующие процедуры, кабинеты физиотерапии и стоматологии. В 2-х км г.Троицк с развитой городской инфраструктурой: школы, дет. сады, магазины, поликлиника, фитнес-центр с бассейном Резиденция.
Хочу посмотретьПоделитесь с друзьями:
Похожие предложения:
Дом, Подмосковные вечера к/п (Рогозинино), 520 м2, 15 сот
Калужское шоссе, от МКАД: 17+11 км
Саларьево, Рассказовка - от 19 мин на автоДом, Подмосковные вечера к/п
Киевское ш., 21 км + 4 км
пл. участка: 15 сот
пл. дома: 520 м2
меблирован
Спален: 5. С/узлов: 3.
Дом, Изумрудная долина к/п (Ширяево), 614 м2, 15 сот
Киевское шоссе, от МКАД: 21+9 км
Ольховая, Теплый стан - от 21 мин на автоДом, Изумрудная долина к/п
Калужское ш., 17 км + 6 км
пл. участка: 15 сот
пл. дома: 614 м2
меблирован
Спален: 8. С/узлов: 5.

Дом, Цветочный к/п, 500 м2, 14.1 сот
Ольховая, Теплый стан - от 29 мин на автоДом, Цветочный к/п
Калужское ш., 24 км + 3 км
пл. участка: 14.1 сот
пл. дома: 500 м2
меблирован
Спален: 6. С/узлов: 3.

Дом, Власово КП, 495 м2, 15.5 сот
Минское шоссе, от МКАД: 22+5 км
Крёкшино, Рассказовка - от 16 мин пешкомДом, Власово КП
Киевское ш., 21 км + 2 км
пл. участка: 15.5 сот
пл. дома: 495 м2
меблирован
Спален: 4. С/узлов: 3.
















