Дом, Светлая поляна к/п
Код: 149-812
Особенности объекта
Красивый современный коттедж под чистовую отделку на прилесном участке в живописном тихом месте. Функциональная планировка, просторные спальни со своими санузлами и гардеробными, гараж с квартирой для персонала.
Расположение
Ссылка на карту
Светлая поляна к/п (Ботаково)
Калужское шоссе, от МКАД: 17 км, всего: 20 км
Киевское шоссе, от МКАД: 21 км, всего: 32 км
Тип застройки: формирующийся к/п
Метро: Ольховая, Теплый стан, Саларьево; от 21 мин на авто
Коттеджный поселок «Светлая Поляна (д.Ботаково)»
Дом
Общая площадь строений: 656 м2 (в т.ч.: дом 533 кв.м, гараж с квартирой для персонала 123 кв.м)
Год постройки дома: 2011
Количество уровней: 3
Спален: 6. С/узлов: 5. Комнат всего: 10.
Опции: квартира для персонала; терраса; машиномест крытых: 2, в т.ч. в теплом гараже: 2; вывод под камин, возможно организовать сауну.
Материал стен: кирпич, пеноблоки, утеплитель
Облицовка стен: фасадная декоративная штукатурка, цоколь - дикий камень
Кровля: мягкая (Тегола)
Окна: стеклопакеты ПВХ (двухкамерные с раскладкой)
Стадия готовности: под чистовую отделку
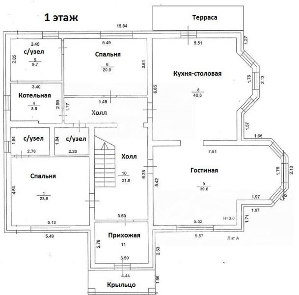
1-ый этаж: Прихожая 10 кв.м, холл 22 кв.м, кухня-столовая 41 кв.м с выходом на террасу и участок, гостиная 40 кв.м (с выводом под камин), общий с/узел 4 кв.м, холл 10 кв.м, спальня 20.6 кв.м с с/узлом 10 кв.м, спальня 24 кв.м с с/узлом 5 кв.м, котельная 8.6 кв.м
2-ой этаж: холл 16.4 кв.м с выходом на балкон 18 кв.м, спальня 23.6 кв.м с с/узлом 5.5 кв.м и гардеробной 4.6 кв.м, спальня 28 кв.м с с/узлом 11 кв.м и гардеробной 10.4 кв.м, Главная спальня 30 кв.м с с/узлом 26 кв.м, гардеробной 15 кв.м и выходом на балкон 11.6 кв.м
3-ий этаж: Мансарда со свободной планировкой 169.5 кв.м
Описание внутренней отделки: Стены и потолки выровнены и ошпатлеваны. Сделана чистовая стяжка пола, в помещениях, где планируется кафель, разведены теплые полы. Лестничный марш бетонный шириной 112 см
Инженерное обеспечение: установлен газовый котел Sime, разведены электрика (установлены подрозетники) и отопление.
Дополнительные строения: Гараж на 2 машиноместа: 1 этаж - гараж 47 кв.м, холл 8.5 кв.м, кладовая 7 кв.м; 2 этаж - квартира для персонала: холл 10 кв.м, кладовая 6 кв.м, с/узел 7 кв.м, комната 21.6 кв.м, спальня 15.5 кв.м.
Дополнительная информация о доме: Дом выстроен в классическом стиле. Фундамент и перекрытия монолитные железобетонные. Высота потолков 3.2 м
Участок
Площадь участка, соток: 11
Тип участка: лесной
Благоустройство участка: на участке газон, дорожки, сделан дренаж вокруг дома
Статус земли: земли населенных пунктов для ИЖС
Дополнительная информация об участке: участок прямоугольной формы, крайний к лесу, с фасада огорожен кованым забором высотой 2 м на каменных столбах и с цоколем, с других сторон деревянный.
Коммуникации
Газ: есть (магистральный)
Э/э: есть (15 кВт)
Водопровод: индивид. скважина (60 м)
Канализация: автономная (Топас 5)
Телефон: возможно подключение (за дополнительную оплату)
Интернет: возможно подключение (за дополнительную оплату)
Охрана: есть (ворота на пульте)
Описание инфраструктуры
На территории коттеджного поселка детские и спортивные площадки, зона отдыха вокруг озера. В г.Троицке: рестораны, элитный фитнес-центр с теннисными кортами и бассейном "Резиденция", салоны красоты, школы, детские сады, развивающие центры для детей (Центр Буракова), больницы и многое другое.
Элементы положит. окружения
Участок граничит с лесным массивом, в 100 метрах находится озеро, тихое красивое место.
Хочу посмотретьПоделитесь с друзьями:
Похожие предложения:
Дом, Студенцы д. , 528 м2, 12.2 сот
Калужское шоссе, от МКАД: 19+13 км
Бунинская аллея, Остафьево - от 14 мин на автоДом, Студенцы д.
Варшавское ш., 15 км + 6 км
пл. участка: 12.2 сот
пл. дома: 528 м2
под чистовую отделку
Спален: 8. С/узлов: 4.





