Дом в аренду, Синергия КП
Код: 535-003
Особенности объекта
Сдается стильный дом 250 кв.м в закрытом строгоохраняемом поселке бизнес-класса Синергия на территории Новой Москвы. Высокое качество строительства и современная отделка дома в стиле Неоклассики. Дом с центральными коммуникациями, оснащен всей необходимой качественной техникой, имеет функциональную планировку, включающую 5 спален, просторную совмещенную зону гостиной, кухни, столовой и уютной террасы, а также 4 полноценных санузла. Меблирование дома будет осуществлено в ближайшее время. На участке газон, взрослые лесные деревья и мощенная парковка для авто. КП Синергия, окруженный лесным массивом, сочетает в себе комфорт мегаполиса и экологические блага загородной жизни. Удачное расположение позволяет всего за 5 минут добраться до знаменитой школы Летово и за 20 минут до центра столицы. Также в непосредственной близости находятся фитнес-клубы Теннис.ру и Дубровка, несколько ресторанов, Азбука вкуса и другие супермаркеты, школы, детские сады, поликлиники и прочие объекты городской инфраструктуры. Для жителей поселка непосредственно у КПП организована остановка общественного транспорта до станций метро.
Расположение
Ссылка на карту
Синергия КП (Зименки)
Калужское шоссе, от МКАД: 7 км, всего: 11 км
Киевское шоссе, от МКАД: 7 км, всего: 12 км
Тип застройки: сформированный к/п
Метро: Ольховая, Теплый стан, Бунинская аллея; от 10 мин на авто
Коттеджный поселок «Синергия»
Дом
Общая площадь строений: 250 м2
Год постройки дома: 2023 (отделка в 2024)
Количество уровней: 3
Спален: 5. С/узлов: 4. Комнат всего: 7.
Опции: терраса.
Материал стен: поризованный керамический блок Protherm 38
Облицовка стен: кирпич керамический, цоколь - керамогранит. Декоративные элементы фасада: оконные молдинги, сандрик с замковым камнем, портал с карнизом на входной группе. Металлическое кованное ограждения на террасе.
Кровля: черепица цементно-песчаная Brass, водосточная система металлическая с полимерным покрытием
Окна: стеклопакеты ПВХ (двухкамерные высотой 1.95 м, ламинированные снаружи, белые внутри, с раскладкой)
Стадия готовности: под ключ
1-ый этаж: крыльцо 8.5 кв.м, прихожая 9.8 кв.м с гардеробной 3 кв.м, кухня-гостиная 30.4 кв.м с выходом на крытую террасу 26 кв.м, спальня 16.4 кв.м, санузел c душем 3 кв.м, котельная с прачечной 6.4 кв.м и отдельным входом
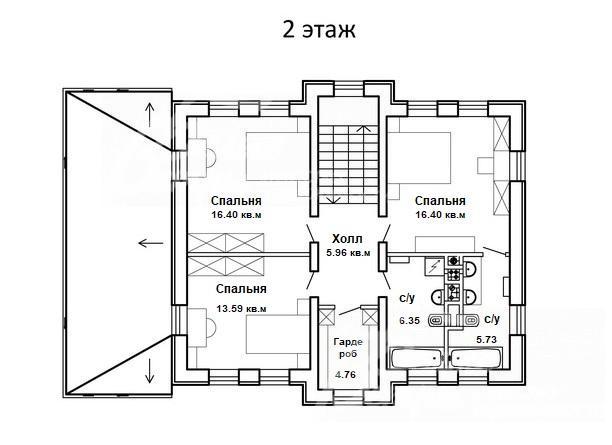
2-ой этаж: холл 6 кв.м, главная спальня 16.4 кв.м с санузлом 5.7 кв.м (с ванной), спальня 16.4 кв.м, спальня 13.6 кв.м, общий санузел 6.3 кв.м (с ванной), общая гардеробная 4.8 кв.м
3-ий этаж: холл 8 кв.м, кабинет-библиотека 24 кв.м, спальня с гардеробной 19.6 кв.м, санузел 3 кв.м (с душем)
Описание внутренней отделки: Современные отделка и мебель в стиле Неоклассика, выполненные по дизайн-проекту. В жилых комнатах на стенах интерьерная краска (светло-серого цвета) и дизайнерские обои ЭВА. В санузлах - плитка и мозаика Porcelanosa, краска интерьерная. Полы в гостиной-кухне - керамогранит (Kerama marazzi), с водяным подогревом. В спальнях и кабинете - кварц-виниловое покрытие под дерево. Санузлы - керамогранит с водяным подогревом. Лестничный марш: ж/б монолит шириной 0.95 м, ступени керамогранит, шаг 27*16.7 см, ограждения - закаленное стекло с металлическими хромированными перилами. Потолки подвесные ГКЛ с нишами под скрытые карнизы и освещение, с различной подсветкой.
Инженерное обеспечение: установлены: газовый настенный котел Buderus 32 кВт, бойлер косвенного нагрева 150 л, фильтр жесткой очистки, фильтр на питьевую воду. Вентиляция естественная, кондиционеры.
Мебель, оборудование: кухонный гарнитур с витриной для посуды и встроенной техникой: двухкамерный холодильник, электрическая варочная панель, духовой шкаф, посудомоечная машина. На окнах скрытые карнизы для штор и тюлей. Множество разнообразных приборов освещения: люстры в общей стилистике дома, настенные бра, встроенные споты. Остальная техника и мебель будут приобретены под арендатора.
Дополнительная информация о доме: высота потолков: первый и второй этажи - 3 м; третий этаж (мансарда) - от 0.82 до 2.55 м.
Участок
Площадь участка, соток: 6
Тип участка: поле с ландшафтом
Благоустройство участка: высажен газон, взрослые лесные деревья, устроена стоянка на 2 авто, отмостка вокруг дома
Дополнительная информация об участке: глухой забор из профлиста высотой 1.8 м
Коммуникации
Газ: есть (магистральный)
Э/э: есть (12 кВт)
Водопровод: центральный (ВЗУ на поселок)
Канализация: централизованная (очистные на поселок)
Интернет: есть (оптоволокно)
Охрана: есть (КПП)
Описание инфраструктуры
Инфраструктура в поселке: въездная группа с парковкой, общий выход в лес, частный детский сад. Инфраструктура внешняя: лучшая школа в России в Летово, спортивный центр Теннис с кортами, бассейном и фитнес-клубом. В 1 км метро Филатов Луг. В 500 м остановка общественного транспорта до м Тёплый стан (автобус 878). Мега, Ашан, Икеа, магазины и рестораны в Дубровке, спорткомплексы и иные услуги в п.Газопровод, Воскресенское и г. Московский.
Хочу посмотретьОплата агентству «Белые Ветры»: 195 000 руб.
Поделитесь с друзьями:
Похожие предложения:
Дом в аренду, Антоновка к/п (Зименки), 240 м2, 8 сот
Киевское шоссе, от МКАД: 7+7 км
Филатов луг, Теплый стан - от 12 мин на автоДом в аренду, Антоновка к/п
Калужское ш., 7 км + 2 км
пл. участка: 8 сот
пл. дома: 240 м2
меблирован
Спален: 4. С/узлов: 4.



