Дом в аренду, Ваутутинки к/п
Код: 140-020
Особенности объекта
Функциональный просторный дом 500 кв.м с гаражом, с эксклюзивной отделкой и обстановкой в статусном коттеджном поселке "Вау!Тутинки". На участке 24 сотки изумительный ландшафтный дизайн: розарии, цветники, около 30 лесных и 30 плодовых деревьев. Видеоролик
Расположение
Ссылка на карту
Ваутутинки к/п (Ватутинки)
Калужское шоссе, от МКАД: 15 км, всего: 17 км
Тип застройки: обжитой к/п
Метро: Ольховая, Теплый стан, Щербинка; от 14 мин на авто
Коттеджный поселок «ВауТутинки»
Дом
Общая площадь строений: 500 м2 (жилой дом 468.7 кв.м, 32 кв.м дом для персонала)
Количество уровней: 3
Спален: 5. С/узлов: 4. Комнат всего: 8.
Опции: сауна; квартира для персонала; терраса; камин; холодный подвал; машиномест крытых: 3, в т.ч. в теплом гараже: 1.
Материал стен: кирпичный камень (510 мм с пустотами)
Облицовка стен: облицовочный кирпич, камень
Кровля: мягкая
Окна: деревянные (2-х камерные)
Стадия готовности: меблирован
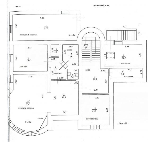
Цоколь: холл 22.3 кв.м, сауна 5.6 кв.м с душевой 1.6 кв.м, с/у 2 кв.м, комната отдыха с камином (изразцы) в марокканском стиле 52.8 кв.м, спальня 15.8 кв.м, постирочная 14.4 кв.м, котельная 14.2 кв.м, кладовая 5.6 кв.м
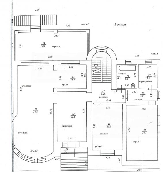
1-ый этаж: крыльцо 2.2 кв.м, тамбур 2.2 кв.м, прихожая и холл 22.4 кв.м, гостиная 50.8 кв.м и кухня-столовая 11.7 кв.м (единое пространство) с выходом на веранду 30.2 кв.м, коридор 17.3 кв.м, гостевая комната (спальня) 21.2 кв.м, санузел 7.2 кв.м, тамбур 5.0 кв.м, гараж на 1 а/м 26.1 кв.м, гардеробная 6.6 кв.м
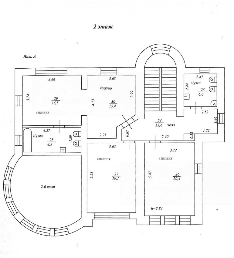
2-ой этаж: холл 13.6 кв.м, главная спальня 16.5 кв.м с санузлом 8.3 кв.м и будуаром 15.4 кв.м, 2 спальни (19.1 кв.м и 20.4 кв.м), санузел 6 кв.м на 2 спальни
Описание внутренней отделки: отделка из очень качественных материалов: полы - керамогранит, палубный паркет (массив); лестничный марш в классическом стиле, ступени и поручни на бетонном основании, отделаны деревом, кованное ограждение с деревянными поручнями; многоуровневые потолки с декором; сантехника Villeroy&Bosh, мраморные подоконники, двери из массива красного дерева
Инженерное обеспечение: многоступенчатая система очистки воды, сигнализация; освещение в доме на датчиках, автоматически включается при движении
Мебель, оборудование: полностью укомплектован мебелью, сделанной исключительно на заказ (шкафы, гарнитуры, спальни и т.д.), также антикварной. Изящные люстры, элитные шторы, много картин
Дополнительные строения: домик для персонала (кухня, с/у, спальня)
Участок
Площадь участка, соток: 24
Тип участка: садово-парковый, прилесной
Благоустройство участка: выполнен дренаж, ландшафтный дизайн. На участке розарии, деревья, кусты, цветники. Около 30 лесных деревьев (туи, ели - зеленые и голубые, ива). Около 30 плодовых деревьев (груши, яблони, сливы, орех, вишня и черешня), виноград. Кусты роз, цветов, сирени, боярышник
Дополнительная информация об участке: примыкает к лесу, но не крайний
Коммуникации
Газ: есть (магистральный)
Э/э: есть (20 кВт)
Водопровод: центральный
Канализация: централизованная
Телефон: есть
Охрана: есть (профессиональная круглосуточная охрана с патрулированием и видеонаблюдением, 3 КПП)
Описание инфраструктуры
В поселке спортивно-развлекательный центр (фитнес-зал, бассейн, сауны, боулинг, бильярдный зал, банкетный зал, бар-кафе, мини-детский сад), зона отдыха на берегу небольшого пруда, площадка для игр (большой теннис, минифутбол, волейбол); детская площадка; служба доставки продуктов, прачечная, гостевая автостоянка
Хочу посмотретьОплата агентству «Белые Ветры»: 175 000 руб.
Поделитесь с друзьями:
Похожие предложения:
Дом в аренду, Президент к/п, 480 м2, 30 сот
Бунинская аллея, Ольховая - от 8 мин на автоДом в аренду, Президент к/п
Калужское ш., 8 км + 3 км
пл. участка: 30 сот
пл. дома: 480 м2
меблирован
Спален: 4. С/узлов: 6.

Дом в аренду, Лесное Озеро к/п (Кузенёво), 560 м2, 20 сот
Ольховая, Теплый стан - от 29 мин на автоДом в аренду, Лесное Озеро к/п
Калужское ш., 25 км + 4 км
пл. участка: 20 сот
пл. дома: 560 м2
меблирован
Спален: 5. С/узлов: 4.

Дом в аренду, Ваутутинки к/п (Ватутинки), 440 м2, 25 сот
Ольховая, Теплый стан - от 14 мин на автоДом в аренду, Ваутутинки к/п
Калужское ш., 15 км + 2 км
пл. участка: 25 сот
пл. дома: 440 м2
меблирован
Спален: 5. С/узлов: 3.
Дом в аренду, Графские пруды КП (Каменка), 500 м2, 24 сот
Крёкшино, Рассказовка - от 31 мин на автоДом в аренду, Графские пруды КП
Киевское ш., 21 км + 7 км
пл. участка: 24 сот
пл. дома: 500 м2
меблирован
Спален: 4. С/узлов: 4.



Дом в аренду, Ново-Троицкое-1 к/п (Пучково), 587 м2, 25 сот
Киевское шоссе, от МКАД: 21+12 км
Ольховая, Прокшино - от 20 мин на автоДом в аренду, Ново-Троицкое-1 к/п
Калужское ш., 17 км + 4 км
пл. участка: 25 сот
пл. дома: 587 м2
меблирован
Спален: 5. С/узлов: 4.





















