Дом, Антоновка к/п
Код: 171-846
Особенности объекта
Красивый дом по индивидуальному проекту. Теплый, кирпичный. Оригинальная дизайнерская отделка, много ручной росписи на стенах. Обжитая часть поселка. Элитный КП в 7 км от МКАД между Калужским и Киевским шоссе
Расположение
Ссылка на карту
Антоновка к/п (Зименки)
Калужское шоссе, от МКАД: 7 км, всего: 9 км
Киевское шоссе, от МКАД: 7 км, всего: 14 км
Тип застройки: сформированный к/п
Метро: Филатов луг, Теплый стан, Бунинская аллея; от 12 мин на авто
Коттеджный поселок «Антоновка»
Дом
Общая площадь строений: 347 м2
Год постройки дома: 2008
Количество уровней: 3
Спален: 4. С/узлов: 4. Комнат всего: 7.
Опции: сауна; терраса; камин; машиномест крытых: 2.
Материал стен: кирпич
Облицовка стен: 1 этаж- дикий камень, 2 этаж-декоративная штукатурка с деревянной раскладкой под фахверк
Кровля: мягкая
Окна: стеклопакеты ПВХ
Стадия готовности: меблирован
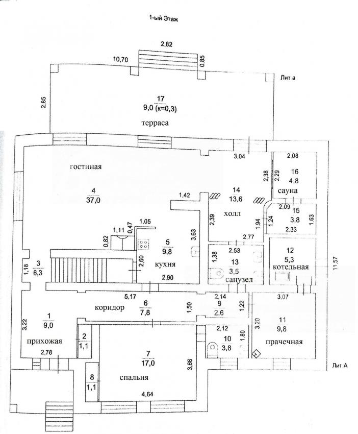
1-ый этаж: Прихожая 9 кв.м с гардеробной, коридор 7.8 кв.м со входом в гостиную и кухню, кухня 9.8 кв.м, гостиная 37 кв.м с камином, холл 13.6 кв.м с выходом на террасу 30 кв.м, с/узел 3.5 кв.м, душевая 3.8 кв.м, сауна 4.8 кв.м, спальня 17 кв.м с с/узлом 3.8 кв.м и гардеробной, коридор 2.6 кв.м, прачечная 9.8 кв.м, котельная 5 кв.м
2-ой этаж: Холл 6 кв.м, общий с/узел 3.7 кв.м, спальня (двухуровневая) 14.7 кв.м с гардеробной 5.6 кв.м и зоной кровати на втором уровне (винтовая лестница) 10 кв.м, коридор 6 кв.м, кабинет 12.5 кв.м, спальня 22.4 кв.м с гардеробной, спальня 17 кв.м, спальня 26.7 кв.м с с/узлом 7 кв.м и гардеробной 4 кв.м (в гардеробной лестница в чемоданную 21.7 кв.м (мансардный этаж)
3-ий этаж: Мансардный этаж (винтовая лестница) игровая лестница 39 кв.м.
Описание внутренней отделки: Стены отделаны декоративной штукатуркой, окрашены, оклеены обоями,есть ручная роспись на стенах, в санузлах- плитка,мозаика. На полу кафель, керамогранит с водяным подогревом, пробка в спальнях на мансарде. Лестничный марш бетонный с деревянными ступенями. Потолки подвесные многоуровневые с различными подсветками. Вся сантехника установлена (пр-ва Германия, Италия). Все коммуникации разведены под ключ. Двери деревянные.
Инженерное обеспечение: Вентиляция естественноприточная. Установлены газовый котел SlantFin ( пр-ва США), бойлер ACV 300 л, счетчики воды и электричества. Система очистки воды многоступенчатая.
Дополнительные строения: Вольер для собаки, навес для двух машин с хозблоком, теплица
Дополнительная информация о доме: Фундамент железобетонный монолитный, перекрытия железобетонные монолитные. Высота потолков от 3 м , на мансарде 4 м.
Участок
Площадь участка, соток: 11.63
Тип участка: с деревьями и ландшафтом
Благоустройство участка: На участке растут кустарники, плодовые деревья, есть огород, разбит газон, сделаны дорожки, организованы уличное освещение, детский игровой комплекс, перголы
Статус земли: земли населенных пунктов, для ИЖС
Дополнительная информация об участке: Участок прямоугольной формы, расположен в центре поселка, второй от въезда
Коммуникации
Газ: есть (магистральный)
Э/э: есть (20 кВт)
Водопровод: центральный
Канализация: централизованная
Телефон: есть (МГТС)
Интернет: есть
Охрана: есть (КПП)
Описание инфраструктуры
В поселке частный детский сад. Благоустроенная рекреационная зона, выделенные места для активного отдыха - детские игровые и спортивные площадки, многопрофильная игровая площадка со скалодромом, для игр в волейбол, бадминтон, мини-футбол, открытый теннисный корт, баскетбольная площадка, футбольное поле. Зимой площадка превращается в каток. Многоуровневая система безопасности. При въезде в поселок супермаркет "Азбука Вкуса", ресторан Магадан, аптека и фитомагазин, банк. В 1 км фитнес-клуб с бассейном и СПА-зоной, теннисным кортом и батутным центром - Теннис.ру. В 3 км школа-пансион «Летово» для одаренных детей. В 5 км г. Московский. В 5 мин езды метро Филатов Луг.
Хочу посмотретьПоделитесь с друзьями:
Похожие предложения:
Дом, Лаптево КП, 370 м2, 14.5 сот
Ольховая, Бунинская аллея - от 12 мин на автоДом, Лаптево КП
Калужское ш., 8 км + 4 км
пл. участка: 14.5 сот
пл. дома: 370 м2
меблирован
Спален: 5. С/узлов: 3.
Дом, Милорадово, 370 м2, 11.3 сот
Ольховая, Теплый стан - от 8 мин на автоДом, Милорадово
Калужское ш., 10 км + 1 км
пл. участка: 11.3 сот
пл. дома: 370 м2
меблирован
Спален: 4. С/узлов: 4.








