Дом, Новое Бачурино к/п
Код: 503-601
Особенности объекта
Красивый, современный дом выполненный по оригинальному проекту в камерном коттеджном поселке (всего 17 домовладений), вблизи Москвы. 2 уровня, рациональная планировка. Живописный панорамный вид из окон. Визуализация в ПОДАРОК!
Расположение
Ссылка на карту
Новое Бачурино к/п (Бачурино дер)
Калужское шоссе, от МКАД: 4 км, всего: 7 км
Тип застройки: формирующийся к/п
Метро: Ольховая, Бунинская аллея, Теплый стан; от 13 мин на авто
Дом
Общая площадь строений: 394.3 м2
Год постройки дома: 2010
Количество уровней: 2
Материал стен: керамзитобетон+утеплитель
Облицовка стен: оштукатурен, цоколь облицован камнем
Кровля: мягкая
Окна: стеклопакеты ПВХ
Стадия готовности: под финишную отделку
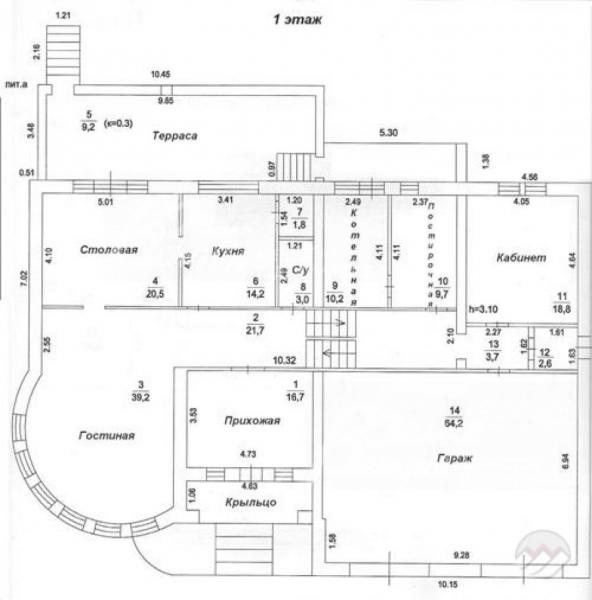
1-ый этаж: холл — прихожая 17 кв.м, гостиная 40 кв. м, столовая 20.5 кв.м с выходом на террасу 31 кв.м, кухня 14 кв.м, с/узел, кладовая, котельная и постирочная по 10 кв.м, кабинет 19 кв.м, гараж 64 кв.м
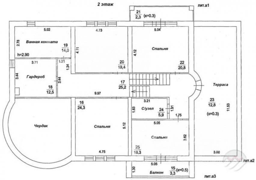
2-ой этаж: холл 25 кв.м, терраса 43 кв.м, спальня 21 кв.м с выходом на балкон; спальня 18 кв.м с выходом на балкон, с/узел 6 кв.м; спальня 24 кв.м, спальня 19 кв.м, гардеробная 12.5 кв.м, ванная комната 14 кв.м
Описание внутренней отделки: стены ошпатлеваны, сделана чистовая стяжка пола (теплый пол), потолки оштукатурены; лестничный марш бетонный; все коммуникации разведены по дому
Инженерное обеспечение: котел Baxi, централизованная система очистки воды в поселке, вентиляция естественная
Дополнительная информация о доме: фундамент - ленточный монолит, перекрытия монолитные, высота потолков 3 м
Участок
Площадь участка, соток: 12.72
Тип участка: без деревьев
Статус земли: земли населенных пунктов, для ИЖС
Дополнительная информация об участке: участок прямоугольной формы в центре поселка, по фасаду огорожен кованым забором на кирпичных столбах
Коммуникации
Газ: есть (магистральный, по границе)
Э/э: есть (15 кВт)
Водопровод: центральный (централизованная скважина)
Канализация: централизованная (септик)
Телефон: возможно подключение (оптоволокно)
Интернет: возможно подключение (оптоволокно)
Охрана: нет (планируется)
Описание инфраструктуры
Инфраструктура п.Коммунарка, в 7 км ТЦ "Мега", "Ашан", "Икеа".
Элементы положит. окружения
Тихое место, поселок граничит с лесом, от участка до леса 100 метров.
Хочу посмотретьПоделитесь с друзьями:
Похожие предложения:
Дом, Лаптево КП, 370 м2, 14.5 сот
Ольховая, Бунинская аллея - от 12 мин на автоДом, Лаптево КП
Калужское ш., 8 км + 4 км
пл. участка: 14.5 сот
пл. дома: 370 м2
меблирован
Спален: 5. С/узлов: 3.
Дом, Милорадово, 370 м2, 11.3 сот
Ольховая, Теплый стан - от 8 мин на автоДом, Милорадово
Калужское ш., 10 км + 1 км
пл. участка: 11.3 сот
пл. дома: 370 м2
меблирован
Спален: 4. С/узлов: 4.

Дом, Президент к/п, 325 м2, 15 сот
Бунинская аллея, Ольховая - от 8 мин на автоДом, Президент к/п
Калужское ш., 8 км + 3 км
пл. участка: 15 сот
пл. дома: 325 м2
под отделку
Спален: 5. С/узлов: 3.

Дом, Валуевская слобода к/п (Валуево), 415 м2, 12.8 сот
Калужское шоссе, от МКАД: 7+6 км
Филатов луг, Ольховая - от 17 мин на автоДом, Валуевская слобода к/п
Киевское ш., 7 км + 4 км
пл. участка: 12.8 сот
пл. дома: 415 м2
коробка
Спален: 5. С/узлов: 5.


Дом, Валуевская слобода к/п (Валуево), 480 м2, 12.6 сот
Калужское шоссе, от МКАД: 7+6 км
Филатов луг, Ольховая - от 17 мин на автоДом, Валуевская слобода к/п
Киевское ш., 7 км + 4 км
пл. участка: 12.6 сот
пл. дома: 480 м2
под отделку
Спален: 5. С/узлов: 4.
|
|
|



















