Дом, Варварино эко-поселок
Код: 184-706
Особенности объекта
Лучший вариант планировки дома в поселке. Суммарная площадь кухни-столовой и Гостиной 108 кв.м, крытая терраса более 80кв.м. Две отдельных комнаты на 1-ом этаже. Кладовая при кухне. На 2-ом этаже 4 просторных спальни, две из них с собственными гардеробнымии и санузлами, еще две спальни имеют собственные гардеробные и общий санузел. Качественное строительство, в полностью обустроенном для жизни клубном поселке премиум-класса. Продается в свободной планировке, дающей возможность реализовать разные дизайнерские решения. В поселке функционирует собственная инфраструктура: фитнес-клуб с бассейном, теннисный корт, детские и спортивные площадки. На участке выполнены ландшафтные работы и система автополива.
Расположение
Ссылка на карту
Варварино эко-поселок
Калужское шоссе, от МКАД: 25 км, всего: 27 км
Тип застройки: обжитой к/п
Метро: Ольховая, Теплый стан, Бунинская аллея; от 27 мин на авто
Коттеджный поселок «Варварино эко-поселок»
Дом
Общая площадь строений: 409.2 м2
Год постройки дома: 2013
Количество уровней: 2
Спален: 5. С/узлов: 4. Комнат всего: 8.
Опции: бассейн (фитнес-клуб в КП); сауна; терраса; камин; машиномест крытых: 2, в т.ч. в теплом гараже: 2.
Материал стен: кирпич
Облицовка стен: облицовочный кирпич, тонированные деревянные панели
Кровля: натуральная черепица
Окна: стеклопакеты деревянные (от пола до потолка - высотой ок.3м)
Стадия готовности: под отделку
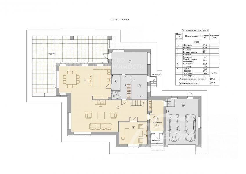
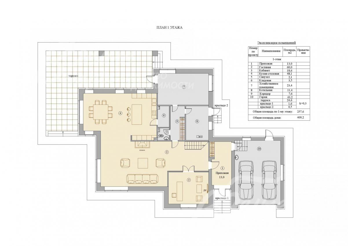
1-ый этаж: крыльцо 1.6 кв.м, прихожая 13 кв.м, гараж на 2 м/м 43.2 кв.м, гостиная 60 кв.м , кухня-столовая 48.1 кв.м с выходом на крытую террасу 82 кв.м, кабинет 18.6 кв.м, санузел 2.1 кв.м, кладовая 3.5 кв.м, хозяйственное помещение 23.4 кв.м, котельная 11.4 кв.м, коридор 7.6 кв.м
2-ой этаж: холл 18.9 кв.м, спальня 18.8 кв.м с гардеробной 5.5 кв.м и выходом на балкон 3.1 кв.м, санузел 4.9 кв.м, спальня с панорамными окнами 18.8 кв.м и с гардеробной 4.2 кв.м, спальня 19.3 кв.м с выходом на балкон 3.3 кв.м, с гардеробной 8.3 кв.м и с с/у 9.4 кв.м, спальня 23.3 кв.м с гардеробной 4.5 кв.м и с санузлом 5.5 кв.м, коридор 3.8 кв.м
Инженерное обеспечение: водопровод, канализация, электричество заведены в дом, газ подключен, установлен газовый котел Vitagas 42 кВт и бойлер Wiessmann Vitocell 200 L
Дополнительная информация о доме: Свободная планировка. Проект каждого дома включает индивидуальную котельную и пристроенный гараж на 2 авто
Участок
Площадь участка, соток: 20
Тип участка: граничит с лесом
Благоустройство участка: ландшафтные работы, газон, посадки и система автоматического полива полностью завершены и входят в стоимость
Статус земли: земли населенных пунктов, ИЖС
Дополнительная информация об участке: ограждением участков является живая изгородь из искусно высаженных растений и других элементов ландшафтного дизайна
Коммуникации
Газ: есть
Э/э: есть
Водопровод: центральный
Канализация: централизованная
Телефон: возможно подключение
Интернет: возможно подключение
Охрана: есть (профессиональное охранное агентство: строгая пропускная система доступа в поселок и патрулирование)
Описание инфраструктуры
Для общения и проведения интересного досуга на территории поселка построен клубный дом (2000 кв.м.) в просторном лобби которого размещены бильярдная с комнатой отдыха, бар, небольшой музей и детская комната. Любители спорта и активного времяпрепровождения оценят 25-метровый бассейн с 2 дорожками, джакузи, две сауны, купель и тренажерный зал, оборудованный современными тренажерами ведущих мировых производителей. На территории поселка имеются несколько детских игровых зон, теннисный корт, волейбольная и баскетбольная площадки, футбольное поле, каток, санный спуск, лыжная трасса, гольф, вертолетная площадка.
Элементы положит. окружения
Жители Эко-поселка Варварино имеют возможность пользоваться объектами сложившейся инфраструктуры: рядом престижная школа и детский сад Ника, рестораны с доставкой, супермаркеты, аптека, химчистка, почта, ателье, отделение банка, салон красоты и спортивно-досуговый парк Красная Пахра, в 20 минутах езды известная международная школа Летово.
Хочу посмотретьПоделитесь с друзьями:
Похожие предложения:
Дом, Околица ДСК (Докукино д.), 368.9 м2, 23.75 сот
Калужское шоссе, от МКАД: 15+25 км
Ольховая, Теплый стан - от 12 мин на автоДом, Околица ДСК
Варшавское ш., 30 км + 3 км
пл. участка: 23.75 сот
пл. дома: 368.9 м2
под ключ
Спален: 2. С/узлов: 2.
Дом, Ильичевка к/п (Ильичевка), 393 м2, 17.7 сот
Киевское шоссе, от МКАД: 21+10 км
Крёкшино, Ольховая - от 24 мин на автоДом, Ильичевка к/п
Калужское ш., 17 км + 5 км
пл. участка: 17.7 сот
пл. дома: 393 м2
под отделку
Спален: 4. С/узлов: 3.

Дом, Полет СНТ (Рогозинино), 408 м2, 20 сот
Калужское шоссе, от МКАД: 17+11 км
Филатов луг, Рассказовка - от 17 мин на автоДом, Полет СНТ
Киевское ш., 21 км + 6 км
пл. участка: 20 сот
пл. дома: 408 м2
меблирован
Спален: 4. С/узлов: 3.

Дом, Минзаг, 414 м2, 20 сот
Ольховая, Теплый стан - от 22 мин на автоДом, Минзаг
Калужское ш., 22 км + 3 км
пл. участка: 20 сот
пл. дома: 414 м2
под ключ
Спален: 5. С/узлов: 3.

















