Дом, Чароит КП
Код: 520-410
Особенности объекта
Просторный дом с привлекательной архитектурой, возведён по авторскому проекту в современном среднеевропейском стиле. Дом — с панорамным остеклением от пола, построен из высококачественных материалов и укомплектован новой импортной мебелью. В продуманной многофункциональной планировке: двухсветная гостиная с камином и аквариумом, роскошный зимний сад со вторым светом и стеклянным потолком с подогревом, спа‑зона с купелью и сауной, игровая комната, утеплённая терраса, несколько автономных зон с собственной кухней, столовой и входом и 9 спален (4 из них — на первом этаже). Дом стоит на прилесном участке с парковым ландшафтом рядом с комплексом Управделами Президента и инфраструктурой Новой Москвы — в приватной части строго охраняемого коттеджного посёлка с центральными коммуникациями.
Расположение
Ссылка на карту
Чароит КП (Ватутинки)
Калужское шоссе, от МКАД: 14 км, всего: 15 км
Тип застройки: обжитой к/п
Метро: Ольховая, Теплый стан, Бунинская аллея; от 14 мин на авто
Коттеджный поселок «Чароит КП (п.Ватутинки)»
Дом
Общая площадь строений: 700 м2
Количество уровней: 4
Спален: 9. С/узлов: 6. Комнат всего: 13.
Опции: сауна; купель (с водоочисткой и подогревом); терраса; камин (два); холодный подвал; машиномест крытых: 2, в т.ч. в теплом гараже: 2; аквариум в гостиной со вторым светом и камином; зимний сад со вторым светом.
Материал стен: керамические блоки
Облицовка стен: штукатурка
Кровля: металлочерепица
Окна: деревянные (стеклопакеты из массива дуба с алюминиевыми накладками, остекление от пола в детских и гостевой спальнях)
Стадия готовности: меблирован
Цоколь: коридор 6 кв.м, гардеробная 12 кв.м, холодная кладовая 12 кв.м, кладовая 2 кв.м, котельная 14,5 кв.м с отдельным входом, техническое помещение (помещение для очистки воды) 7,5 кв.м
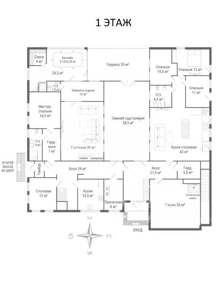
1-ый этаж: холл 29 кв.м (со вторым выходом на участок с тамбуром), гостиная (каминный зал) со вторым светом 36 кв.м, кухня-столовая 42 кв.м, кухня 10,5 кв.м, столовая 12 кв.м, мастер-спальня 16.5 кв.м с гардеробной-холлом 7 кв.м и санузлом 4 кв.м, холл 21.5 кв.м, зимний сад-галерея 38.5 кв.м с выходом на террасу 35 кв.м, кухня-столовая 42 кв.м, спальня 11 кв.м, спальня 12 кв.м, спальня 10.5 кв.м, санузел 6.5 кв.м, холл с купелью (2.15×3.35 м, глубина 1.85 м) с душевой, бочкой 24.5 кв.м и с выходом на террасу, сауна 4 кв.м, комната отдыха 12 кв.м, санузел 1.5 м, гардеробная 5.5 кв.м, прачечная 8 кв.м, гараж 33 кв.м
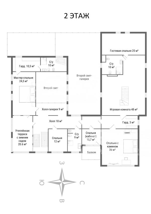
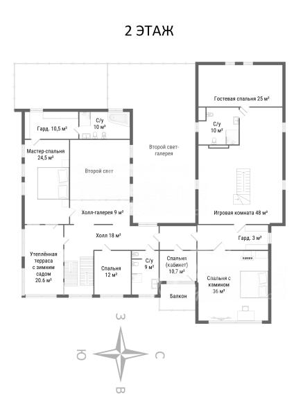
2-ой этаж: холл 18 кв.м с выходом на утеплённую террасу с зимним садом 6 кв.м, холл-галерея 9 кв.м, мастер-спальня 24.5 кв.м с гардеробной 10.5 кв.м, санузлом 10 кв.м и выходом на утеплённую террасу, спальня (детская) с камином 47.5 кв.м, спальня (кабинет) 17 кв.м с выходом на балкон, спальня 12 кв.м, санузел 9 кв.м, гардеробная 3 кв.м, игровая комната 48 кв.м, гостевая спальня 25 кв.м, санузел 10 кв.м
3-ий этаж: мансарда утепленная с окнами - 35 кв.м, высота потолка от 1 м 70 см до 2 м 70 см, отделана вагонкой
Описание внутренней отделки: выполнена стильная и уютная отделка, выдержанная в тёплых светло‑бежевых нейтральных тонах, с использованием дорогостоящих материалов. Стены покрашены и отделаны венецианской штукатуркой. Полы: 1-й этаж керамогранит и плитка с теплым полом. В столовой - паркет; 2-й этаж - паркет. Основная часть потолков — из гипсокартонных листов, во влажных зонах — натяжные потолки, стеклянный потолок в зимнем саду — с электрическим подогревом. Установлены деревянные двери марки Union и дубовые подоконники. Интерьер дополняют два камина: первый украшает двухсветную гостиную, второй расположен в спальне на втором этаже. В доме предусмотрено несколько лестниц: главная построена на бетонном основании, ступени отделаны массивом ореха, вторая лестница также имеет бетонное основание, каркас выполнен из дерева. В отделке мансардного этажа — рогожка
Инженерное обеспечение: все коммуникации разведены под ключ. Отопление — центральное с дополнительным резервным бойлером объёмом 200 л, оснащённым медной обвязкой. Горячее водоснабжение подключено к центральной сети. Установлена многоступенчатая система очистки воды Экодар. Вентиляция — частично принудительная, комфорт микроклимата поддерживают три кондиционера: один расположен в детском отсеке, второй — на кухне, третий — возле кабинета на втором этаже. Безопасность дома обеспечена установкой пультовой охраны
Мебель, оборудование: Две кухни полностью оборудованные техникой, в доме установлена импортная мебель: шкафы, системы хранения, кровати, диваны, стулья, столы. В санузлах — импортная сантехника брендов Villeroy & Boch, Hatria и Huppe. Новая гардеробная в мастер блоке, полностью оборудованная общая гардеробная на 2-м этаже, встроенные шкафы в прихожей, встроенные шкафы в цокольном этаже для хранения несезонных вещей.
Дополнительные строения: хозяйственный блок для хранения инструментов
Дополнительная информация о доме: фундамент – монолитный, межэтажные перекрытия — железобетонные. Высота потолков на 1-м этаже — 2.95 м (второй свет в гостиной — 6.2 м), на втором этаже — 2.77 м, на мансардном этаже — до 2.7 м
Участок
Площадь участка, соток: 16
Тип участка: с деревьями
Благоустройство участка: ландшафт участка оформлен в парковом стиле. На территории растут многолетние деревья: три берёзы, пять елей, двенадцать сосен, четыре клёна, одна лиственница и три рябины. Высажены шесть туй и восемнадцать кустов можжевельника. Проложены дорожки, установлены светильники и скамейки. По всему участку, включая зону вокруг дома, выполнен дренаж, разведен автополив.
Статус земли: ЗНП, ИЖС
Дополнительная информация об участке: ровный участок расположен в дальней тихой и приватной части коттеджного посёлка, граничит с лесным массивом пансионата. Территория огорожена деревянным забором на бетонном основании
Коммуникации
Газ: есть (центральный, госкомпания)
Э/э: есть (15 кВт, госкомпания)
Водопровод: центральный (госкомпания)
Канализация: централизованная (госкомпания)
Телефон: есть (оптоволокно)
Интернет: есть (оптоволокно)
Охрана: есть
Описание инфраструктуры
Территория поселка огорожена и строгоохраняется. Внутри поселка широкие асфальтированные дороги, есть пешеходные дорожки. В темное время суток вся территория поселка освещается. Чистота улиц и ухоженность зеленых насаждений поддерживается специальными службами. Богатая инфраструктура санатория "Управления Делами Президента": около 300 врачей, лучшая медицинская аппаратура, теннисные корты, площадки для баскетбола и волейбола, крытый бассейн, благоустроенная пляжная и прогулочная зоны. На территории так же к вашим услугам частный детский сад Baby Way, химчистка Lavery. В 5 минутах на машине развитая городская инфраструктура района Новые Ватутинки и ЖК Кленовые Аллеи, поселка Ватутинки: школы и детские сады 1392, поликлиника, рестораны, супермаркеты, салоны красоты, банки, спортивные секции и др. Недалеко наукоград Троицк с полной городской инфраструктурой: бассейн, школы, детские сады, поликлиники, больницы, салоны красоты, торговые центры и др. А вскоре откроется метро Ватутинки.
Хочу посмотретьПоделитесь с друзьями:
Похожие предложения:
Дом, Согласие-2 КП (Фоминское), 647 м2, 15 сот
Ольховая, Теплый стан - от 20 мин на автоДом, Согласие-2 КП
Калужское ш., 14 км + 3 км
пл. участка: 15 сот
пл. дома: 647 м2
меблирован
Спален: 5. С/узлов: 6.
Дом, Согласие-2 КП (Фоминское), 736 м2, 20 сот
Ольховая, Теплый стан - от 20 мин на автоДом, Согласие-2 КП
Калужское ш., 14 км + 3 км
пл. участка: 20 сот
пл. дома: 736 м2
меблирован
Спален: 6. С/узлов: 6.







